📢
🔥 Dodaj Bezpłatnie Ogłoszenie Nieruchomości🔔 w Portalu WWW.NPORTA.PL 🔥

Duża kamienica w centrum! Idealna pod wynajem!

[Sprzedaż] Lokale

Duża kamienica w centrum! Idealna pod wynajem!
Duża kamienica w centrum! Idealna pod wynajem! Duża kamienica w centrum! Idealna pod wynajem!

Cena: 1.200.000 zł

Dodane przez: NieruchomosciApartament
Region: Wielkopolskie
Agent: Mateusz Geszczyński
E-mail: mateusz@nieruchomosci-apartament.pl

pokaż numer telefonu...

pokaż adres email...

Opublikowano: 03-04-2026 | Wygaśnie: 03-04-2027 | Wyświetleń: 23

ID ogłoszenia: 156769 | Numer oferty: 456380

Szczegóły

Ogłoszenia: Firmowe
Rynek: Wtórny
Pow. użytkowa: 691 m²
Pow. całkowita: 691 m²
Piętro: 1 piętro
Liczba pięter: 3
Materiał budynku: cegła
Data aktualizacji: 2025-09-20 04:40:39

Opis

Kontakt:
798 857 370 
Mateusz Geszczyński

Zwrot inwestycji w 10 lat!!!

Na sprzedaż imponująca kamienica o powierzchni 691 m², zlokalizowana w sercu Trzemeszna, w województwie wielkopolskim - doskonała propozycja dla inwestorów poszukujących nieruchomości generującej stały dochód. Budynek praktycznie w pełni wynajęty, oferuje doskonały potencjał zysku, dzięki dobrze zlokalizowanym i wynajętym lokalom użytkowym oraz mieszkaniowym.

Kamienica składa się z
- 5 lokali użytkowych, idealnych na sklepy, biura czy usługi
- 8 mieszkań, które cieszą się dużym zainteresowaniem najemców. 

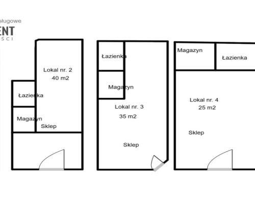
Parter: 
1. Lokal usługowy nr. 1 pow. 40 m2 
2. Lokal usługowy nr. 2 pow. 40 m2
3. Lokal usługowy nr. 3 pow. 35 m2
4. Lokal usługowy nr. 4 pow. 25 m2
5. Lokal usługowy nr. 5 pow. 25 m2
6. Mieszkanie nr. 1 pow. 41 m2

Piętro:
1. Mieszkanie nr. 2 pow. 80 m2
2. Mieszkanie nr. 3 pow. 79 m2
3. Mieszkanie nr. 4 pow. 71 m2
4. Mieszkanie nr. 5 pow. 36 m2
5. Mieszkanie nr. 6 pow. 72 m2

Poddasze: 
6. Mieszkanie nr. 7 pow. 46 m2
7. Mieszkanie nr. 8 pow. 43 m2

Strych: 58 m2

Wnętrza kamienicy to przestronne pomieszczenia, które zapewniają komfort użytkowania zarówno dla najemców komercyjnych, jak i mieszkaniowych. Lokale użytkowe na parterze posiadają dużą witrynę, co sprawia, że są doskonałą opcją na prowadzenie działalności gospodarczej w samym centrum miasta. Piętra natomiast oferują komfortowe mieszkania, które można z łatwością przekształcić lub dostosować do indywidualnych potrzeb.

Znakomita lokalizacja kamienicy w pobliżu głównych arterii komunikacyjnych Trzemeszna, w okolicy sklepów, restauracji oraz innych punktów usługowych, sprawia, że nieruchomość cieszy się dużym zainteresowaniem najemców. To świetna okazja dla inwestorów szukających nieruchomości o wysokim potencjale dochodowym w rozwijającej się miejscowości, która wciąż przyciąga nowych mieszkańców i turystów.

Kamienica to również doskonała alternatywa dla osób, które chcą połączyć inwestycję w nieruchomości z długoterminowym zyskiem. Z pełnym wynajmem, kamienica zapewnia stały dochód, a jej pozycja na rynku lokalnym czyni ją wyjątkową ofertą inwestycyjną.

Kontakt:
798 857 370
Mateusz Geszczyński

Kontaktując się z agentem odpowiedzialnym za ofertę, koniecznie zapytaj jakie są warunki współpracy z naszym biurem oraz co w związku ze współpracą zapewniamy.
Dbając o bezpieczeństwo klientów sprzedających, a często także na ich wyraźne życzenie, nie podajemy adresów nieruchomości bez podpisania uprzednio umowy o pośrednictwo w kupnie lub najmie.

Prowizja jest uzgadniania indywidualnie, na spotkaniu i zależy od zakresu wykonywanych obowiązków na rzecz klienta zamawiającego.

Wszelkie podane przez Biuro informacje nie są ofertą w rozumieniu Kodeksu Cywilnego.

Zgodnie z Ustawą z dnia 26 lipca 2024 r. o zmianie ustawy o prawie autorskim i prawach pokrewnych, ustawy o ochronie baz danych oraz ustawy o zbiorowym zarządzaniu prawami autorskimi i prawami pokrewnymi, wykorzystywanie autorskich pomysłów, rozwiązań, kopiowanie, rozpowszechnianie zdjęć, fragmentów grafiki, tekstów opisów w celach zarobkowych, bez zezwolenia autora jest zabronione i stanowi naruszenie praw autorskich oraz podlega karze. Znaki towarowe i graficzne są własnością firmy Nieruchomości Apartament.

Mapa

Formularz kontaktowy

This site is protected by reCAPTCHA and the Google Privacy Policy and Terms of Service apply.

Promuj

Ogłoszenie nie jest promowane

Promowanie ogłoszenia: 0,00 zł / 1 dni


Podobne ogłoszenia




Ta strona używa ciasteczek (cookies), dzięki którym nasz serwis może działać lepiej. Akceptuję
Facebook
Facebook
Sprzedawanko.pl – serwis ogłoszeń Firmowanko.pl – katalog firm i usług Pracowanko.pl – serwis pracy Ugościmy.pl – serwis noclegów Nporta.pl – katalog firm i usług