📢
🔥 Bezpłatny Portal Ogłoszeniowy Nieruchomości 🔔 Dodaj Ogłoszenie Za Darmo Na WWW.NPORTA.PL 🔥

Wola: lokal biurowy na wynajem

[Wynajem] Lokale

Wola: lokal biurowy na wynajem
Wola: lokal biurowy na wynajem Wola: lokal biurowy na wynajem Wola: lokal biurowy na wynajem Wola: lokal biurowy na wynajem Wola: lokal biurowy na wynajem Wola: lokal biurowy na wynajem Wola: lokal biurowy na wynajem

Cena: 50.000 zł

Dodane przez: PropertyOffice
Region: Mazowieckie Warszawa
Adres:Kasprzaka
Agent: Property Office Sp. o.o.
E-mail: katarzyna@propertyoffice.pl

pokaż numer telefonu...

pokaż adres email...

Opublikowano: 12-04-2026 | Wygaśnie: 12-04-2027 | Wyświetleń: 1

ID ogłoszenia: 157637 | Numer oferty: 360789

Szczegóły

Ogłoszenia: Firmowe
Rynek: Nie
Pow. użytkowa: 625 m²
Piętro: 2 piętro
Liczba pięter: 7
Materiał budynku: cegła
Rok budowy: 1999
Ogrzewanie: miejskie
Stan wykończenia: bardzo dobry
Forma własności: własność
Nr licencji: 22020
Data aktualizacji: 2026-04-12 17:28:19

Opis

internet wliczony w czynsz

---------------------------------

Warszawa - Do wynajęcia: lokal biurowy o pow. 625 m2 na 2 piętrze w budynku biurowym na warszawskiej Woli, w okolicach stacji metra Płocka.

poleca Agencja Nieruchomości Property Office (tel. 731-321-117, mail: katarzyna@propertyoffice.pl)

---------Bez prowizji od Najemcy---------

Lokal dostępny od 1 października 2026r.

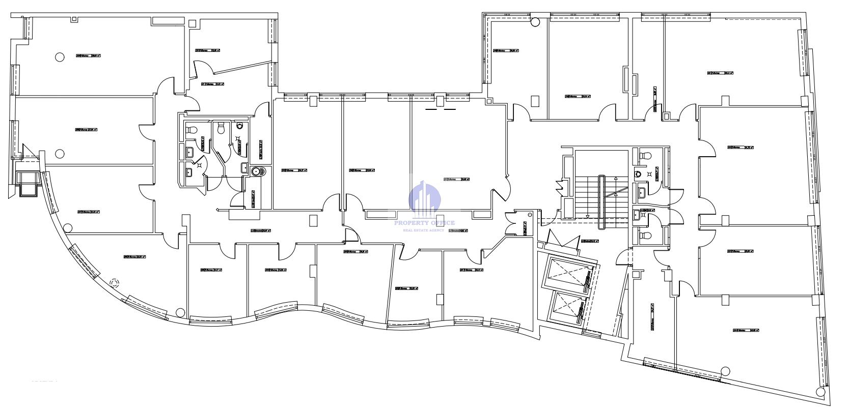
Lokal zajmuje całe drugie piętro kameralnego budynku biurowego.

Rzut dołączony do oferty pokazuje aktualny, gabinetowy podział powierzchni:

-22 pokoje biurowe różnej wielkości,

-łazienki,

-pomieszczenia pomocnicze,

Możliwa zmiana aranżacji lokalu.

Powierzchnia dobrze doświetlona światłem dziennym.

Wykładzina dywnowa na podłodze.

Ściany pomalowane na biało.

Grzejniki z termoregulatorami,.

Sufity podwieszane.

Lampy rastrowe 500 luksów.

klimatyzacja.

Otwierane okna.

Rozprowadzona sieć telefoniczna i komputerowa.

Na miesięczne koszty najmu netto składają się:

-czynsz: 50000 PLN,

-opłaty eksploatacyjne: 25 PLN/m2,

Razem netto: 65625 PLN,

-energia elektryczna dla klimatyzatora,

Wliczone w cenę: woda, ogrzewanie, dostęp do internetu.

Opłaty naliczane są od powierzchni brutto, czyli z wliczonym współczynnikiem powierzchni wspólnych (7%).

Parking:

Miejsca parkingowe naziemne: 250 zł / msc.

Miejsca parkingowe w garażu: 350 zł / msc.

Budynek znajduje się w strefie płatnego parkowania.

Umowa:

-minimalny okres najmu: 18 miesięcy

-kaucja 2 miesiące,

Opis budynku:

7-kondygnacyjny budynek biurowy o łącznej powierzchni najmu około 4 tys. m2.

Każdy poziom oferuje powierzchnię ok.400- 600 m2.

-recepcja na parterze w godz. 8-16 od pon. do pt,

-dostęp do biura 24/7,

-ochrona budynku

Zalety lokalizacji:

W pobliżu przebiega także zachodnia obwodnica miasta z trasami wylotowymi w kierunku Poznania, Łodzi, Katowic, Krakowa, Gdańska i Lublina.

Bardzo dobry dostęp do środków komunikacji takich jak liczne linie tramwajowe i autobusowe.

Dodatkowym atutem jest znajdująca się w pobliżu stacja drugiej linii metra: Rondo Daszyńskiego.

Do podanych cen należy dodać podatek VAT w wysokości 23%

Zdjęcia pokazują przykładowe powierzchnie w budynku.

Polecam i zapraszam do oglądania:

Katarzyna@propertyoffice.pl ;

tel. 731-321-117

www.propertyoffice.pl

Treść niniejszego ogłoszenia nie stanowi oferty handlowej w rozumieniu art.66 1 kodeksu cywilnego oraz innych właściwych przepisów prawnych.

Oferta wysłana z programu IMO dla biur nieruchomości

Mapa

Formularz kontaktowy

This site is protected by reCAPTCHA and the Google Privacy Policy and Terms of Service apply.

Promuj

Ogłoszenie nie jest promowane

Promowanie ogłoszenia: 0,00 zł / 1 dni


Podobne ogłoszenia




Ta strona używa ciasteczek (cookies), dzięki którym nasz serwis może działać lepiej. Akceptuję
Facebook
Facebook
Sprzedawanko.pl – serwis ogłoszeń Firmowanko.pl – katalog firm i usług Pracowanko.pl – serwis pracy Ugościmy.pl – serwis noclegów Nporta.pl – katalog firm i usług