📢
🔥 Bezpłatny Portal Ogłoszeniowy Nieruchomości 🔔 Dodaj Ogłoszenie Za Darmo Na WWW.NPORTA.PL 🔥

Szereg idealny dla Ciebie! OKAZYJNA CENA!

[Sprzedaż] Domy

Szereg idealny dla Ciebie! OKAZYJNA CENA!
Szereg idealny dla Ciebie! OKAZYJNA CENA! Szereg idealny dla Ciebie! OKAZYJNA CENA! Szereg idealny dla Ciebie! OKAZYJNA CENA! Szereg idealny dla Ciebie! OKAZYJNA CENA! Szereg idealny dla Ciebie! OKAZYJNA CENA!

Cena: 767.580 zł

Dodane przez: HomePartner
Region: Dolnośląskie Miękinia
Adres:Dolnobrzeska
Agent: Monika Łabęska - Cioch
E-mail: biuro@home-partner.com.pl
Telefon komórkowy: 536 496 163

pokaż adres email...

Opublikowano: 20-04-2026 | Wygaśnie: 20-04-2027 | Wyświetleń: 3

ID ogłoszenia: 159842 | Numer oferty: 20875

Szczegóły

Ogłoszenia: Firmowe
Rynek: Tak
Pow. użytkowa: 132.34 m²
Pow. działki: 160 m2
Pow. całkowita: 132.34 m²
Liczba pokoi: 5 pokoje
Liczba sypialni: 4
Liczba pięter: 1
Rodzaj zabudowy: segment
Materiał budynku: inny
Okna: PCV
Podłogi: beton
Rok budowy: 2024
Ogrzewanie: gazowe
Forma własności: własność
Dach: skośny
Nr licencji: 23243
Data aktualizacji: 2026-04-20 11:45:47

Opis

<b>Szereg idealny dla Ciebie! OKAZYJNA CENA!</b>

Zapraszamy do zakupu nowoczesnego szeregu z ogródkiem.

<b>Inwestycja oddana do użytku</b>

<b>Bez prowizji i podatku PCC</b>

Na sprzedaż <b>dom w zabudowie szeregowej z ogrodem i 2 balkonami o powierzchni 135,13 m2</b>, znajdujące się na inwestycji deweloperskiej, zlokalizowanej w Miękini.

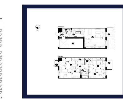
<b>Szereg składa się z:</b>

Przedpokoju: 2,82 m2

WC: 2,58 m2

Korytarza: 7,16 m2

Łazienki: 5,35 m2

Pokoju z aneksem kuchennym: 33,65 m2

Korytarza: 6,94 m2

Schodów: 4,38 m2

Schowka: 2,67 m2

Pokoju: 12,13 m2

Pokoju: 11,63 m2

Pokoju: 14,57 m2

Pokoju: 12,40 m2

Balkonu: 3,90 m2

Balkonu: 1,52 m2

<b>Ogrodu:</b> 63,79 m2

<b>Garażu:</b> 18,85 m2

Mieszkanie o ekspozycji wschodnio zachodniej, pięknie oświetlone!

<b>Szczegóły inwestycji:

</b>

<b>Lokalizacja:</b> Miękinia, z dogodnym dojazdem do centrum Wrocławia

<b>Etap budowy:</b> Mieszkania oddane do użytku

<b>Liczba mieszkań:</b> W I etapie powstanie 408 mieszkań w budynkach wielorodzinnych, 48 lokali mieszkalnych w zabudowie szeregowej oraz 3 lokale usługowe

<b>Atuty mieszkania:</b>

<b>Poziom:</b> 1 Piętro z balkonem

<b>Nowoczesna architektura:</b> Spójna i estetyczna elewacja, jasna betonowa kolorystyka podkreślająca otaczający krajobraz, drewniane balustrady balkonów

<b>Funkcjonalny układ:</b> Przemyślany projekt zapewniający komfort mieszkańcom,

<b>Bliskość przyrody:</b> Inwestycja zlokalizowana częściowo w granicach Obszaru Specjalnej Ochrony Natura 2000 Łęgi Odrzańskie

<b>Dodatkowe informacje:

</b>

<b>Infrastruktura: </b>Układ dróg wewnętrznych, chodniki, elementy małej architektury, stojaki rowerowe, miejsca postojowe, place zabaw, tereny rekreacyjne i zielone

<b>Rekreacja:</b> Miejsca wypoczynkowe obsadzone średnimi i wysokimi trawami ozdobnymi, malownicze drzewa i krzewy, teren rekreacyjny dla psów

<b>Dojazd:</b> Wjazd na teren działki z drogi gminnej poprzez nowoprojektowany wjazd

<b>LOKALIZACJA</b>

<b>Dojazd do Wrocławia:

</b>

<b>Kolejowy:</b>

oWrocław Muchobór (IBM, Wrocławski Park Przemysłowy): 17 minut

oWrocław Główny: 23 minuty

<b>Drogowy:</b>

oMiękinia Wrocław, Pl. Jana Pawła II: 27 km, ok. 40 minut

Lokalizacja inwestycji oferuje doskonałe połączenie komunikacyjne z Wrocławiem zarówno koleją, jak i drogami, co zapewnia wygodny i szybki dojazd do centrum miasta.

<b>Potencjał gospodarczy regionu:</b>

Warto również docenić dynamiczny rozwój gospodarczy powiatu średzkiego. Znajduje się tu wiele zakładów produkcyjnych i firm, zarówno polskich, jak i zagranicznych. Najnowsza, kluczowa inwestycja w regionie to budowa Zakładu Integracji i Testowania Półprzewodników przez firmę Intel w Miękini. Projekt ten przyczyni się do powstania tysięcy nowych miejsc pracy oraz przyciągnie kolejnych inwestorów, co dodatkowo zwiększy atrakcyjność lokalizacji.

Dzięki temu mieszkańcy Nowej Winnicy będą mieli łatwy dostęp do nowych możliwości zawodowych oraz korzyści płynących z rozwoju gospodarczego regionu.

<b>Serdecznie zapraszamy do kontaktu w celu uzyskania dodatkowych informacji oraz umówienia się na prezentację mieszkania.</b>

<b>Nie przegap okazji! Zainwestuj w nowoczesne i komfortowe mieszkanie w zabudowie szeregowej już dziś!</b>

Zapraszamy do kontaktu w celu uzyskania dodatkowych informacji oraz umówienia się na bezpłatną prezentację nieruchomości: Tel. +48 889 759 863.

Feel free to contact us, talk and see the apartment. For more information please call us Tel. +48 889 759 863.

Por favor contáctenos para conocer más sobre la oferta y ver el apartamento. Podemos ayudar con todos los trámites. Para más información por favor llámanos +48 889 759 863.

www.home-partner.com.pl

Treść niniejszego ogłoszenia nie stanowi oferty handlowej w rozumieniu Kodeksu Cywilnego.

Oferta wysłana z programu IMO dla biur nieruchomości

Mapa

Formularz kontaktowy

This site is protected by reCAPTCHA and the Google Privacy Policy and Terms of Service apply.

Promuj

Ogłoszenie nie jest promowane

Promowanie ogłoszenia: 0,00 zł / 1 dni


Podobne ogłoszenia




Ta strona używa ciasteczek (cookies), dzięki którym nasz serwis może działać lepiej. Akceptuję
Facebook
Facebook
Sprzedawanko.pl – serwis ogłoszeń Firmowanko.pl – katalog firm i usług Pracowanko.pl – serwis pracy Ugościmy.pl – serwis noclegów Nporta.pl – katalog firm i usług