📢
🔥 Świętujemy 10.000 Opublikowanych Ogłoszeń Nieruchomości 🔔z tej okazji oferujemy 10 Promowań za FREE na WWW.NPORTA.PL 🔥

Dębniki, nowe mieszkania, stan deweloperski!

[Sprzedaż] Mieszkania

Dębniki, nowe mieszkania, stan deweloperski!
Dębniki, nowe mieszkania, stan deweloperski! Dębniki, nowe mieszkania, stan deweloperski! Dębniki, nowe mieszkania, stan deweloperski! Dębniki, nowe mieszkania, stan deweloperski! Dębniki, nowe mieszkania, stan deweloperski! Dębniki, nowe mieszkania, stan deweloperski!

Cena: 1.411.488 zł

Dodane przez: braciasadurscy
Region: Małopolskie Kraków
Adres:Babińskiego
Agent: Marek Popiela
E-mail: marek@sadurscy.pl
Telefon komórkowy: +48 518-967-677

pokaż adres email...

Opublikowano: 23-04-2026 | Wygaśnie: 23-04-2027 | Wyświetleń: 1

ID ogłoszenia: 160771 | Numer oferty: BS2-MS-307193-22

Szczegóły

Ogłoszenia: Firmowe
Rynek: Pierwotny
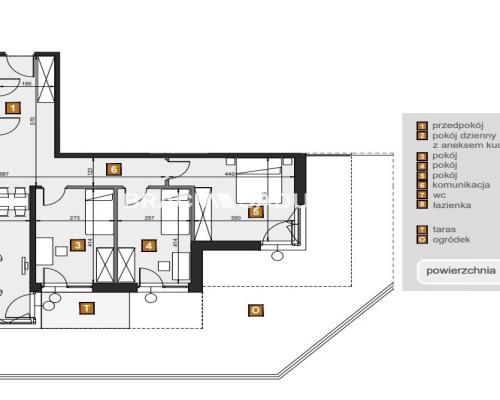
Pow. użytkowa: 90.48 m²
Cena za m2: 15600 zł/m²
Liczba pokoi: 4 pokoje
Liczba sypialni: 1
Rodzaj budynku: nowe budownictwo
Liczba pięter: 2
Materiał budynku: beton, płyta
Okna: PCV
Rok budowy: 2025
Ogrzewanie: miejskie
Stan wykończenia: deweloperski
Forma własności: Własność
Data aktualizacji: 2026-04-23

Opis


DEBNIKI - NOWE MIESZKANIA, STAN DEWELOPERSKI.

Osiedle położone przy Dębnikach to nowoczesne osiedle zaprojektowane z myślą o komforcie, funkcjonalności i wysokim standardzie życia. Doskonała lokalizacja, elegancka architektura oraz liczne udogodnienia sprawiają, że jest to idealne miejsce zarówno dla rodzin, jak i inwestorów.

Projekt zakłada budowę 280 mieszkań o zróżnicowanych metrażach, od kompaktowych kawalerek do przestronnych mieszkań 4 pokojowych.
Możliwość zakupu miejsca postojowego oraz komórki lokatorskiej!

Świetna lokalizacja


Spokojna okolica z szybkim dostępem do centrum Krakowa.
Bliskość komunikacji miejskiej (tramwaje, autobusy).
W pobliżu sklepy, restauracje, szkoły, przedszkola oraz tereny zielone.


Nowoczesna architektura i funkcjonalne mieszkania


Przemyślane układy mieszkań od kawalerek po przestronne apartamenty.
Duże przeszklenia zapewniające naturalne oświetlenie.
Wysoka jakość materiałów i elegancki design budynków.


Komfort i rekreacja


Zielone przestrzenie i tereny rekreacyjne dla mieszkańców.
Plac zabaw dla dzieci i strefy wypoczynkowe.
Cichobieżne windy oraz nowoczesne klatki schodowe.


Wygodne parkowanie i bezpieczeństwo


Podziemny parking oraz naziemne miejsca postojowe.
Monitoring i kontrola dostępu dla większego bezpieczeństwa.


Atrakcyjna oferta cenowa i finansowanie


Możliwość skorzystania z programów wsparcia kredytowego.



Skontaktuj się i poznaj szczegóły!

Opiekun oferty: Marek Popiela
Telefon: 518-967-677
E-mail: marek@sadurscy.pl


--------------------------

::GRATIS | Nasza prowizja zawiera: koszt przedwstępnej notarialnej umowy sprzedaży nieruchomości z rynku wtórnego.
::GWARANCJA | Gwarancja zwrotu zadatku. Więcej informacji na sadurscy.pl/zwrot-zadatku/


Oferta wysłana z systemu Galactica Virgo

Mapa

Formularz kontaktowy

This site is protected by reCAPTCHA and the Google Privacy Policy and Terms of Service apply.

Promuj

Ogłoszenie nie jest promowane

Promowanie ogłoszenia: 0,00 zł / 1 dni


Podobne ogłoszenia




Ta strona używa ciasteczek (cookies), dzięki którym nasz serwis może działać lepiej. Akceptuję
Facebook
Facebook
Sprzedawanko.pl – serwis ogłoszeń Firmowanko.pl – katalog firm i usług Pracowanko.pl – serwis pracy Ugościmy.pl – serwis noclegów Nporta.pl – katalog firm i usług