📢
🔥 Świętujemy 10.000 Opublikowanych Ogłoszeń Nieruchomości 🔔z tej okazji oferujemy 10 Promowań za FREE na WWW.NPORTA.PL 🔥

Mieszkanie z Imponującą Wysokością Pomieszczeń!

[Sprzedaż] Mieszkania

Mieszkanie z Imponującą Wysokością Pomieszczeń!
Mieszkanie z Imponującą Wysokością Pomieszczeń! Mieszkanie z Imponującą Wysokością Pomieszczeń! Mieszkanie z Imponującą Wysokością Pomieszczeń! Mieszkanie z Imponującą Wysokością Pomieszczeń! Mieszkanie z Imponującą Wysokością Pomieszczeń! Mieszkanie z Imponującą Wysokością Pomieszczeń! Mieszkanie z Imponującą Wysokością Pomieszczeń! Mieszkanie z Imponującą Wysokością Pomieszczeń! Mieszkanie z Imponującą Wysokością Pomieszczeń!

Cena: 1.338.000 zł

Dodane przez: braciasadurscy
Region: Małopolskie Kraków
Adres:Reduta
Agent: Barbara Nazarewicz
E-mail: basia@sadurscy.pl
Telefon komórkowy: +48 515-634-552

pokaż adres email...

Opublikowano: 23-04-2026 | Wygaśnie: 23-04-2027 | Wyświetleń: 1

ID ogłoszenia: 161225 | Numer oferty: BS2-MS-309649-90

Szczegóły

Ogłoszenia: Firmowe
Rynek: Pierwotny
Pow. użytkowa: 90.25 m²
Cena za m2: 14825.48 zł/m²
Liczba pokoi: 3 pokoje
Liczba sypialni: 2
Rodzaj budynku: nowe budownictwo
Liczba pięter: 5
Materiał budynku: mieszana
Okna: PCV
Rok budowy: 2023
Ogrzewanie: C.O. miejskie
Stan wykończenia: deweloperski
Forma własności: Własność
Data aktualizacji: 2026-04-23

Opis


Marzysz, aby mieszkać w cichej i spokojnej okolicy nie rezygnując jednocześnie z uroków miasta?
Jesteś w dobrym miejscu!

Przedstawiamy inwestycję w krakowskiej dzielnicy Prądnik Czerwony, która znajduje się tuż przy 8 hektarowym parku rekreacyjno-spacerowym.
W skład wchodzą 2 budynki 6- kondygnacyjne , kolejno po 22 i 37 mieszkań. Funkcjonalne układy mieszkań mieszczące się w przedziałach od 40/41 m2- 137 m2 przypadną do gustu nawet tym najbardziej wymagającym.

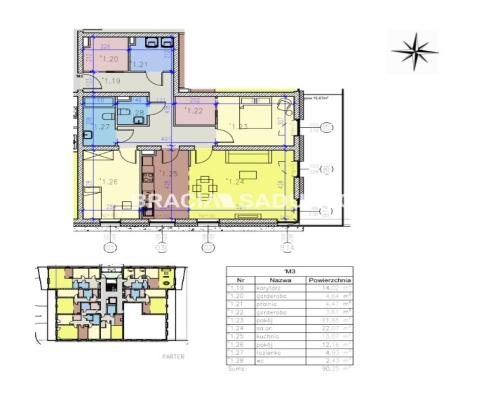
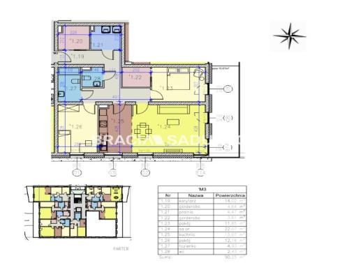
Przedmiotem ogłoszenia jest 3 pokojowe mieszkanie o pow.89,93m2 zlokalizowane na parterze (0/5).

Składa się z :
Salon (22,36m2) + kuchnia (9,83m2)
Pokój 1 (12,15m2)
Pokój 2 (11,79m2) + garderoba (3,57m2)
pralnia (4,46m2)
Łazienka (4,92m2)
Toaleta (2,41m2)
Korytarz (14,12m2)+ garderoba (4,56m2)

Do mieszkania przynależy taras o pow.15,87m2 (wykończony płytkami, szklanymi balustradami oraz oświetleniem ledowym)

Wysokość pomieszczeń na poziomie 3,13 metra w mieszkaniach zlokalizowanych na parterze dodaje wyjątkowego charakteru, umożliwiając kreatywne aranżacje z nietypowym wyposażeniem.
Dzięki temu można łatwo wydzielić różne strefy funkcjonalne, używając antresoli lub podwieszanych przegród.

Ekspozycja okien na POŁUDNIE oraz WSCHÓD



Inwestycja wykonana z najwyższej jakości materiałów budowlanych z dbałością o każdy szczegół.
Większość mieszkań na parterach będą mieć ogródki , na wyższych piętrach balkony . Podziemna część budynku przeznaczona jest na garaż z miejscami parkingowymi, komórkami lokatorskimi, miejscami dla jednośladów oraz rowerów.

Niebywałym atutem jest lokalizacja, która sprzyja osobom zarówno przemieszczającym się samochodem jak i komunikacją miejską. Pobliskie tereny bogate są w punkty usługowo-handlowe oraz rozrywkowe np. Serenada, Park Wodny, Multikino , co z pewnością odpowie potrzebom zarówno młodszych jak i starszych osób. Obecność Parku tuż obok inwestycji daje możliwość obcowania z naturą oraz spędzenia wolnego czasu na świeżym powietrzu. W bliskim sąsiedztwie zabudowy wielorodzinnej znajdują się żłobki, przedszkola oraz szkoła.




Możliwość wejścia na mieszkania po wcześniejszym umówieniu spotkania.

Serdecznie polecam i zapraszam do kontaktu
Barbara Nazarewicz
Tel: +48 515-634-552
basia@sadurscy.pl


Zobacz Wirtualny Spacer: https://my.matterport.com/show/?m=C1ZFf2ayZZ4

--------------------------

::GRATIS | Nasza prowizja zawiera: koszt przedwstępnej notarialnej umowy sprzedaży nieruchomości z rynku wtórnego.
::GWARANCJA | Gwarancja zwrotu zadatku. Więcej informacji na sadurscy.pl/zwrot-zadatku/


Oferta wysłana z systemu Galactica Virgo

Film z Youtube

Wirtualny spacer

Mapa

Formularz kontaktowy

This site is protected by reCAPTCHA and the Google Privacy Policy and Terms of Service apply.

Promuj

Ogłoszenie nie jest promowane

Promowanie ogłoszenia: 0,00 zł / 1 dni


Podobne ogłoszenia




Ta strona używa ciasteczek (cookies), dzięki którym nasz serwis może działać lepiej. Akceptuję
Facebook
Facebook
Sprzedawanko.pl – serwis ogłoszeń Firmowanko.pl – katalog firm i usług Pracowanko.pl – serwis pracy Ugościmy.pl – serwis noclegów Nporta.pl – katalog firm i usług