📢
🔥 Świętujemy 10.000 Opublikowanych Ogłoszeń Nieruchomości 🔔z tej okazji oferujemy 10 Promowań za FREE na WWW.NPORTA.PL 🔥

ZŁOCIEŃ – Twoje mieszkanie na wschodzie Krakowa

[Sprzedaż] Mieszkania

ZŁOCIEŃ – Twoje mieszkanie na wschodzie Krakowa
ZŁOCIEŃ – Twoje mieszkanie na wschodzie Krakowa ZŁOCIEŃ – Twoje mieszkanie na wschodzie Krakowa ZŁOCIEŃ – Twoje mieszkanie na wschodzie Krakowa ZŁOCIEŃ – Twoje mieszkanie na wschodzie Krakowa ZŁOCIEŃ – Twoje mieszkanie na wschodzie Krakowa ZŁOCIEŃ – Twoje mieszkanie na wschodzie Krakowa ZŁOCIEŃ – Twoje mieszkanie na wschodzie Krakowa ZŁOCIEŃ – Twoje mieszkanie na wschodzie Krakowa

Cena: 620.424 zł

Dodane przez: braciasadurscy
Region: Małopolskie Kraków
Adres:Osiedle Złocień
Agent: Marek Popiela
E-mail: marek@sadurscy.pl
Telefon komórkowy: +48 518-967-677

pokaż adres email...

Opublikowano: 23-04-2026 | Wygaśnie: 23-04-2027 | Wyświetleń: 3

ID ogłoszenia: 162056 | Numer oferty: BS2-MS-314503-137

Szczegóły

Ogłoszenia: Firmowe
Rynek: Pierwotny
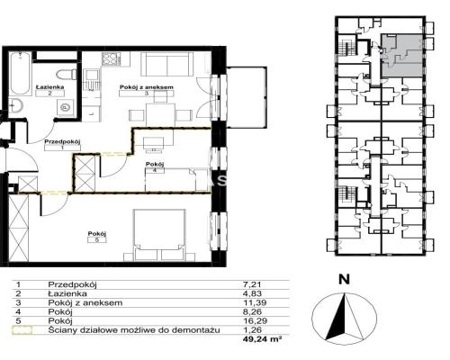
Pow. użytkowa: 49.24 m²
Cena za m2: 12600 zł/m²
Liczba pokoi: 3 pokoje
Liczba sypialni: 2
Rodzaj budynku: budynek wielorodzinny
Piętro: 1 piętro
Liczba pięter: 4
Materiał budynku: tradycyjna
Okna: PCV
Rok budowy: 2026
Ogrzewanie: C.O. miejskie
Stan wykończenia: deweloperski
Forma własności: Własność
Data aktualizacji: 2026-04-23

Opis



ZŁOCIEŃ - nowoczesne osiedle mieszkaniowe

Przedstawiamy wyjątkowe osiedle położone w południowo-wschodniej części miasta, które łączy nowoczesną architekturę, komfort mieszkania i bliskość zielonych przestrzeni.

O mieszkaniach
W ofercie znajdują się funkcjonalne dwu-, trzy- i czteropokojowe mieszkania o powierzchni od 33 do 60 m². Lokale na parterze posiadają prywatne ogródki, a mieszkania na wyższych piętrach - przestronne balkony. Najwyższe kondygnacje wyróżniają się dużymi tarasami na dachu, zapewniającymi relaks i piękne widoki. Budynek powstaje w tradycyjnej technologii i oferowany jest w stanie deweloperskim, z tynkami, wylewkami i kompletnymi instalacjami.

Architektura i infrastruktura osiedla
Osiedle składa się z czteropiętrowych budynków o nowoczesnej, jasnej elewacji. Teren jest ogrodzony, z zaplanowaną zielenią, wspólną strefą rekreacyjną oraz drogami dojazdowymi. Budynki wyposażone są w cichobieżne windy, a miejsca postojowe znajdują się zarówno w garażu podziemnym, jak i w garażach na parterze.

Okolica i udogodnienia
W sąsiedztwie osiedla znajduje się bogata infrastruktura handlowo-usługowa: sklepy spożywcze (Biedronka, Lidl, Żabka), drogeria Rossmann, restauracje, kawiarnie, a w odległości 2 km - bazarek miejski. Do centrum handlowego „Targowe” dojazd zajmuje około 15 minut.

Edukacja i opieka medyczna
W okolicy działają przedszkola i żłobki, m.in. „Akademia Smyka” i „Krasnal”, szkoły podstawowe nr 111 i 124 oraz XXV Liceum Ogólnokształcące im. Stefana Żeromskiego (ok. 3 km). Dostępna jest również opieka medyczna, apteki i przychodnie rodzinne.

Sport i rekreacja
Osiedle oferuje łatwy dostęp do siłowni plenerowych, fitness centrów i basenów, umożliwiając aktywny tryb życia.

Komunikacja
Doskonała lokalizacja zapewnia szybki dojazd do różnych części miasta dzięki bliskości ulic Agatowej, Henryka i Karola Czeczów oraz drogi krajowej S7. W odległości ok. 450 m znajduje się przystanek autobusowy linii 125 i 183, a stacja kolejowa - 2,3 km od osiedla.

Kontakt
Marek Popiela
+48 518 967 677
marek@sadurscy.pl


--------------------------

::GRATIS | Nasza prowizja zawiera: koszt przedwstępnej notarialnej umowy sprzedaży nieruchomości z rynku wtórnego.
::GWARANCJA | Gwarancja zwrotu zadatku. Więcej informacji na sadurscy.pl/zwrot-zadatku/


Oferta wysłana z systemu Galactica Virgo

Mapa

Formularz kontaktowy

This site is protected by reCAPTCHA and the Google Privacy Policy and Terms of Service apply.

Promuj

Ogłoszenie nie jest promowane

Promowanie ogłoszenia: 0,00 zł / 1 dni


Podobne ogłoszenia




Ta strona używa ciasteczek (cookies), dzięki którym nasz serwis może działać lepiej. Akceptuję
Facebook
Facebook
Sprzedawanko.pl – serwis ogłoszeń Firmowanko.pl – katalog firm i usług Pracowanko.pl – serwis pracy Ugościmy.pl – serwis noclegów Nporta.pl – katalog firm i usług