📢
🔥 Świętujemy 10.000 Opublikowanych Ogłoszeń Nieruchomości 🔔z tej okazji oferujemy 10 Promowań za FREE na WWW.NPORTA.PL 🔥

NOWOCZESNE DOMY POD KRAKOWEM

[Sprzedaż] Domy

NOWOCZESNE DOMY POD KRAKOWEM
NOWOCZESNE DOMY POD KRAKOWEM NOWOCZESNE DOMY POD KRAKOWEM NOWOCZESNE DOMY POD KRAKOWEM NOWOCZESNE DOMY POD KRAKOWEM NOWOCZESNE DOMY POD KRAKOWEM NOWOCZESNE DOMY POD KRAKOWEM NOWOCZESNE DOMY POD KRAKOWEM NOWOCZESNE DOMY POD KRAKOWEM NOWOCZESNE DOMY POD KRAKOWEM

Cena: 830.000 zł

Dodane przez: braciasadurscy
Region: Małopolskie Czernichów
Adres:Śląska
Agent: Patrycja Rubinkiewicz
E-mail: patrycja@sadurscy.pl
Telefon komórkowy: +48 505-236-943

pokaż adres email...

Opublikowano: 23-04-2026 | Wygaśnie: 23-04-2027 | Wyświetleń: 4

ID ogłoszenia: 162241 | Numer oferty: BS2-DS-313339-43

Szczegóły

Ogłoszenia: Firmowe
Rynek: Pierwotny
Pow. użytkowa: 104.24 m²
Pow. działki: 570 m2
Pow. całkowita: 104.24 m²
Cena za m2: 7962.39 zł/m²
Liczba pokoi: 4 pokoje
Liczba sypialni: 3
Liczba pięter: 1
Rodzaj zabudowy: jednorodzinny
Okna: PCV
Rok budowy: 2024
Ogrzewanie: podłogowe
Forma własności: Własność
Dach: dachówka cementowa
Data aktualizacji: 2026-04-23

Opis


Domy jednorodzinne pod Krakowem

Prezentuję Państwu ofertę nowoczesnych i funkcjonalnych domów położonych na działkach od 300 m2 do 710 m2. Osiedle składa się z 19 domów wolnostojących o powierzchni użytkowej 104,24 m2, w miejscowości Przeginia Duchowna.

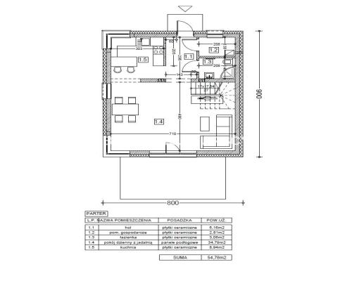
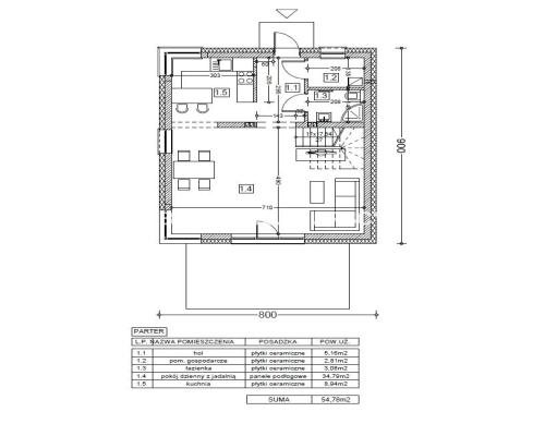
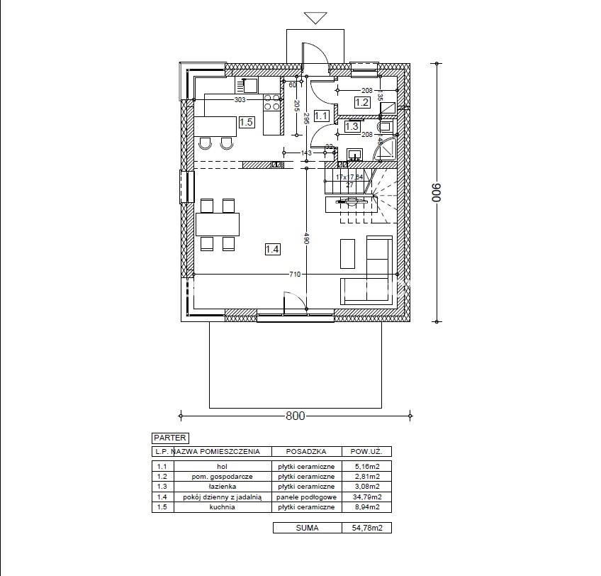
Rozkład domu:

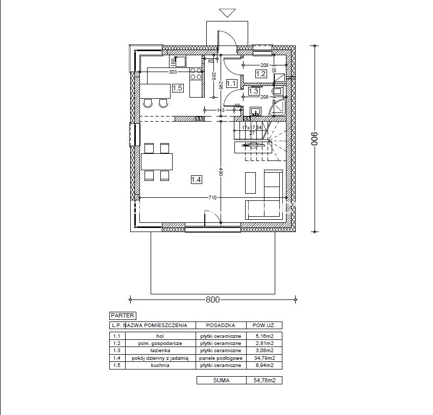
Parter

1. Hol - 5,16 m2
2. Pomieszczenie gospodarcze - 2, 81 m2
3. Łazienka - 3,08 m2
4. Pokój dzienny z jadalnią - 34,79 m2
5. Kuchnia - 8,94

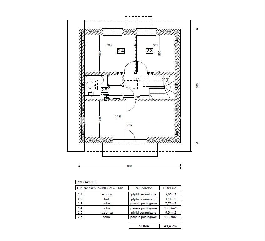
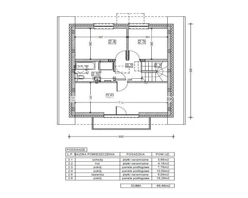
Poddasze

1. Schody - 3,65 m2
2. Hol - 4,16 m2
3. Pokój - 7,76 m2
4. Pokój - 10,59 m2
5. Pokój - 18,26 m2
6. Łazienka - 5,04 m2





Osiedle usytuowane jest w otoczeniu zieleni, lasów, a jednocześnie w miejscu dobrze skomunikowanym z miastem. W pobliżu przystanek autobusowy, tereny rekreacyjne, placówki edukacyjne ( dwie szkoły podstawowe, przedszkola ), stacja benzynowa, sklepy, ośrodek zdrowia.


Termin zakończenia budowy w stanie deweloperskim grudzień 2024r.

Stan deweloperski:
- budynek wykonany technologią tradycyjną: ściany nośne - POROTHERM 25 cm, ścianki działowe - pustak ceramiczny POROTHERM 11,5 cm
- elewacja: ocieplenie - styropian 20 cm + tynk akrylowy
- fundamenty betonowe z hydroizolacją i ociepleniem 15 cm
- pokrycie: dachówka ceramiczna, okna dachowe FAKRO, rynny PCV
- podbitka dachu drewniana
- kominy wykonane systemem
- okna plastik w kolorze
- drzwi wejściowe ocieplane
- podłogi: wylewki i izolacje
- ściany: tynki maszynowo-gipsowe
- poddasze ocieplone: wełna 30 cm, konstrukcja metalowa, płyty gipsowo-kartonowe
- zamontowane schody strychowe
- barierki metalowe na balkonach
- parapety wewnętrzne: kamień naturalny
- przyłącz prądu, wody, kanalizacji i gazu wraz z wykonanymi instalacjami w budynku
- wentylacja mechaniczna
- wykonana instalacja antenowa
- kocioł z zamkniętą komorą spalania
- ogrzewanie podłogowe
- zamontowany zestaw podtynkowy GEBERIT
- alarm z powiadomieniem jednostki interwencyjnej
- budynek oddany do użytkowania - ODBIÓR TECHNICZNY
- bez drzwi wewnętrznych, podłóg, szpachlowania, malowania, białego montażu

- podjazd oraz opaski wokół budynku wyłożone kostką brukową
- działka ogrodzona powlekaną siatką
- brama wjazdowa i furtka
- taras z widokiem na ogród wyłożony kostką brukową
- teren wokół budynku wstępnie uporządkowany i zniwelowany
- okolica spokojna, przewaga terenów zielonych

Zdjęcia poglądowe z innej lokalizacji.


W celu uzyskania bliższych informacji zapraszam do kontaktu:

Zapraszam do kontaktu
Patrycja Rubinkiewicz
505 236 943
patrycja@sadurscy.pl









--------------------------

::GRATIS | Nasza prowizja zawiera: koszt przedwstępnej notarialnej umowy sprzedaży nieruchomości z rynku wtórnego.
::GWARANCJA | Gwarancja zwrotu zadatku. Więcej informacji na sadurscy.pl/zwrot-zadatku/


Oferta wysłana z systemu Galactica Virgo

Mapa

Formularz kontaktowy

This site is protected by reCAPTCHA and the Google Privacy Policy and Terms of Service apply.

Promuj

Ogłoszenie nie jest promowane

Promowanie ogłoszenia: 0,00 zł / 1 dni


Podobne ogłoszenia




Ta strona używa ciasteczek (cookies), dzięki którym nasz serwis może działać lepiej. Akceptuję
Facebook
Facebook
Sprzedawanko.pl – serwis ogłoszeń Firmowanko.pl – katalog firm i usług Pracowanko.pl – serwis pracy Ugościmy.pl – serwis noclegów Nporta.pl – katalog firm i usług