📢
🔥 Świętujemy 10.000 Opublikowanych Ogłoszeń Nieruchomości 🔔z tej okazji oferujemy 10 Promowań za FREE na WWW.NPORTA.PL 🔥

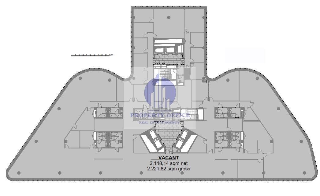
Mokotów: biuro 2222 m2

[Wynajem] Lokale

Mokotów: biuro 2222 m2
Mokotów: biuro 2222 m2 Mokotów: biuro 2222 m2 Mokotów: biuro 2222 m2 Mokotów: biuro 2222 m2

Cena: 35.552 zł

Dodane przez: PropertyOffice
Region: Mazowieckie Warszawa
Adres:Samochodowa
Agent: Property Office Sp. o.o.
E-mail: katarzyna@propertyoffice.pl

pokaż numer telefonu...

pokaż adres email...

Opublikowano: 29-04-2026 | Wygaśnie: 29-04-2027 | Wyświetleń: 1

ID ogłoszenia: 163374 | Numer oferty: 355098

Szczegóły

Ogłoszenia: Firmowe
Rynek: Nie
Pow. użytkowa: 2222 m²
Piętro: 2 piętro
Liczba pięter: 11
Rok budowy: 2013
Ogrzewanie: miejskie
Stan wykończenia: bardzo dobry
Forma własności: własność
Nr licencji: 22020
Data aktualizacji: 2026-02-10 18:13:59

Opis

Do wynajęcia: lokal biurowy o pow. 2222 m2 na 2 piętrze w nowoczesnym biurowcu na warszawskim Mokotowie, w OKOLICACH ul. Samochodowej.

poleca Agencja Nieruchomości Property Office (tel. 731-321-117, mail: katarzyna@propertyoffice.pl)

BEZ PROWIZJI

Powierzchnia biurowa zajmująca całe piętro budynku.

Układ mieszany: open space + pokoje biurowe + pomieszczenia pomocnicze i socjalne..

Lokal o wysokim standardzie wykończenia, które łatwo dostosować do zmieniających się potrzeb najemców.

Lokal zaprojektowany w sposób umożliwiący dostosowanie do wymagań Najemcy, jak również efektywne wykorzystanie powierzchni.

Optymalny dostęp światła dziennego do powierzchni biurowej: otwierane okna od sufitu do podłogi.

Wysokość: 2,70 m.

Podnoszone podłogi.

Podwieszany sufit.

Klimatyzacja.

Wykładzina dywanowa w płytkach.

Puszki podłogowe.

Miejsce na ekspozycję logotypu Najemcy na zewnatrz budynku.

Na miesięczne koszty najmu netto składają się:

-czynsz: przy zapytaniu ofertowym,

-koszty eksploatacyjne: przy zapytaniu ofertowym

-media,

Opłaty naliczane są od powierzchni brutto, tzn. z wliczonym współczynnikiem powierzchni wspólnych.

Spersonalizowaną ofertę najmu, klient otrzymuje po prezentacji lokalu.

Internet:

-opcjonalnie,

-Najemca indywidualnie podpisuje umowę z operatorem telekomunikacyjnym.

Parking:

Naziemne i podziemne miejsca parkingowe.

297 miejsc parkingowych zlokalizowanych na 4 kondygnacjach podziemnych.

Zewnętrzny parking dla gości i dostaw.

System rozpoznający tablice rejestracyjne umożliwiający rotacyjne parkowanie.

Udogodnienia dla rowerzystów:

-szatnie z prysznicami dla rowerzystów,

-przebieralnie,

-szafki z funkcją suszenia ubrań,

-kodowane szafki,

-stacja Veturilo w sasiedztwie,

-stacja naprawy rowerów,

-nowoczesna zadaszona wiata rowerowa,

-ścieżki rowerowe obok budynku,

-parking dla prawie 140 rowerów,

Umowa:

-czas określony: minimum 5 lat,

-kaucja 3 miesiące,

Opis budynku:

Nowoczesny budynek biurowy klasy A.

Powierzchnia typowego piętra wynosi około 2100 m2.

Na parterze budynku zaprojektowano powierzchnie handlowo-usługowe.

9 wind szybkobieżnych.

HVAC: klimakonwektory, VRV, freecooling,

Dwa niezależne źródła zasilania.

Kontrola dostępu do budynku.

Monitoring i całodobowa ochrona.

Oświetlenie LED w częściach wspólnych.

Agregat prądotwórczy do użyutku najemców.

System zarządzania budynkiem-BMS.

Udogodnienia dla Najemców: reprezentacyjne lobby recepcyjne z wyznaczoną strefą dla gości, kurier, bankomat, pokój matki/ojca z dzieckiem,

Zalety lokalizacji:

Położenie pozwala na pełne korzystanie ze stołecznej oferty handlowo usługowej, gastronomicznej, kulturalnej i hotelowej. Lokalizacja umożliwia sprawne przemieszczanie się, zarówno transportem publicznym, jak i prywatnym.

W pobliżu przystanki autobusowe, nieco dalej przystanki tramwajowe i stacje I linii metra: Wierzbno i Wilanowska.

Do podanych cen należy doliczyć podatek VAT w wysokości 23 %

Zdjęcia pokazują ogólny standard budynku.

Zapraszam na spotkanie w celu obejrzenia lokalu

Zachęcam do kontaktu telefonicznego pod numerem: 731-321-117

Po więcej ofert warszawskich biur, magazynów czy lokali usługowych do wynajęcia, zapraszam na stronę:

https://www.propertyoffice.pl/

Treść niniejszego ogłoszenia nie stanowi oferty handlowej w rozumieniu art.66 1 kodeksu cywilnego oraz innych właściwych przepisów prawnych.

Treść niniejszego ogłoszenia nie stanowi oferty handlowej w rozumieniu art.66 1 kodeksu cywilnego oraz innych właściwych przepisów prawnych.

Oferta wysłana z programu IMO dla biur nieruchomości

Mapa

Formularz kontaktowy

This site is protected by reCAPTCHA and the Google Privacy Policy and Terms of Service apply.

Promuj

Ogłoszenie nie jest promowane

Promowanie ogłoszenia: 0,00 zł / 1 dni


Podobne ogłoszenia




Ta strona używa ciasteczek (cookies), dzięki którym nasz serwis może działać lepiej. Akceptuję
Facebook
Facebook
Sprzedawanko.pl – serwis ogłoszeń Firmowanko.pl – katalog firm i usług Pracowanko.pl – serwis pracy Ugościmy.pl – serwis noclegów Nporta.pl – katalog firm i usług