📢
🔥 Świętujemy 10.000 Opublikowanych Ogłoszeń Nieruchomości 🔔z tej okazji oferujemy 10 Promowań za FREE na WWW.NPORTA.PL 🔥

Mokotów : lokal biurowy na wynajem

[Wynajem] Lokale

Mokotów : lokal biurowy na wynajem
Mokotów : lokal biurowy na wynajem Mokotów : lokal biurowy na wynajem Mokotów : lokal biurowy na wynajem Mokotów : lokal biurowy na wynajem Mokotów : lokal biurowy na wynajem Mokotów : lokal biurowy na wynajem Mokotów : lokal biurowy na wynajem Mokotów : lokal biurowy na wynajem

Cena: 4.000 zł

Dodane przez: PropertyOffice
Region: Mazowieckie Warszawa
Adres:Postępu
Agent: Property Office Sp. o.o.
E-mail: katarzyna@propertyoffice.pl

pokaż numer telefonu...

pokaż adres email...

Opublikowano: 29-04-2026 | Wygaśnie: 29-04-2027 | Wyświetleń: 1

ID ogłoszenia: 163414 | Numer oferty: 355425

Szczegóły

Ogłoszenia: Firmowe
Rynek: Nie
Pow. użytkowa: 400 m²
Piętro: 8 piętro
Liczba pięter: 11
Rok budowy: 1999
Ogrzewanie: miejskie
Stan wykończenia: bardzo dobry
Forma własności: własność
Nr licencji: 22020
Data aktualizacji: 2026-04-02 22:04:10

Opis

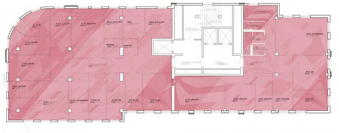
Warszawa - Do wynajęcia: lokal biurowy o pow. 400 m2 na 8 piętrze budynku biurowego na warszawskim Mokotowie, w okolicach ul. Postępu.

poleca Property Office (tel. 731-321-117, mail: katarzyna@propertyoffice.pl)

------------Bez prowizji od Najemcy-------------

Powierzchnia do wydzielenia z większego modułu biurowego.

Powierzchnia do wynajęcia w stanie istniejącym, pozostawionym przez poprzedniego Najemcę.

Możliwość podzielenia lokalu na mniejsze moduły (od 200 m2).

Wynajmujący może wykonać aranżację powierzchni aby odpowiadała ona potrzebom Najemcy, ale na koszt Najemcy.

Istnieje możliwość rozłożenia w czynszu kosztów aranżacji.

Konstrukcja budynku umożliwia dowolną aranżację powierzchni, zarówno w formule open-space jak i w układzie gabinetowym.

Standard biura:

-wysokość 3m

-wykładzina

-uchylne okna

-podział powierzchni ściankami

-podwieszane sufity

Na miesięczne koszty najmu netto składają się:

-czynsz: 4000 EUR,

-opłaty eksploatacyjne: 21 PLN/m2 (8400 PLN),

-media,

Opłaty naliczane są od powierzchni brutto, tzn. z wliczonym współczynnikiem powierzchni wspólnych (6,72%).

Spersonalizowaną ofertę najmu, klient otrzymuje po prezentacji lokalu.

Internet:

Koszt umowy z firmą telekomunikacyjną (internet, telefon) Najemca ponosi osobno.

Parking:

Budynek zapewnia także do dyspozycji swoich najemców 380 naziemnych miejsc parkingowych.

-40 EUR/stanowisko/miesiąc

Umowa:

-czas określony- 3 - 5 lat

-kaucja 3 miesiące,

Opis budynku:

10-kondygnacyjny budynek, oferujący do wynajęcia około 5 400 m2 atrakcyjnej powierzchni biurowej.

Recepcja budynkowa.

Czujniki dymu i ciepła.

Kontrola dostepu.

Stojaki na rowery.

Na terenie kompleksu dostępne są usługi towarzyszące: kwiaciarnia, gastronomia, bank.

Zalety lokalizacji:

Dogodne położenie w okolicach ulic Wołoskiej i Marynarskiej.

Środki komunikacji miejskiej (metro, linie autobusowe i tramwajowe).

Niewielka odległość od stacji metra Wierzbno (7 min) i bliskość Portu Lotniczego im. Fryderyka Chopina.

Zaledwie 1,9 km (5 minut jazdy) od wjazdu na obwodnicę Warszawy.

Do podanych cen należy doliczyć podatek VAT w wysokości 23 %

Zdjęcia pokazują ogólny standard budynku.

Zapraszam na spotkanie w celu obejrzenia lokalu

Zachęcam do kontaktu telefonicznego pod numerem: 731-321-117

Po więcej ofert warszawskich biur, magazynów czy lokali usługowych do wynajęcia, zapraszam na stronę:

https://www.propertyoffice.pl/

Treść niniejszego ogłoszenia nie stanowi oferty handlowej w rozumieniu art.66 1 kodeksu cywilnego oraz innych właściwych przepisów prawnych.

Treść niniejszego ogłoszenia nie stanowi oferty handlowej w rozumieniu art.66 1 kodeksu cywilnego oraz innych właściwych przepisów prawnych.

Oferta wysłana z programu IMO dla biur nieruchomości

Mapa

Formularz kontaktowy

This site is protected by reCAPTCHA and the Google Privacy Policy and Terms of Service apply.

Promuj

Ogłoszenie nie jest promowane

Promowanie ogłoszenia: 0,00 zł / 1 dni


Podobne ogłoszenia




Ta strona używa ciasteczek (cookies), dzięki którym nasz serwis może działać lepiej. Akceptuję
Facebook
Facebook
Sprzedawanko.pl – serwis ogłoszeń Firmowanko.pl – katalog firm i usług Pracowanko.pl – serwis pracy Ugościmy.pl – serwis noclegów Nporta.pl – katalog firm i usług