📢
🔥 Świętujemy 10.000 Opublikowanych Ogłoszeń Nieruchomości 🔔z tej okazji oferujemy 10 Promowań za FREE na WWW.NPORTA.PL 🔥

Ursynów : lokal biurowo-usługowy na wynajem

[Wynajem] Lokale

Ursynów : lokal biurowo-usługowy na wynajem
Ursynów : lokal biurowo-usługowy na wynajem Ursynów : lokal biurowo-usługowy na wynajem

Cena: 22.000 zł

Dodane przez: PropertyOffice
Region: Mazowieckie Warszawa
Adres:Filipiny Płaskowickiej
Agent: Property Office Sp. o.o.
E-mail: katarzyna@propertyoffice.pl

pokaż numer telefonu...

pokaż adres email...

Opublikowano: 29-04-2026 | Wygaśnie: 29-04-2027 | Wyświetleń: 1

ID ogłoszenia: 163911 | Numer oferty: 359992

Szczegóły

Ogłoszenia: Firmowe
Rynek: Nie
Pow. użytkowa: 447 m²
Liczba pięter: 3
Rok budowy: 2002
Ogrzewanie: miejskie
Stan wykończenia: bardzo dobry
Forma własności: własność
Nr licencji: 22020
Data aktualizacji: 2026-03-30 15:16:36

Opis

Warszawa - Do wynajęcia: lokal usługowo-biurowy o pow 447 m2 na warszawskim Ursynowie, w okolicach ul. Płaskowickiej,

poleca Agencja Nieruchomości Property Office (tel. 731-321-117, mail: katarzyna@propertyoffice.pl)

-----------Bez prowizji od Najemcy-----------

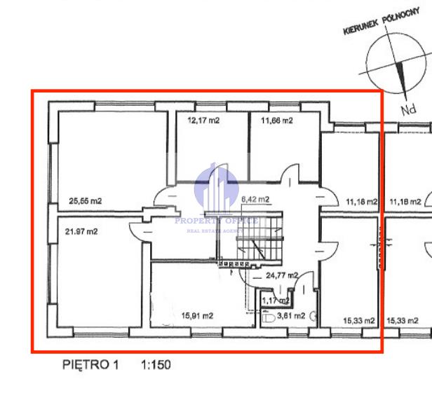
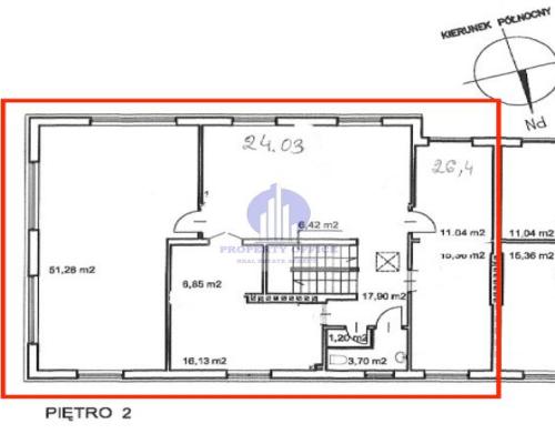
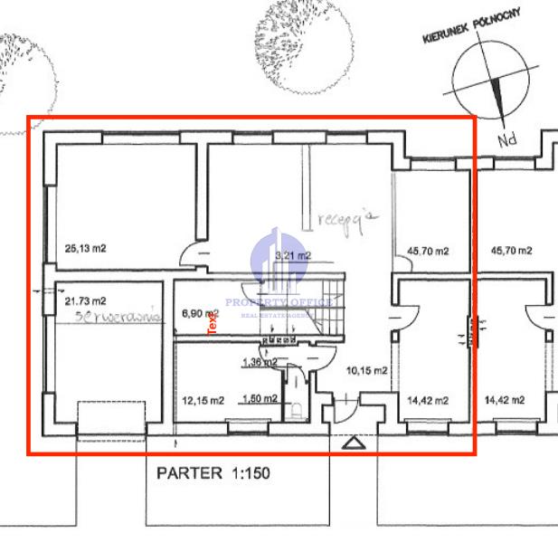
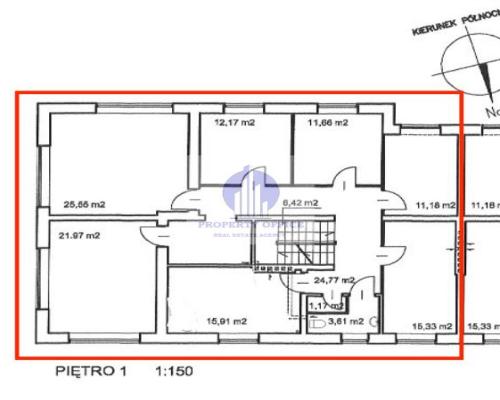
Moduł biurowy w układzie gabinetowym zajmujący połowę (3 kondygnacje) budynku biurowego,

Obecna aranżacja:

-parter: magazyn

-pierwsze i drugie piętro: pokoje biurowe i sale konferencyjne,

Klimatyzacja.

Wysokość: 2,5-28m

Powierzchnia z dobrym dostępem światła dziennego.

Możliwość reklamy zewnetrznej: płatna opcja dodatkowa..

Na miesięczne koszty najmu netto składają się:

-czynsz : 22.000 PLN

-koszty eksploatacyjne: 10 PLN/m2,

Razem netto: 26470 PLN,

-media: woda, gaz, energia elektryczna,

Opłaty naliczane są od powierzchni brutto, tzn. z wliczonym współczynnikiem powierzchni wspólnych.

Spersonalizowaną ofertę finansową, klient otrzymuje po prezentacji lokalu.

Najemca indywidualnie podpisuje umowę z operatorem telekomunikacyjnym.

Parking naziemny: 10 miejsc

Abonament miesiacny: 150 PLN/stanowisko,

Umowa:

-czas określony: 3-5 lat

-kaucja w wysokości 3-miesięcznego czynszu z opłatami eksploatacyjnymi (brutto)

Opis budynku:

Wolnostojący budynek biurowy składający się z dwóch niezależnych części biurowych z pomieszczeniami magazynowymi

Budynek posiada 3 kondygnacje (parter, 1 i 2 piętro).

Na parterze znajduje się powierzchnia magazynowa z bramą rozładunkową.

wysokiej jakości sieć techniczna (internetowa, telefoniczna, komputerowa),

Zalety lokalizacji:

W pobliżu kompleksu zlokalizowane są przystanki autobusowe oraz południowa obwodnica Warszawy S8/S2.

Usytuowanie zapewnia doskonałą komunikację oraz dogodny dojazd do lotniska.

Do podanych cen należy doliczyć podatek VAT w wysokości 23 %

Zdjęcia pokazują ogólny standard budynku.

Zapraszam na spotkanie w celu obejrzenia lokalu

Zachęcam do kontaktu telefonicznego pod numerem: 731-321-117

Po więcej ofert warszawskich biur, magazynów czy lokali usługowych do wynajęcia, zapraszam na stronę:

https://www.propertyoffice.pl/

Treść niniejszego ogłoszenia nie stanowi oferty handlowej w rozumieniu art.66 1 kodeksu cywilnego oraz innych właściwych przepisów prawnych.

Treść niniejszego ogłoszenia nie stanowi oferty handlowej w rozumieniu art.66 1 kodeksu cywilnego oraz innych właściwych przepisów prawnych.

Oferta wysłana z programu IMO dla biur nieruchomości

Mapa

Formularz kontaktowy

This site is protected by reCAPTCHA and the Google Privacy Policy and Terms of Service apply.

Promuj

Ogłoszenie nie jest promowane

Promowanie ogłoszenia: 0,00 zł / 1 dni


Podobne ogłoszenia




Ta strona używa ciasteczek (cookies), dzięki którym nasz serwis może działać lepiej. Akceptuję
Facebook
Facebook
Sprzedawanko.pl – serwis ogłoszeń Firmowanko.pl – katalog firm i usług Pracowanko.pl – serwis pracy Ugościmy.pl – serwis noclegów Nporta.pl – katalog firm i usług