Mieszkanie z Imponującą Wysokością Pomieszczeń!

[Sprzedaż] Mieszkania

Mieszkanie z Imponującą Wysokością Pomieszczeń!
Mieszkanie z Imponującą Wysokością Pomieszczeń! Mieszkanie z Imponującą Wysokością Pomieszczeń! Mieszkanie z Imponującą Wysokością Pomieszczeń! Mieszkanie z Imponującą Wysokością Pomieszczeń! Mieszkanie z Imponującą Wysokością Pomieszczeń! Mieszkanie z Imponującą Wysokością Pomieszczeń!

Cena: 878.000 zł (do negocjacji)

Dodane przez: Awatar sadurscy
Region: Małopolskie Kraków
Adres:Reduta

pokaż adres email...

Opublikowano: 16-10-2025 | Wygaśnie: 15-11-2025

ID ogłoszenia: 26477

Szczegóły

Rynek: Pierwotny
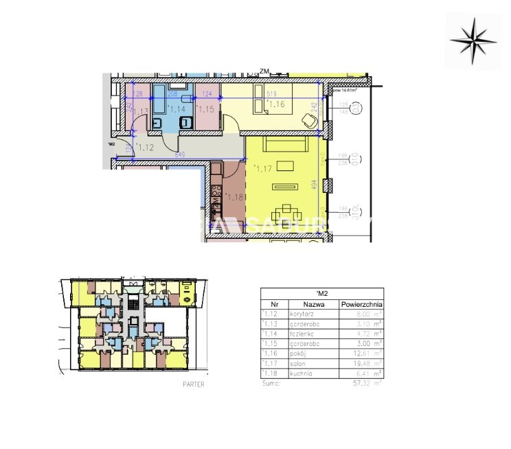
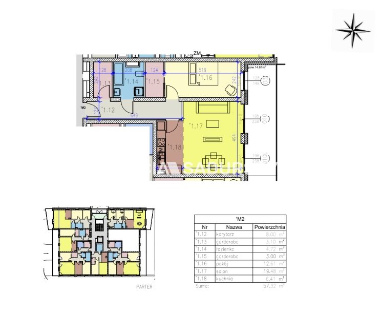
Pow. użytkowa (m2): 57.32
Cena za m2 (zł): 15317.52
Liczba pokoi: 2
Liczba sypialni: 1
Rodzaj budynku: nowe budownictwo
Liczba pięter: 5
Materiał budynku: mieszana
Okna: PCV
Rok budowy: 2023
Ogrzewanie: C.O. miejskie
Stan wykończenia: deweloperski
Forma własności: Własność
Wirtualny spacer: https://my.matterport.com/show/?m=C1ZFf2ayZZ4
Agent: Malwina Filas
E-mail: malwina@sadurscy.pl
Telefon komórkowy: +48 518-706-518
Data aktualizacji: 2025-10-16

Opis


Marzysz, aby mieszkać w cichej i spokojnej okolicy nie rezygnując jednocześnie z uroków miasta?
Jesteś w dobrym miejscu!

Przedstawiamy inwestycję w krakowskiej dzielnicy Prądnik Czerwony, która znajduje się tuż przy 8 hektarowym parku rekreacyjno-spacerowym. W skład wchodzą 2 budynki 6- kondygnacyjne , kolejno po 22 i 37 mieszkań. Funkcjonalne układy mieszkań mieszczące się w przedziałach od 40/41 m2- 137 m2 przypadną do gustu nawet tym najbardziej wymagającym.Inwestycja wykonana z najwyższej jakości materiałów budowlanych z dbałością o każdy szczegół.
Większość mieszkań na parterach będą mieć ogródki , na wyższych piętrach balkony . Podziemna część budynku przeznaczona jest na garaż z miejscami parkingowymi.

Wysokość pomieszczeń na poziomie 3,13 metr a w mieszkaniach zlokalizowanych na parterze dodaje wyjątkowego charakteru, umożliwiając kreatywne aranżacje z nietypowym wyposażeniem.
Dzięki temu można łatwo wydzielić różne strefy funkcjonalne, używając antresoli lub podwieszanych przegród.

Niebywałym atutem jest lokalizacja, która sprzyja osobom zarówno przemieszczającym się samochodem jak i komunikacją miejską. Pobliskie tereny bogate są w punkty usługowo-handlowe oraz rozrywkowe np. Serenada, Park Wodny, Multikino , co z pewnością odpowie potrzebom zarówno młodszych jak i starszych osób. Obecność Parku tuż obok inwestycji daje możliwość obcowania z naturą oraz spędzenia wolnego czasu na świeżym powietrzu. W bliskim sąsiedztwie zabudowy wielorodzinnej znajdują się żłobki, przedszkola oraz szkoła.


Termin zakończenia budowy zaplanowano na II kwartał 2023 r.

Zapraszam do kontaktu:
Malwina Filas
malwina@sadurscy.pl
518-706-518


Zobacz Wirtualny Spacer: https://my.matterport.com/show/?m=C1ZFf2ayZZ4

--------------------------

::GRATIS | Nasza prowizja zawiera: koszt przedwstępnej notarialnej umowy sprzedaży nieruchomości z rynku wtórnego.
::GWARANCJA | Gwarancja zwrotu zadatku. Więcej informacji na sadurscy.pl/zwrot-zadatku/


Oferta wysłana z systemu Galactica Virgo

Film z Youtube

Mapa

Formularz kontaktowy

This site is protected by reCAPTCHA and the Google Privacy Policy and Terms of Service apply.

Promuj

Ogłoszenie nie jest promowane

Promowanie ogłoszenia: 0,00 zł / 1 dni


Podobne ogłoszenia




Ta strona używa ciasteczek (cookies), dzięki którym nasz serwis może działać lepiej. Akceptuję
Facebook
Facebook
Sprzedawanko.pl – serwis ogłoszeń Firmowanko.pl – katalog firm i usług Pracowanko.pl – serwis pracy Ugościmy.pl – serwis noclegów Nporta.pl – katalog firm i usług