Solidny, odporny i wytrzymały dom w Krakowie

[Sprzedaż] Domy

Solidny, odporny i wytrzymały dom w Krakowie
Solidny, odporny i wytrzymały dom w Krakowie Solidny, odporny i wytrzymały dom w Krakowie Solidny, odporny i wytrzymały dom w Krakowie Solidny, odporny i wytrzymały dom w Krakowie Solidny, odporny i wytrzymały dom w Krakowie Solidny, odporny i wytrzymały dom w Krakowie Solidny, odporny i wytrzymały dom w Krakowie Solidny, odporny i wytrzymały dom w Krakowie Solidny, odporny i wytrzymały dom w Krakowie

Cena: 1.650.000 zł

Dodane przez: Awatar sadurscy
Region: Małopolskie Kraków
Adres:Jerzego Kuryłowicza

pokaż numer telefonu...

pokaż adres email...

Opublikowano: 29-10-2025 | Wygaśnie: 04-11-2025

ID ogłoszenia: 28518

Szczegóły

Rynek: Wtórny
Pow. użytkowa (m2): 260
Pow. działki (m2): 2029
Pow. całkowita (m2): 260
Cena za m2 (zł): 6346.15
Liczba pokoi: 6
Liczba sypialni: 5
Liczba pięter: 1
Rodzaj zabudowy: wolnostojący
Okna: PCV
Rok budowy: 1994
Ogrzewanie: C.O. GAZOWE
Forma własności: Własność
Dach: blacha
Szerokość działki (mb): 28
Wirtualny spacer: https://panoramy.galactica.pl/virgo/397524
Agent: Marek Wawrzeń
E-mail: marek3@sadurscy.pl
Nr licencji: 26458
Data aktualizacji: 2025-10-29

Opis


Solidny, odporny i wytrzymały dom w Krakowie - Rajsku


Oferujemy DO SPRZEDAŻY LUB ZAMIANY 6-pokojowy, dwukondygnacyjny dom o powierzchni użytkowej ok. 260 m 2 w stanie niepełnym deweloperskim na działce budowlanej o pow. 20 arów .

Betonowo-murowana konstrukcja budynku, mocno zbrojone stropy, podpiwniczenie wzmocnione zbrojonymi blokami betonowymi powoduje, że budynek jest NIEZWYKLE TRWAŁY I WYTRZYMAŁY co ma niebagatelne znaczenie w dzisiejszych czasach! Patrząc przez ten pryzmat, cena nieruchomości staje się znacznie atrakcyjniejsza!

Dom o unikalnym, indywidualnym projekcie, z urzekającym widokiem na panoramę pogórza i samych Tatr , posadowiony na prostokątnej działce o wymiarach 28x72 m i powierzchni 2029 m 2 (z możliwością podziału), w otoczeniu zieleni, w bardzo spokojnej i cichej, a zarazem bardzo dobrze skomunikowanej dzielnicy Krakowa - Swoszowice Rajsko .

Usytuowanie oraz układ architektoniczny domu sprawia, iż stanowi on istne wrota do „zaczarowanego ogrodu” - mijając dom znajdujemy się przed częścią działki położonej na nasłonecznionym, łagodnym stoku o południowej ekspozycji. Stąd już tylko krok dzieli nas, by po przekroczeniu otoczonej winoroślą pergoli, znaleźć się w magicznym starym sadzie, w którym zupełnie można zapomnieć iż znajdujemy się tuż od centrum wielkiego miasta…

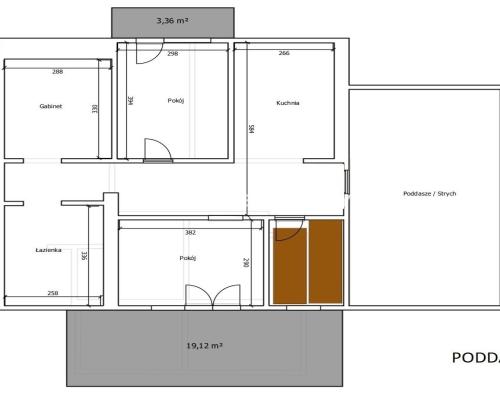
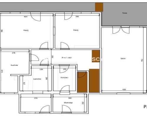
ROZKŁAD POMIESZCZEŃ
Dom został podzielony na funkcjonalne strefy: strefę gospodarczą oraz mieszkalną o następującym układzie:
Strefa gospodarcza - przyziemie:
- garaż z kanałem
- kotłownia
- 3 pomieszczenia gospodarcze
- piwniczka na przetwory lub wino

Strefa mieszkalna:
Parter:
- duży salon z wyjściem na taras
- dwa pokoje - każdy z wyjściem na balkon
- kuchnia
- łazienka
Poddasze:
- pokój z wyjściem na taras
- pokój z wyjściem na balkon
- gabinet
- otwarta kuchnia
- łazienka
- poddasze/strych

OPIS TECHNICZNY, MEDIA, INSTALACJE
Dom wybudowany w 1994 roku, o ddany do użytkowania w roku 2016 .

Dom znajduje się w stanie „niepełnym deweloperskim” , który obejmuje:
- ściany: z dwóch warstw pustaka cementowego (dom nieocieplony),
- kompletny dach z orynnowaniem, ocieplony watą mineralną, kryty blachą falistą (do malowania),
- nową stolarkę okienną (okna dwuszybowe) z parapetami zewnętrznymi,
- drzwi zewnętrzne, bramę garażową,
- instalację elektryczną wraz z uzbrojoną rozdzielnią,
- instalację C.O. z grzejnikami oraz nowym piecem De Dietrich,
- instalację wodno - kanalizacyjną
- media podłączone do domu gaz, kanalizacja, prąd, woda
- betonowy zbiornik na deszczówkę do podlewania

MIEJSCOWY PLAN ZAGOSPODAROWANIA PRZESTRZENNEGO
Działka leży na terenie zabudowy mieszkaniowej jednorodzinnej oznaczonej w miejscowym planie zagospodarowania przestrzennego symbolem 19 MN.
Zasady, parametry i wskaźniki kształtowania zabudowy i zagospodarowania terenu umożliwiają wybudowanie na działce drugiego domu.
- powierzchnia nowo wydzielanych działek budowlanych nie może być mniejsza niż: 800 m²
- wskaźnik powierzchni zabudowy nie może przekroczyć wartości: 0,25
- powierzchnia terenu biologicznie czynna musi stanowić nie mniej niż: 55%
- wysokość projektowanych budynków, mierzona od poziomu terenu przy najniżej położonym wejściu do budynku nie może być większa niż: 10 m
Szczegóły MPZP dostępne pod adresem: https://www.bip.krakow.pl/?dok_id=46459&sub_dok_id=46459

DOJAZD, KOMUNIKACJA I NAJBLIŻSZA OKOLICA
Dom położony bezpośrednio przy drodze asfaltowej. Lokalizacja nieruchomości zapewnia szybką komunikację z centrum Swoszowic - 1600 m , obwodnicą A4 - 2,5 km, Wieliczką - 6 km czy też CH Zakopianka - 5,5 km, a w wolnym czasie daje możliwość nieskrępowanego korzystania z doskonałych terenów spacerowych i rekreacyjnych Wzgórza Rajsko.
W bezpośredniej bliskości znajdują się także podstawowe obiekty użyteczności publicznej tj. sklep spożywczy - 400 m czy szkoła podstawowa i przedszkole „Rajska Szkoła” ( https://www.rajskaszkola.pl / ) - 950 m.

INNE
- na działce znajduje się budynek gospodarczy przeznaczony do wyburzenia
- rozkład pomieszczeń pozwala na aranżację budynku pod kątem inwestycji (przygotowania dwóch niezależnych lokali mieszkalnych)
- istnieje możliwość ZAMIANY (z dopłatą) na dom o pow. 70-100 m 2 w okolicach Niepołomic, Woli Batorskiej lub w gminie Kocmyrzów-Luborzyca.

FORMA WŁASNOŚCI NIERUCHOMOŚCI
Dom posiada uregulowany stan prawny.

TERMIN DOSTĘPNOŚCI
Dom dostępny od zaraz.

CENA
Istnieje możliwość negocjacji ceny (na wykończenie domu)


Biuro pomaga bezpiecznie przeprowadzić transakcję.

Szczegóły oferty:
798 352 683
marek3@sadurscy.pl


Zobacz Wirtualny Spacer: https://panoramy.galactica.pl/virgo/397524

Pośrednik odpowiedzialny zawodowo za wykonanie umowy pośrednictwa: Marek Wawrzeń (licencja nr: 26458)


Oferta wysłana z systemu Galactica Virgo

Film z Youtube

Mapa

Formularz kontaktowy

This site is protected by reCAPTCHA and the Google Privacy Policy and Terms of Service apply.

Promuj

Ogłoszenie nie jest promowane

Promowanie ogłoszenia: 0,00 zł / 1 dni


Podobne ogłoszenia




Ta strona używa ciasteczek (cookies), dzięki którym nasz serwis może działać lepiej. Akceptuję
Facebook
Facebook
Sprzedawanko.pl – serwis ogłoszeń Firmowanko.pl – katalog firm i usług Pracowanko.pl – serwis pracy Ugościmy.pl – serwis noclegów Nporta.pl – katalog firm i usług