Smart Apartament na Prądniku Białym blisko Zieleni

[Sprzedaż] Mieszkania

Smart Apartament na Prądniku Białym blisko Zieleni
Smart Apartament na Prądniku Białym blisko Zieleni Smart Apartament na Prądniku Białym blisko Zieleni Smart Apartament na Prądniku Białym blisko Zieleni Smart Apartament na Prądniku Białym blisko Zieleni

Cena: 621.440 zł

Dodane przez: Awatar sadurscy
Region: Małopolskie Kraków
Adres:Pękowicka

pokaż adres email...

Opublikowano: 13-11-2025 | Wygaśnie: 14-11-2025

ID ogłoszenia: 30765

Szczegóły

Rynek: Pierwotny
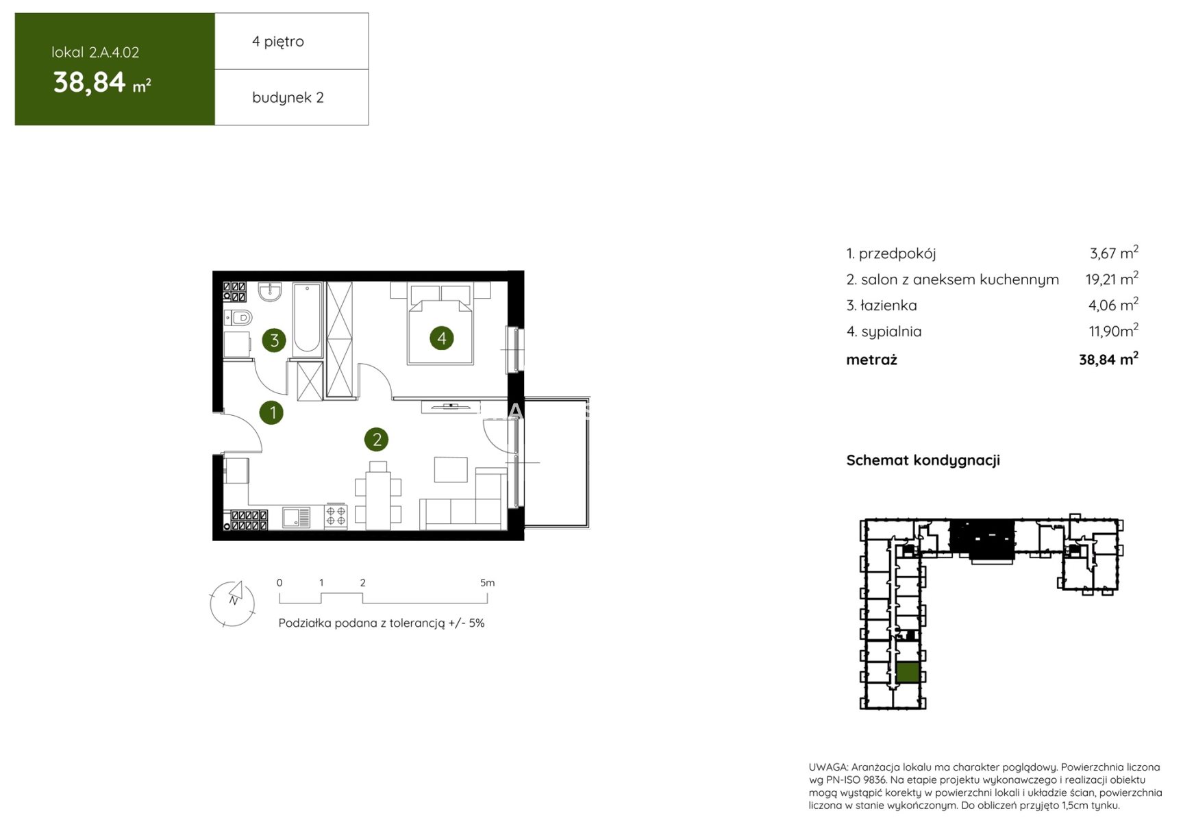
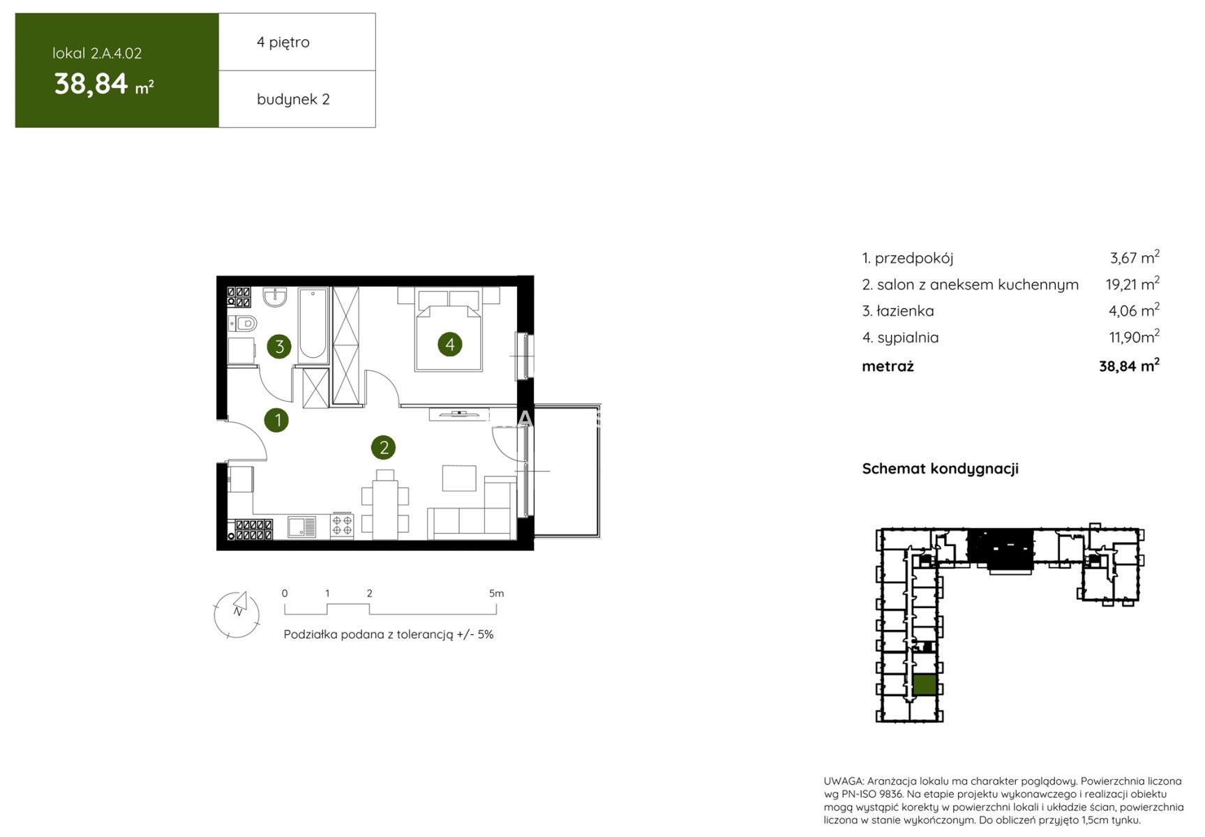
Pow. użytkowa (m2): 38.84
Cena za m2 (zł): 16000
Liczba pokoi: 2
Liczba sypialni: 2
Rodzaj budynku: blok
Piętro: 4
Liczba pięter: 3
Materiał budynku: pustak
Okna: PCV
Rok budowy: 2024
Ogrzewanie: C.O. miejskie
Stan wykończenia: deweloperski
Forma własności: Odrębna własność lokalu
Agent: Patrycja Rubinkiewicz
E-mail: patrycja@sadurscy.pl
Telefon komórkowy: +48 505-236-943
Data aktualizacji: 2025-11-13

Opis


Z ogromną przyjemnością przedstawiamy Państwu ofertę mieszkania na sprzedaż w malowniczym rejonie Doliny Prądnika, na północy Krakowa, blisko granicy z gminą Zielonki. Nowoczesne osiedle otoczone jest rozległymi terenami zielonymi, co umożliwia codzienny kontakt z naturą i zapewnia wytchnienie od intensywnego miejskiego życia w centrum miasta.

Osiedle zostało zaprojektowane z myślą o rodzinach, parach oraz singlach, oferując szeroki wybór mieszkań o powierzchni od 26 do 73 m², w układach 1-, 2-, 3- i 4-pokojowych. Dbałość o komfort mieszkańców przejawia się w wysokiej jakości przestrzeni wspólnych, które sprzyjają nawiązywaniu sąsiedzkich relacji: skwer z ławeczkami, plac zabaw...

Budynki nowej inwestycji mające 3 i 4 kondygnacje, wyróżniają się kameralną architekturą, harmonizującą z okolicą. Przestronność obiektów gwarantuje mieszkańcom poczucie prywatności.

Zalety:


Home Management System to zaawansowana technologia inteligentnego domu, która umożliwia m.in. zarządzanie ogrzewaniem, oświetleniem i zaworami wody.
Pakiet antysmogowy w postaci filtrów montowanych w nawiewnikach okiennych dba o czystość powietrza we wnętrzach mieszkań.
Wysoki standard wykończenia części wspólnych obejmuje trwałe płytki gresowe, dekoracyjne panele imitujące drewno oraz energooszczędne oświetlenie LED.
Mieszkania na parterze posiadają tarasy z ogrodami o powierzchni do 123 m², natomiast mieszkania na wyższych kondygnacjach oferują przestronne balkony.
Termoizolacyjne łączniki balkonowe zapobiegają utracie ciepła, co przekłada się na oszczędności energetyczne.
Portfenetrowe okna zapewniają doskonałe doświetlenie wnętrz.
Na terenie osiedla zostanie zainstalowana stacja ładowania pojazdów elektrycznych, z myślą o mieszkańcach korzystających z ekologicznych środków transportu.
Zielone dachy budynków będą nie tylko estetyczne, ale również poprawią jakość powietrza i obniżą temperaturę otoczenia.


Prądnik biały to doskonale skomunikowana okolica, idealne miejsce dla osób szukających spokoju i bliskości natury, z jednoczesnym dostępem do nowoczesnych rozwiązań technologicznych.

Serdecznie zapraszam do kontaktu


--------------------------

::GRATIS | Nasza prowizja zawiera: koszt przedwstępnej notarialnej umowy sprzedaży nieruchomości z rynku wtórnego.
::GWARANCJA | Gwarancja zwrotu zadatku. Więcej informacji na sadurscy.pl/zwrot-zadatku/


Oferta wysłana z systemu Galactica Virgo

Mapa

Formularz kontaktowy

This site is protected by reCAPTCHA and the Google Privacy Policy and Terms of Service apply.

Promuj

Ogłoszenie nie jest promowane

Promowanie ogłoszenia: 0,00 zł / 1 dni


Podobne ogłoszenia




Ta strona używa ciasteczek (cookies), dzięki którym nasz serwis może działać lepiej. Akceptuję
Facebook
Facebook
Sprzedawanko.pl – serwis ogłoszeń Firmowanko.pl – katalog firm i usług Pracowanko.pl – serwis pracy Ugościmy.pl – serwis noclegów Nporta.pl – katalog firm i usług