Kraków Kazimierz 2 pok 41m idealna inwestycja

[Sprzedaż] Mieszkania

Kraków Kazimierz 2 pok 41m idealna inwestycja
Kraków Kazimierz 2 pok 41m idealna inwestycja Kraków Kazimierz 2 pok 41m idealna inwestycja

Cena: 897.000 zł

Dodane przez: Awatar sadurscy
Region: Małopolskie Kraków
Adres:Augustiańska

pokaż adres email...

Opublikowano: 18-12-2025 | Wygaśnie: 19-12-2025

ID ogłoszenia: 38474

Szczegóły

Rynek: Wtórny
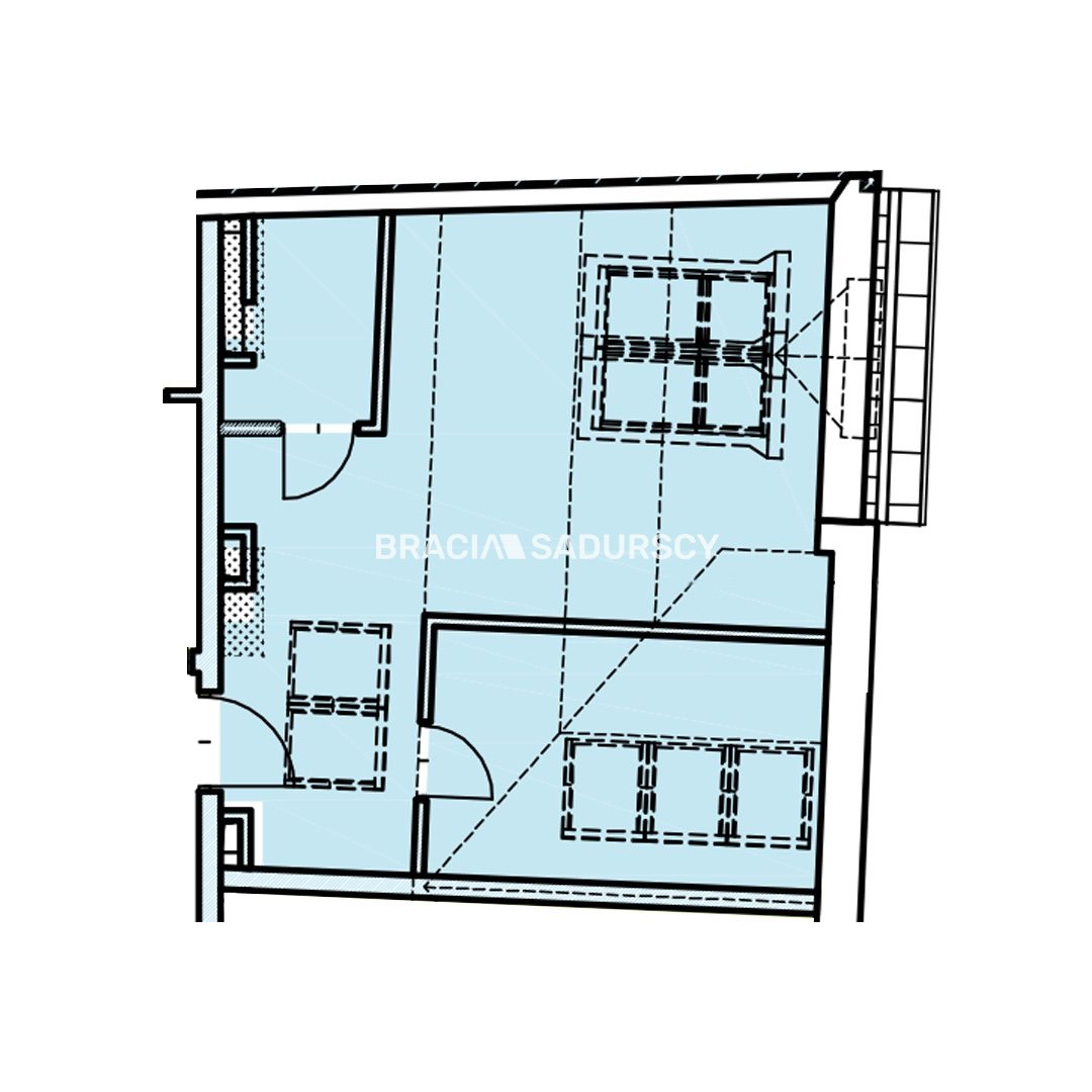
Pow. użytkowa (m2): 37.35
Pow. całkowita (m2): 37.35
Cena za m2 (zł): 24016.06
Liczba pokoi: 2
Liczba sypialni: 1
Rodzaj budynku: kamienica
Piętro: 5
Liczba pięter: 5
Materiał budynku: mieszana
Rok budowy: 1912
Ogrzewanie: C.O. miejskie
Stan wykończenia: do remontu
Forma własności: Własność
Agent: Piotr Dziadzio
E-mail: piotr@sadurscy.pl
Telefon komórkowy: +48 515-234-864
Nr licencji: 13199
Data aktualizacji: 2025-12-18

Opis




KRAKÓW STARE MIASTO/KAZIMIERZ - BLISKO CENTRUM KRAKOWA! OK. 41,7 m2
mieszkanie do generalnego remontu !
Doskonale nadaje dla singla, pary jak się również jako inwestycja pod najem długo lub krótkoterminowy!




Centrum miasta- Kazimierz Krakowski
Do sprzedaży mieszkanie zlokalizowane w stykowej kamienicy z XX wieku.(blisko Placu Nowego).

Kamienica p owstała w latach 1912-1918 zaprojektował ją architekt Jan Zawiejski, który zaprojektował również między innymi słynny Teatr Słowackiego w Krakowie.



Mieszkanie położone na piątym pietrze/ 5 .
Powierzchnia użytkowa mieszkania ok.3 7 , 8 m2 powierzchnia użytkowa . (całkowita 41,35m2 ) po podłodze ok. 54m2

Mieszkanie będzie oddane do remontu we własnym już zakresie:



Kamienica będzie odrestaurowana, przez firmę która od wielu lat zajmuje się odnawianiem i renowacją kamienic.



Z aplanowane są prace remontowe które zostaną finansowane przez Wspólnotę Mieszkaniową w celu podniesienia standardu kamienicy.



Prace planowane to:

- montaż cichobieżnej windy,

-podłączenie kamienicy do sieci MPEC c.o i c.w.u., wod-kan,

-wymiana stolarki okiennej na nową,

-wymiany poszycia dachów,

Ze względu na doskonałą lokalizacje między innymi ok.3 min spacerkiem Krakowski Kazimierz plac Nowy , oraz bulwary Wiślane nieruchomość nadaje się bardzo dobrze również jako inwestycja pod najem krótko lub długo terminowy.




W ofercie są również inne mieszkania na różnych piętrach i

różnych metrażach od 20 -78 m2 które pozwolą na wybór odpowiedniej dla siebie opcji.

zapraszam do kontaktu i do pytania o dostępność również innych lokali!



Cena proponowanego tu mieszkania 897 000 zł


zapraszam na prezentacje!

Kontakt: Piotr Dziadzio
+48 515 234 864






Pośrednik odpowiedzialny zawodowo za wykonanie umowy pośrednictwa: Dariusz Sadurski (licencja nr: 803)


Oferta wysłana z systemu Galactica Virgo

Mapa

Formularz kontaktowy

This site is protected by reCAPTCHA and the Google Privacy Policy and Terms of Service apply.

Promuj

Ogłoszenie nie jest promowane

Promowanie ogłoszenia: 0,00 zł / 1 dni


Podobne ogłoszenia




Ta strona używa ciasteczek (cookies), dzięki którym nasz serwis może działać lepiej. Akceptuję
Facebook
Facebook
Sprzedawanko.pl – serwis ogłoszeń Firmowanko.pl – katalog firm i usług Pracowanko.pl – serwis pracy Ugościmy.pl – serwis noclegów Nporta.pl – katalog firm i usług