Lokal 265 m2, Wrocław, Centrum

[Wynajem] Lokale

Lokal 265 m2, Wrocław, Centrum
Lokal 265 m2, Wrocław, Centrum Lokal 265 m2, Wrocław, Centrum Lokal 265 m2, Wrocław, Centrum Lokal 265 m2, Wrocław, Centrum Lokal 265 m2, Wrocław, Centrum Lokal 265 m2, Wrocław, Centrum Lokal 265 m2, Wrocław, Centrum Lokal 265 m2, Wrocław, Centrum Lokal 265 m2, Wrocław, Centrum

Cena: 13.780 zł

Dodane przez: HomePartner
Region: Dolnośląskie Wrocław
Adres:Tęczowa

pokaż adres email...

Opublikowano: 26-12-2025 | Wygaśnie: 27-12-2025

ID ogłoszenia: 39823

Szczegóły

Rynek: Nie
Pow. użytkowa (m2): 265
Piętro: 3
Liczba pięter: 3
Materiał budynku: silikat
Rok budowy: 2006
Ogrzewanie: miejskie
Stan wykończenia: bardzo dobry
Forma własności: własność
Agent: Monika Łabęska - Cioch
E-mail: biuro@home-partner.com.pl
Telefon komórkowy: 536 496 163
Nr licencji: 23243
Data aktualizacji: 2025-11-29 13:33:54

Opis

<b>Lokal, Centrum, Wrocław, </b>

Oferuję do wynajęcia lokal biurowo-handlowo-usługowy o powierzchni 265 m2 zlokalizowany na trzecim piętrze nowoczesnego budynku przy ul. Tęczowej we Wrocławiu.

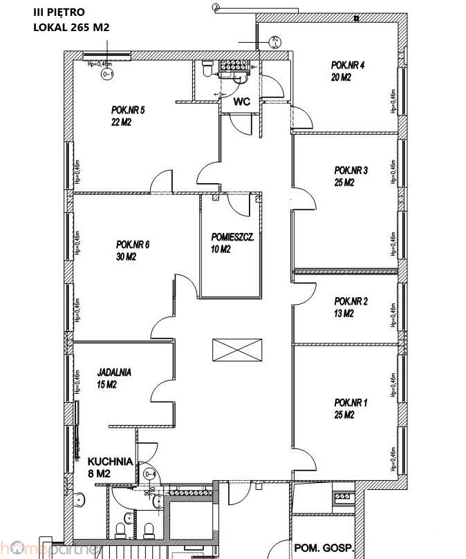
<b>UKŁAD POMIESZCZEŃ</b>

Struktura lokalu o powierzchni 265m2 obejmuje:

- powierzchnię biurową (10m2+13m2+20m2+22m2+25m2 x 2+30m2 )

- kuchnię 8m2

- jadalnię 15 m2 - toalety (5m2+9m2)

- komunikację 83 m2

Istnieje również możliwość wynajęcia pomieszczenia na serwerownię lub magazynek.

<b>STANDARD I WYPOSAŻENIE</b>

Lokal w bardzo dobrym stanie z ogrzewaniem miejskim oraz klimatyzacją. Łącze światłowodowe, monitoring 24h, system alarmowy, portiernia. Jest to jedyny lokal na kondygnacji co jest jego atutem.

<b>CZYNSZ/ OPŁATY</b>

Czynsz najmu: 52zł netto/m2/mc

Opłaty eksploatacyjne: 29,50 zł netto/m2/mc Udział w częściach wspólnych (30,3m2): 30 zł/mc netto/m2/mc

2 miejsca parkingowe płatne po 320 zł netto/miejsce (1 zawarte w czynszu)

Dodatkowo liczniki energii elektrycznej + woda i ścieki wg ilości osób.

Umowa na czas nieokreślony z 6 miesięcznym okresem wypowiedzenia lub na czas określony co najmniej 2 lata i przekształcenie umowy na czas nieokreślony z 3 miesięcznym okresem wypowiedzenia.

<b>DLA KOGO</b>

Lokal gotowy do rozpoczęcia działalności: biuro, usługi, księgowość i wiele innych wedle potrzeb przyszłego Najemcy.

Możliwa prezentacja online.

<b>LOKALIZACJA I KOMUNIKACJA</b>

Wrocław ul. Tęczowa. Dystans pieszy do Wrocławskiego Rynku. W pobliżu pełne zaplecze komunikacyjne (tramwaje i autobusy), handlowo-usługowe i edukacyjne. Na wyciągnięcie ręki przystanki tramwajowe i autobusowe, restauracje, Hala Świebodzki, sklepy, usługi.

<b>ZALETY OFERTY:</b>

-lokal w nowoczesnym budynku

-lokalizacja w centrum miasta

-wysokość 300 cm

-doskonała infrastruktura

Zapraszam do rozmów i obejrzenia mieszkania. Tel. 889 759 863

For more information please call us +48 889 759 863

Treść niniejszego ogłoszenia nie stanowi oferty handlowej w rozumieniu Kodeksu Cywilnego.

Oferta wysłana z programu IMO dla biur nieruchomości

Mapa

Formularz kontaktowy

This site is protected by reCAPTCHA and the Google Privacy Policy and Terms of Service apply.

Promuj

Ogłoszenie nie jest promowane

Promowanie ogłoszenia: 0,00 zł / 1 dni


Podobne ogłoszenia




Ta strona używa ciasteczek (cookies), dzięki którym nasz serwis może działać lepiej. Akceptuję
Facebook
Facebook
Sprzedawanko.pl – serwis ogłoszeń Firmowanko.pl – katalog firm i usług Pracowanko.pl – serwis pracy Ugościmy.pl – serwis noclegów Nporta.pl – katalog firm i usług