📢
🔥 Szczęśliwego Nowego Roku 2026 i udanego Sylwestra 🔔 życzy Zespół NPORTA.PL 🔥

Piętro w kamienicy Rynek w Żywcu

[Sprzedaż] Mieszkania

Piętro w kamienicy Rynek w Żywcu
Piętro w kamienicy Rynek w Żywcu Piętro w kamienicy Rynek w Żywcu Piętro w kamienicy Rynek w Żywcu Piętro w kamienicy Rynek w Żywcu Piętro w kamienicy Rynek w Żywcu Piętro w kamienicy Rynek w Żywcu Piętro w kamienicy Rynek w Żywcu Piętro w kamienicy Rynek w Żywcu Piętro w kamienicy Rynek w Żywcu

Cena: 1.500.000 zł

Dodane przez: Awatar sadurscy
Region: Śląskie Żywiec
Adres:Rynek

pokaż adres email...

Opublikowano: 31-12-2025 | Wygaśnie: 01-01-2026

ID ogłoszenia: 40562

Szczegóły

Rynek: Wtórny
Pow. użytkowa (m2): 112
Pow. całkowita (m2): 112
Cena za m2 (zł): 13392.86
Liczba pokoi: 3
Liczba sypialni: 3
Rodzaj budynku: kamienica
Piętro: 1
Liczba pięter: 2
Materiał budynku: cegła ceramiczna
Okna: DREWNIANE NOWY TYP
Rok budowy: 1900
Ogrzewanie: centralne
Stan wykończenia: po generalnym remoncie
Forma własności: Własność
Agent: Rafał Duda
E-mail: rafal@sadurscy.pl
Telefon komórkowy: +48 507-894-500
Nr licencji: 18351
Data aktualizacji: 2025-12-31

Opis


*zdjęcia należą do właściciela oferty

NA SPRZEDAŻ 1 PIĘTRO W KAMIENICY W RYNKU W ŻYWCU PO GENERALNYM REMONCIE W 2023 ROKU

LOKALIZACJA I OTOCZENIE NIERUCHOMOŚCI
Przedmiotowy budynek usytuowany jest w samym centrum miasta, przy płycie Rynku, pośród zwartej zabudowy mieszkalnej wielorodzinnej i usługowej.
Rynek w Żywcu charakteryzuje się zwartą zabudową kamienic, które powstały po wielkim pożarze w 1857 roku.
W pobliżu oprócz zabudowy mieszkalnej wielorodzinnej znajdują się punkty gastronomiczne, hotele, aparthotele, kluby, usługi, muzea, kościoły.
Nieruchomość znajduje się w odległości ok. 1 km od wjazdu na drogę wojewódzką nr 946, łączącą się z drogą ekspresową S1.
Najbliższe przystanki komunikacji miejskiej znajdują się w odległości ok. 300 m od nieruchomości. Dostęp do nieruchomości bezpośrednio z drogi.
Dojazd odbywa się drogą asfaltową. Położenie przedmiotowej nieruchomości jest bardzo dobre.
Budynek narożny z końca XIX wieku (1888 rok). Technologia tradycyjna- murowana.
Na przedmiotowych działkach posadowiona jest kamienica o funkcji mieszkalno - usługowej .Budynek zajmuje cały obszar działek.
Przedmiotowa nieruchomość położona jest w Żywcu pod adresem Rynek 7 .
Żywiec Śródmieście to centralna dzielnica miasta Żywca, położona w Kotlinie Żywieckiej, nad rzekami Sołą i Koszarawą oraz Jeziorem Żywieckim. W Śródmieściu znajduje się Rynek, będący historycznym centrum miasta, oraz większość zabytków i ważnych instytucji publicznych.

Nieruchomość posiada bardzo dobry dostęp do sieci uzbrojenia terenu.
Do działki doprowadzony jest wodociąg, kanalizacja, energia elektryczna, ciepłociąg oraz sieć telekomunikacyjna.
− Budynek objęty ochroną konserwatorską, wpisany do Rejestru Zabytków

Na sprzedaż pierwsze piętro gdzie mieści się lokal mieszkalny o powierzchni całkowitej 130,3 m2



Dostęp do lokalu na poziomie parteru zapewniają dwa niezależne wejścia - jedno prowadzące bezpośrednio do
restauracji, drugie do części mieszkalnej. Klatka schodowa prowadząca do tej części wykończona została w
naturalnym kamieniu i uzupełniona kutą, stalową balustradą.




Poziom 1 Lokal mieszkalny nr M1:
Samodzielny lokal mieszkalny nr M1 o powierzchni użytkowej 112 m², położony jest na drugiej kondygnacji (pierwszym
piętrze) stylowego, zadbanego budynku przy ul. Rynek 7, w sercu zabytkowej części miasta. Lokal zajmuje niemal całą
powierzchnię piętra, co gwarantuje mieszkańcom wysoki poziom prywatności, komfort akustyczny oraz wyjątkowe
poczucie przestrzeni. Dzięki dogodnemu układowi i przemyślanej aranżacji wnętrza, nieruchomość spełnia zarówno
funkcje mieszkalne, jak i reprezentacyjne. Na przestrzeń mieszkania składa się obszerny, jasny salon z aneksem
kuchennym - stanowiący centrum życia domowego, idealny zarówno do codziennego wypoczynku, jak i spotkań
towarzyskich. Duże, drewniane okna zapewniają dostęp naturalnego światła, a starannie zaprojektowane oświetlenie
sztuczne - w tym żyrandole z polerowanego szkła - dopełniają wrażenia przytulnej i eleganckiej atmosfery.
Aneks kuchenny został wyposażony w wysokiej klasy zabudowę meblową wykonaną na zamówienie, z blatami
kamiennymi w modnym odcieniu złamanej bieli. Wyposażenie obejmuje m.in.: piekarnik Bosch, płytę indukcyjną Bosch,
zmywarkę Bosch, lodówkę Siemens oraz zlew kamienny. Kuchnia posiada funkcjonalną wyspę również wykończoną
kamieniem. Jadalnia została zaaranżowana ze stołem z kamiennym blatem, wygodnymi krzesłami oraz komodą, tworząc
elegancką przestrzeń do spożywania posiłków. W lokalu znajdują się dwie przestronne sypialnie, każda z własną,
niezależną łazienką wykończoną płytami kamiennymi, z natryskami wydzielonymi szklanymi ściankami. Sypialnie są w
pełni umeblowane - wyposażone w łóżka, szafki nocne z lampkami do czytania oraz zabudowy meblowe na wymiar z
wbudowanymi telewizorami.
Stan techniczny nieruchomości jest bardzo dobry - zarówno elementy wykończeniowe, jak i instalacje, są utrzymywane
w bardzo dobrej kondycji dzięki systematycznej, przemyślanej gospodarce remontowej.
Lokal stanowi kompletnie urządzoną, gotową do zamieszkania przestrzeń o podwyższonym standardzie, idealną zarówno
do celów mieszkaniowych, jak i reprezentacyjnych. Standard wykończenia i wyposażenia uznaje się za wysoki i
spełniający oczekiwania najbardziej wymagających klientów.

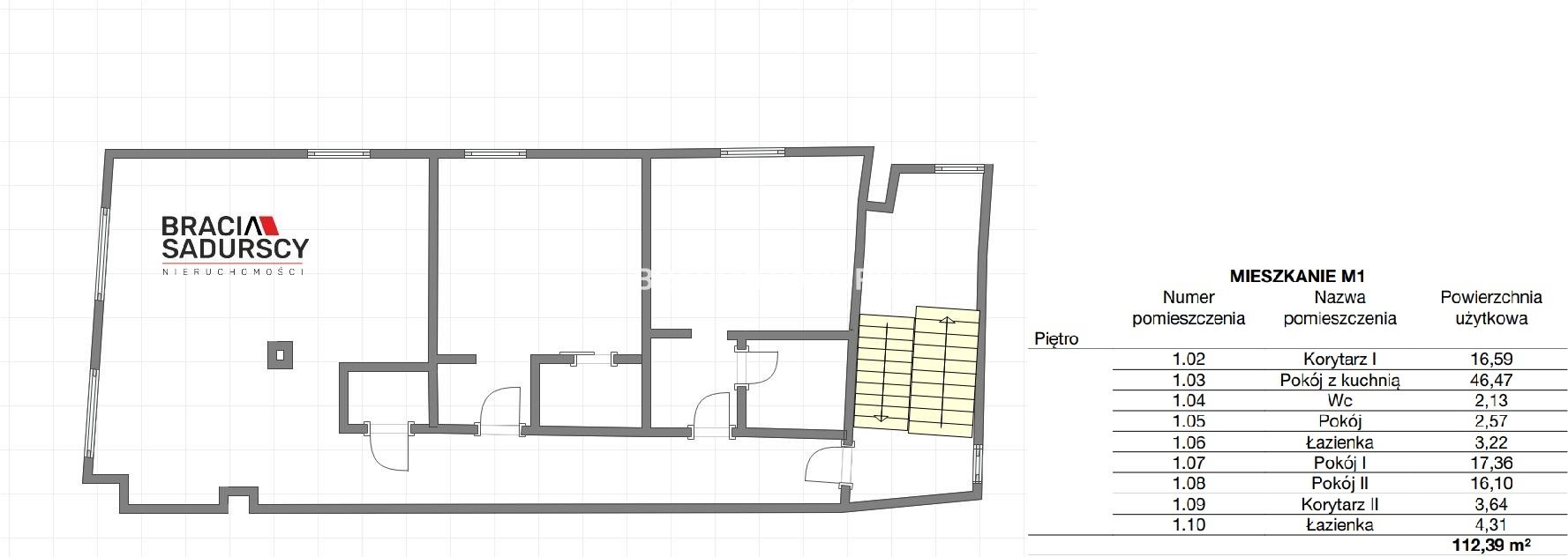
Kondygnacja składa się z :

Pokój z aneksem kuchennym o powierzchni użytkowej 45, 6 m2
Łazienka 3,3 m2
WC 2,2 m2
Pokój 20,2 m2
Łazienka 4,3 m2
Pokój 20 m2
Korytarz 16,4 m2
SUMA 112 m2

Dodatkowo klatka schodowa 18,3 m2
RAZEM 130,3 m2



Lokal znajduje się w bardzo dobrym stanie technicznym, nie wykazuje oznak zużycia.

Cena lokalu nieruchomości 1,5 mln zł netto

Istnieje możliwość zakupu całej kamienicy w cenie 4,8 mln zł netto .
Możliwość zakupu całości kamienicy bez VAT-u ze stawkę zerową


Umowa na wyłączność
Prezentacja nieruchomości po podpisaniu umowy Pośrednictwa .

Kontakt :
Rafał Duda tel. 507 894 500
Bracia Sadurscy Nieruchomości







TECHNOLOGIA BUDOWY

Fundamenty betonowe:
Ściany zewnętrzne fundamentów i piwnic murowane z kamienia ciosanego zalanego betonem
częściowo z cegły. Ściany zewnętrzne murowane z cegły, otynkowane. Klatka schodowa wykończona kamieniem naturalnym w odcieniu ciemnego beżu z użyleniem z jasnego beżu, całość utrzymana przyjemnej ciepłej harmonijnej estetyce. Cokoły klatki z opasek malowanych w kolorze ściany.
Klatka schodowa jasna doświetlona światłem naturalnym poprzez okna połaciowe oraz
okno w ścianie zewnętrznej. Na klatce poza oświetleniem górnym, założone jest oświetlenie dedykowane
schodowe podświetlające bezpośrednio stopnie. Pomiędzy podziemiem a parterem schody o konstrukcji
stalowej pokryte drewnem. Balustrady metalowe z drewnianą poręczą. Sklepienia z cegły. Ogrzewanie w
budynku z sieci miejskiej- eko-term, rozprowadzone do pętli grzewczych w warstwach podłogi.

Klatka schodowa:
− podłoga: płytki ceramiczne
− ściany: tynk, gładzie, powłoki malarskie, elementy ozdobne
Drzwi zewnętrzne :
− drewniane, odrestaurowane
Drzwi wewnętrzne
− Do pomieszczeń mieszkalnych- drewniane, nowe
− Na korytarzach- szklane, szkło mleczne
Stolarka okienna
− drewniana, odrestaurowana

Budynek poddany został remontowi kapitalnemu w 2023r. którego zakres obejmował:
− podbicie fundamentów, wraz z wykonaniem izolacji, przeciwwilgociowej i zabezpieczeniem przed
przenikaniem zarówno wilgoci jak i zimna z zewnątrz,
− dodanie kondygnacji podziemnej,
− wymianę posadzek i warstw posadzkowych, stropów,
− wymianę ocieplenia i pokrycia dachu ,
− dobudowę klatki schodowej,
− budowę nowych pionów wentylacyjnych,
− ocieplenie budynku z zachowaniem wymagań technicznych,
− wymianę całkowitą stolarki okiennej na nową o wysokim standardzie- drewniana z zestawami
dwuszybowymi,
− wymianę drzwi,
− całkowitą wymianę instalacji sanitarnych i elektrycznych,
− zamontowanie instalacji wentylacji, wraz z wentylacją okapu kuchennego,
− wprowadzenia technologii kuchni związanej z restauracją, z zachowaniem ciągów technologicznych,
dostawy, obróbki i magazynowania żywności,
− zamontowanie klimatyzacji na wszystkich poziomach,
− urządzenie winnicy z funkcją utrzymania stałej temperatury,
− realizację wykończenia wnętrz poszczególnych lokali,

Pośrednik odpowiedzialny zawodowo za wykonanie umowy pośrednictwa: Dariusz Sadurski (licencja nr: 803)

--------------------------

::GRATIS | Nasza prowizja zawiera: koszt przedwstępnej notarialnej umowy sprzedaży nieruchomości z rynku wtórnego.
::GWARANCJA | Gwarancja zwrotu zadatku. Więcej informacji na sadurscy.pl/zwrot-zadatku/


Oferta wysłana z systemu Galactica Virgo

Mapa

Formularz kontaktowy

This site is protected by reCAPTCHA and the Google Privacy Policy and Terms of Service apply.

Promuj

Ogłoszenie nie jest promowane

Promowanie ogłoszenia: 0,00 zł / 1 dni


Podobne ogłoszenia




Ta strona używa ciasteczek (cookies), dzięki którym nasz serwis może działać lepiej. Akceptuję
Facebook
Facebook
Sprzedawanko.pl – serwis ogłoszeń Firmowanko.pl – katalog firm i usług Pracowanko.pl – serwis pracy Ugościmy.pl – serwis noclegów Nporta.pl – katalog firm i usług