📢
🔥 FERIE ZIMOWE 2026 🔔 z Portalem WWW.NPORTA.PL 🔥

mieszkanie ul. Myśliwska stan deweloperski

[Sprzedaż] Mieszkania

mieszkanie ul. Myśliwska stan deweloperski
mieszkanie ul. Myśliwska stan deweloperski mieszkanie ul. Myśliwska stan deweloperski mieszkanie ul. Myśliwska stan deweloperski mieszkanie ul. Myśliwska stan deweloperski mieszkanie ul. Myśliwska stan deweloperski mieszkanie ul. Myśliwska stan deweloperski mieszkanie ul. Myśliwska stan deweloperski mieszkanie ul. Myśliwska stan deweloperski

Cena: 859.000 zł

Dodane przez: Awatar sadurscy
Region: Małopolskie Kraków
Adres:Myśliwska

pokaż adres email...

Opublikowano: 04-02-2026 | Wygaśnie: 05-02-2026

ID ogłoszenia: 48571

Szczegóły

Rynek: Wtórny
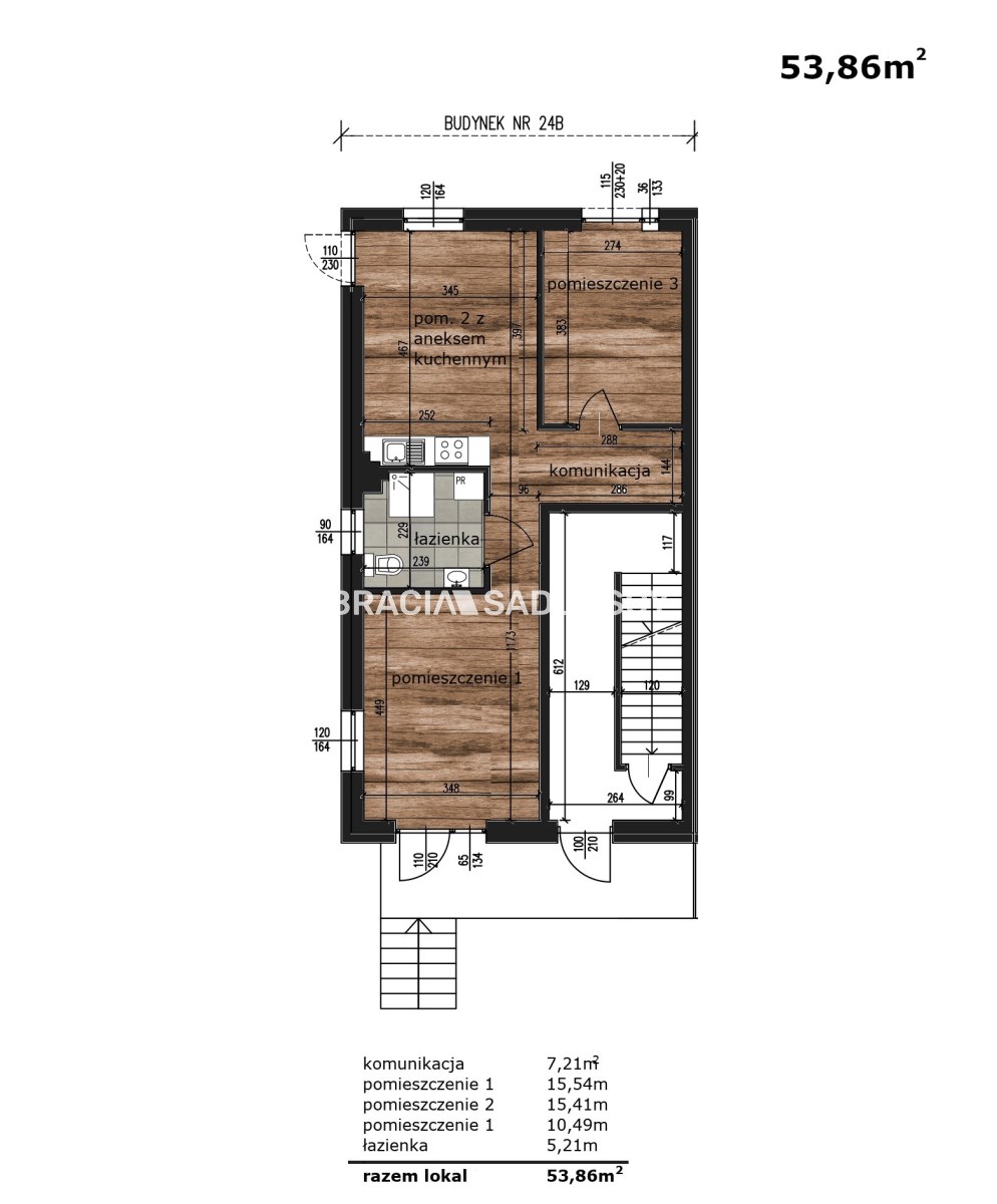
Pow. użytkowa (m2): 53.86
Cena za m2 (zł): 15948.76
Liczba pokoi: 3
Liczba sypialni: 2
Rodzaj budynku: nowe budownictwo
Liczba pięter: 2
Materiał budynku: porotherm
Okna: PCV
Rok budowy: 2024
Ogrzewanie: gazowe
Stan wykończenia: deweloperski
Forma własności: Własność
Agent: Jakub Obcowski
E-mail: kuba@sadurscy.pl
Telefon komórkowy: +48 510-087-993
Nr licencji: 22911
Data aktualizacji: 2026-02-04

Opis


Na sprzedaż: Przestronne mieszkanie - idealne dla rodziny lub inwestora!

Oferujemy funkcjonalne, 3-pokojowe mieszkanie o powierzchni 53,86 m² , położone na wysokim parterze w 2-piętrowym budynku z 2024r. Nieruchomość w stanie deweloperskim.

Powierzchnia nieruchomości: 53,86 m² - powierzchnia użytkowa mieszkania



Lokalizacja: Mieszkanie znajduje się w Podgórzu, Małym Płaszowie , w pobliżu niskiej zabudowy. Doskonała komunikacja:
5 minut pieszo do zajezdni tramwajowej Mały Płaszów
17 minut tramwajem do Rynku Głównego
10 minut autem do centrum
Blisko Krakowska Akademia

W pobliżu znajdują się m.in. Park Myśliwski i Park Rzeczny Ogród Płaszów - to jeden z największych parków w Podgórzu. Idealne miejsca do rekreacji dla całej rodziny. Również w okolicy znajduje się zalew Bagry.

najbliższy przystanek tramwajowy znajduje się zaledwie 5 min od budynku,
Najbliższa szkoła i przedszkole znajdują się zaledwie 5 min od budynku,
w pobliżu znajdują się m.in. Lidl, Biedronka oraz Żabka,
poza parkami i zalewem, w okolicy znajduje się też Klub Sportowy Płaszowianka, korty do squasha oraz tor gokartowy.
Dostępne również inne mieszkania w tym budynku

W okolicy pełna infrastruktura:
żłobki, przedszkola, szkoła podstawowa
Sklepy, restauracje, poczta, paczkomaty
Dwa parki i place zabaw, w tym popularny Smoczy Skwer
W pobliżu Zalew Bagry - idealne miejsce na rekreację



Dodatkowe informacje:
Mieszkanie sprzedawane w stanie deweloperskim wyposażone w nowoczesny piec dwufunkcyjny na gaz oraz system ogrzewana.
Budynek jest odsunięty od głównych ulic - cicho i spokojnie!
Ogrzewanie Gazowe w całym mieszkaniu podgrzewanie podłogowe.
Mieszkanie gotowe do zamieszkania od zaraz
Bezpłatny parking dla mieszkańców pod budynkiem, dodatkowo istnieje możliwość zakupu miejsca parkingowe w garażu podziemnym
w budynku znajdują się również mieszkania dwupoziomowe

Cena: 820 000 zł mieszkanie


Kontakt:
Kuba Obcowski
+48 510 087 993

Prezentacja nieruchomości jest bezpłatna i odbywa się w obecności pośrednika. Warunkiem jej przeprowadzenia oraz podania lokalizacji jest podpisanie umowy pośrednictwa, zgodnie z przepisami i oczekiwaniami właściciela nieruchomości.

Pośrednik odpowiedzialny zawodowo za wykonanie umowy pośrednictwa: Dariusz Sadurski (licencja nr: 803)


Oferta wysłana z systemu Galactica Virgo

Film z Youtube

Mapa

Formularz kontaktowy

This site is protected by reCAPTCHA and the Google Privacy Policy and Terms of Service apply.

Promuj

Ogłoszenie nie jest promowane

Promowanie ogłoszenia: 0,00 zł / 1 dni


Podobne ogłoszenia




Ta strona używa ciasteczek (cookies), dzięki którym nasz serwis może działać lepiej. Akceptuję
Facebook
Facebook
Sprzedawanko.pl – serwis ogłoszeń Firmowanko.pl – katalog firm i usług Pracowanko.pl – serwis pracy Ugościmy.pl – serwis noclegów Nporta.pl – katalog firm i usług