📢
🔥 FERIE ZIMOWE 2026 🔔 z Portalem WWW.NPORTA.PL 🔥

Nowa Pradolina

[Sprzedaż] Mieszkania

Nowa Pradolina
Nowa Pradolina Nowa Pradolina Nowa Pradolina Nowa Pradolina Nowa Pradolina Nowa Pradolina Nowa Pradolina Nowa Pradolina Nowa Pradolina

Cena: 474.815 zł

Dodane przez: Awatar sadurscy
Region: Małopolskie Tarnów
Adres:Skrzyszowska

pokaż adres email...

Opublikowano: 04-02-2026 | Wygaśnie: 05-02-2026

ID ogłoszenia: 48575

Szczegóły

Rynek: Pierwotny
Pow. użytkowa (m2): 48.95
Pow. całkowita (m2): 48.95
Cena za m2 (zł): 9700
Liczba pokoi: 3
Liczba sypialni: 2
Rodzaj budynku: apartamentowiec
Piętro: 2
Liczba pięter: 2
Materiał budynku: silikat
Okna: PCV 3 szyby, ciepły montaż
Rok budowy: 2025
Ogrzewanie: piec dwufunkcyjny
Stan wykończenia: deweloperski
Forma własności: Odrębna własność lokalu
Agent: Marek Wawrzeń
E-mail: marek3@sadurscy.pl
Telefon komórkowy: +48 798-352-683
Nr licencji: 26458
Data aktualizacji: 2026-02-04

Opis



Komfort i prywatność dla singla - 3 pokoje z tarasem I mieszkanie o pow. 48,95 m² | Tarnów, ul. Skrzyszowska, Osiedle „Nowa Pradolina”

Przedsprzedaż ruszyła!

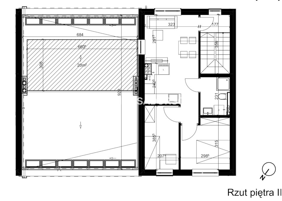
Na sprzedaż nowe, 3-pokojowe mieszkanie o powierzchni 48,95 m² , położone na 2 piętrze w dwupiętrowej części budynku w inwestycji „Nowa Pradolina” w Tarnowie. Do mieszkania przynależy duży taras o powierzchni 42,46 m² - idealny do relaksu, spotkań oraz rekreacji na świeżym powietrzu.
Rozkład pomieszczeń:


Salon z aneksem kuchennym: 17,25 m²
Sypialnia 1: 8,68 m²
Sypialnia 2: 7,85 m²
Łazienka: 4,04 m²
Komunikacja
Taras: 42,46 m²


Najważniejsze atuty:


Miejsce postojowe w cenie
Ogrzewanie podłogowe z piecem gazowym dwufunkcyjnym
Trzyszybowe okna zapewniające doskonałą izolację
Możliwość montażu instalacji fotowoltaicznej
Budynki w technologii tradycyjnej, ściany z bloczków silikatowych, ocieplone wełną mineralną lub styropianem
Możliwość wykończenia mieszkania „pod klucz” zgodnie z prezentowanym standardem
Nowoczesne, ogrodzone i monitorowane osiedle z oświetleniem i strefą rekreacyjną nad strumieniem
Zachowany starodrzew, nowe nasadzenia, ogrody deszczowe wzdłuż chodników


Lokalizacja i okolica:


Zielona, spokojna okolica w sąsiedztwie terenów rekreacyjnych
Szybki dojazd do centrum Tarnowa oraz autostrady A4
Centrum usług na terenie osiedla - większość spraw załatwisz bez wychodzenia poza osiedle
Dla rodzin i dzieci: plac zabaw, ścieżki spacerowe i rowerowe w środku lasku
Szybki dojazd do centrum Tarnowa (8 min), dworca PKP (12 min) i Krakowa (60 min)


Dodatkowe informacje:


Planowany termin zakończenia I etapu inwestycji: III kwartał 2026 r.
Pomoc doradcy kredytowego na miejscu


Zapraszamy do kontaktu i na prezentację!

Nie przegap okazji - skorzystaj z oferty przedsprzedażowej i wybierz wymarzone mieszkanie na zielonym, nowoczesnym osiedlu w Tarnowie.

Szczegóły oferty:
798 352 683
marek3@sadurscy.pl





Pośrednik odpowiedzialny zawodowo za wykonanie umowy pośrednictwa: Marek Wawrzeń (licencja nr: 26458)


Oferta wysłana z systemu Galactica Virgo

Mapa

Formularz kontaktowy

This site is protected by reCAPTCHA and the Google Privacy Policy and Terms of Service apply.

Promuj

Ogłoszenie nie jest promowane

Promowanie ogłoszenia: 0,00 zł / 1 dni


Podobne ogłoszenia




Ta strona używa ciasteczek (cookies), dzięki którym nasz serwis może działać lepiej. Akceptuję
Facebook
Facebook
Sprzedawanko.pl – serwis ogłoszeń Firmowanko.pl – katalog firm i usług Pracowanko.pl – serwis pracy Ugościmy.pl – serwis noclegów Nporta.pl – katalog firm i usług