📢
🔥 Świętujemy 10.000 Opublikowanych Ogłoszeń Nieruchomości 🔔z tej okazji oferujemy 10 Promowań za FREE na WWW.NPORTA.PL 🔥

WITAJ W MAGICZNYM ŚWIECIE DOMÓW BABY JAGI

[Sprzedaż] Domy

WITAJ W MAGICZNYM ŚWIECIE DOMÓW BABY JAGI
WITAJ W MAGICZNYM ŚWIECIE DOMÓW BABY JAGI WITAJ W MAGICZNYM ŚWIECIE DOMÓW BABY JAGI WITAJ W MAGICZNYM ŚWIECIE DOMÓW BABY JAGI WITAJ W MAGICZNYM ŚWIECIE DOMÓW BABY JAGI WITAJ W MAGICZNYM ŚWIECIE DOMÓW BABY JAGI WITAJ W MAGICZNYM ŚWIECIE DOMÓW BABY JAGI WITAJ W MAGICZNYM ŚWIECIE DOMÓW BABY JAGI

Cena: 699.000 zł

Dodane przez: braciasadurscy
Region: Małopolskie Kraków
Adres:Śląska
Agent: Marek Popiela
E-mail: marek@sadurscy.pl
Telefon komórkowy: +48 518-967-677

pokaż adres email...

Opublikowano: 11-03-2026 | Wygaśnie: 11-03-2027 | Wyświetleń: 32

ID ogłoszenia: 90807 | Numer oferty: BS2-DS-302877-33

Szczegóły

Rynek: Pierwotny
Pow. użytkowa: 109.4 m²
Pow. całkowita: 109.4 m²
Cena za m2: 6389.4 zł/m²
Liczba pokoi: 4 pokoje
Liczba sypialni: 1
Liczba pięter: 1
Rodzaj zabudowy: inny
Okna: PCV
Rok budowy: 2024
Ogrzewanie: kominkowe
Forma własności: Własność
Dach: dachówka
Data aktualizacji: 2026-02-19

Opis



WITAJ W MAGICZNYM ŚWIECIE DOMÓW BABY JAGI
DOMY BUDOWANE NA WŁASNEJ DZIAŁCE KLIENTA KUPUJĄCEGO

Pomysł stworzenia Domu Baby Jagi powstał w pracowni Pole Architekci.

Idea projektowa od samego początku skupiała się na prostocie formy,
funkcjonalności ale także na zrównoważonych ekonomicznie rozwiązaniach.
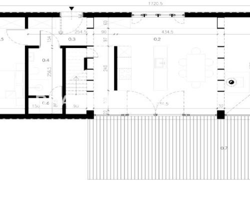
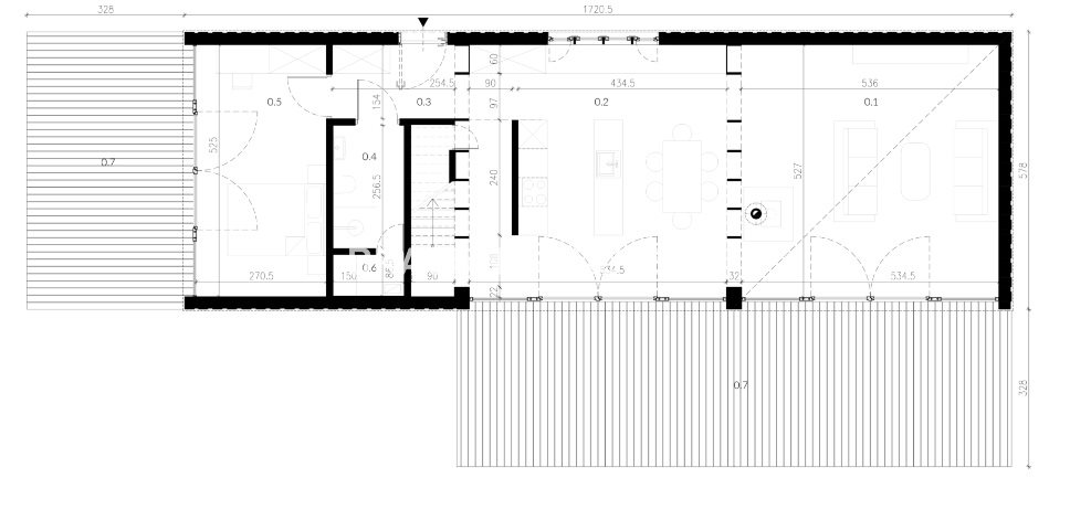
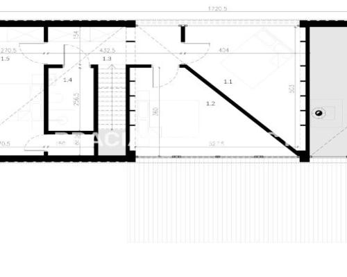
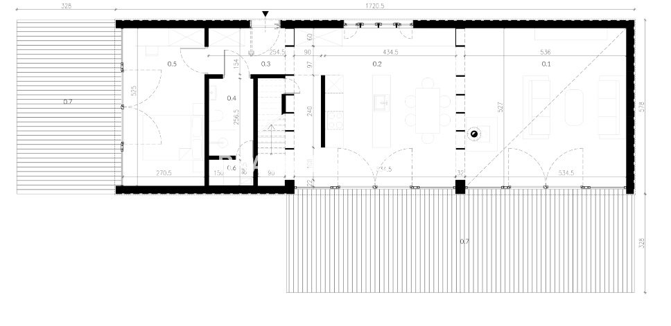
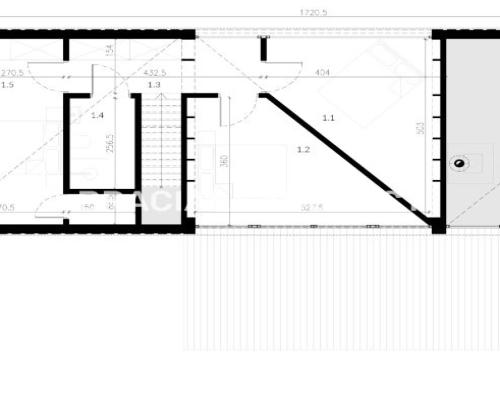
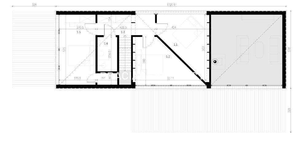
Budynek ma 109,4 m2 podstawy i 5 m wysokości.

Posadowiony jest na 9-ciu betonowych kolumnach fundamentowych. W środku to 35 m2 powierzchni użytkowej w której pod jednym dachem udało się zaprojektować; salon, kuchnie jadalnie, łazienkę i sypialnie na antresoli z widokiem. Cały dom został wykonany w technologii drewnianej z wewnętrznym ociepleniem, co sprawia, że dom można użytkować przez cały rok.

Deski, którymi wykończone są elewację i dach, nawiązują do tradycyjnego budownictwa naturalnego. Nowoczesnego charakteru nadaje mu nietypowa forma dachu, którego kalenica została poprowadzona po przekątnej domu. Szklana fasada w całości otwiera się na taras i otaczającą naturę. Dodatkowo podczas nieobecności właściciela, szklana ściana chroniona jest wrotami na całą wysokość budynku. Wrota mogą zmieniać stopień otwarcia w zależności od potrzeb użytkownika. Budynek w zależności od lokalnego prawa i upodobań, zakłada również zmianę zewnętrznego poszycia pod względem materiałowym i kolorystycznym.

Idealne dla Rodzin i Miłośników Natury

Domy Baby Jagi są idealnym miejscem dla rodzin z dziećmi, osób pracujących zdalnie, a także dla wszystkich, którzy pragną uciec od miejskiego zgiełku i cieszyć się spokojem natury. Bliskość szlaków turystycznych, tras rowerowych i jezior sprawia, że to doskonała lokalizacja dla aktywnego wypoczynku.

Zapraszamy do zapoznania się z ofertą innych domów tego typu.

Kontakt

Zapraszamy do kontaktu w celu uzyskania dodatkowych informacji oraz umówienia się na wizytę:

Telefon: 518-967-677
Email: MAREK@SADURSCY.PL





--------------------------

::GRATIS | Nasza prowizja zawiera: koszt przedwstępnej notarialnej umowy sprzedaży nieruchomości z rynku wtórnego.
::GWARANCJA | Gwarancja zwrotu zadatku. Więcej informacji na sadurscy.pl/zwrot-zadatku/


Oferta wysłana z systemu Galactica Virgo

Mapa

Formularz kontaktowy

This site is protected by reCAPTCHA and the Google Privacy Policy and Terms of Service apply.

Promuj

Ogłoszenie nie jest promowane

Promowanie ogłoszenia: 0,00 zł / 1 dni


Podobne ogłoszenia




Ta strona używa ciasteczek (cookies), dzięki którym nasz serwis może działać lepiej. Akceptuję
Facebook
Facebook
Sprzedawanko.pl – serwis ogłoszeń Firmowanko.pl – katalog firm i usług Pracowanko.pl – serwis pracy Ugościmy.pl – serwis noclegów Nporta.pl – katalog firm i usług