📢
🔥 WIOSNA 2026 W NPORTA.PL 🔔 NA START WSZYSTKO ZA FREE PRZEZ 3 MIESIĄCE (90 DNI) 🔥

Biuro 48m2, parking / gotowe do wprowadzenia

[Wynajem] Lokale

Biuro 48m2, parking / gotowe do wprowadzenia
Biuro 48m2, parking / gotowe do wprowadzenia Biuro 48m2, parking / gotowe do wprowadzenia Biuro 48m2, parking / gotowe do wprowadzenia Biuro 48m2, parking / gotowe do wprowadzenia Biuro 48m2, parking / gotowe do wprowadzenia Biuro 48m2, parking / gotowe do wprowadzenia Biuro 48m2, parking / gotowe do wprowadzenia

Cena: 1.920 zł

Dodane przez: Awatar Crystal_Home
Region: Dolnośląskie Świdnica
Agent: Roksana Kraśniewska
E-mail: roksana@crystal-home.pl
Telefon komórkowy: +48 574048486

pokaż adres email...

Opublikowano: 15-03-2026 | Wygaśnie: 15-03-2027 | Wyświetleń: 3

ID ogłoszenia: 91788 | Numer oferty: 1417

Szczegóły

Rynek: Nie
Pow. użytkowa (m2): 48
Piętro: 2
Liczba pięter: 2
Materiał budynku: cegła
Rok budowy: 1945
Ogrzewanie: elektryczne
Stan wykończenia: bardzo dobry
Forma własności: własność
Data aktualizacji: 2026-02-18 10:56:17

Opis

Serdecznie zapraszam Państwa do zapoznania się z ofertą lokalu do wynajęcia w sąsiedztwie parku, niedaleko Centrum Świdnicy.

Idealnie nadaje się na biuro, kancelarie, gabinet psychologiczny, dietetyczny etc.

Nieruchomość znajduje się na 2 piętrze.

Przed budynkiem znajduje się parking.

Dodatkowe opłaty wynoszą:

-240 zł miesięcznie (koszty eksploatacyjne) w tym woda, kanalizacja, śmieci

- opłata za prąd tj. ok 150 zł poza sezonem grzewczym, w sezonie grzewczym koszt ok 350 zł

- jednorazowa kaucja 3800 zł

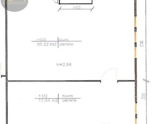
Biuro składa się z dwóch osobnych pomieszczeń: 30,22 m2 oraz 17,64m2

W lokalu podłączony Internet - światłowód , co na pewno ułatwi pracę.

Lokal w pełni wyposażony w meble biurowe.

Pomieszczenia świeżo po remoncie ocieplone i odmalowane.

W lokalu zostały wymienione oświetlenia, które mają możliwość sterowania przez internet.

Ogrzewanie : nowoczesne grzejniki na podczerwień.

Sterowanie odbywa się przez aplikację , gdzie można podawać godziny włączenia i wyłączenia ogrzewania wraz z pożądaną temperaturą lub uzależnić włączenie / wyłączenie od temperatury np. w lokalu lub na zewnątrz.

Bardzo dużo możliwości ustawień - w zależności od dnia tygodnia czy innych parametrów.

Lokal jest bardzo komfortowy i spełnia wszystkie wymogi prowadzenia działalności.

Biuro znajduje się w bardzo dogodnej lokalizacji, blisko Centrum Świdnicy , w sąsiedztwie parku i dworca PKP.

Jeżeli masz jakieś pytania lub od razu chcesz umówić prezentacje to zapraszam do kontaktu.

Przed prezentacją nieruchomości konieczne jest uzyskanie w Naszym biurze statusu klienta poszukującego co odbywa się poprzez podpisanie niezobowiązującego do niczego (w przypadku nie podejmowania decyzji o zakupie czy najmie zaprezentowanej nieruchomości ) umowy pośrednictwa na nabycie czy najem nieruchomości.

Każda transakcja dokonywana za naszym pośrednictwem objęta jest ochroną ubezpieczeniową w PZU S.A. zgodnie z wymogami ustawy o gospodarce nieruchomościami.

Zapraszam na bezpłatną prezentację. CRYSTAL HOME NIERUCHOMOŚCI Świdnica, ul. Licznikowa 5 lok. 8

Roksana Kraśniewska

+48 574 048 486

Informacje dotyczące opisu nieruchomości podane są przez właścicieli, mają charakter wyłącznie informacyjny i mogą podlegać aktualizacji. Oferta dotycząca nieruchomości stanowi zaproszenie do rokowań zgodnie z art. 71 Kodeksu Cywilnego i nie stanowi oferty określonej w art. 66 i art. 69 i następnych KC.

Oferta wysłana z programu IMO dla biur nieruchomości

Mapa

Formularz kontaktowy

This site is protected by reCAPTCHA and the Google Privacy Policy and Terms of Service apply.

Promuj

Ogłoszenie nie jest promowane

Promowanie ogłoszenia: 0,00 zł / 1 dni


Podobne ogłoszenia




Ta strona używa ciasteczek (cookies), dzięki którym nasz serwis może działać lepiej. Akceptuję
Facebook
Facebook
Sprzedawanko.pl – serwis ogłoszeń Firmowanko.pl – katalog firm i usług Pracowanko.pl – serwis pracy Ugościmy.pl – serwis noclegów Nporta.pl – katalog firm i usług