📢
🔥 Już jest WIOSNA 2026 w NPORTA.PL 🔔 NA START WSZYSTKO ZA FREE 🔥

Włochy: podnajem lokalu biurowego

[Wynajem] Lokale

Włochy: podnajem lokalu biurowego
Włochy: podnajem lokalu biurowego Włochy: podnajem lokalu biurowego Włochy: podnajem lokalu biurowego Włochy: podnajem lokalu biurowego

Cena: 4.026 zł

Dodane przez: PropertyOffice
Region: Mazowieckie Warszawa
Adres:al. Jerozolimskie
Agent: Property Office Sp. o.o.
E-mail: katarzyna@propertyoffice.pl

pokaż numer telefonu...

pokaż adres email...

Opublikowano: 30-03-2026 | Wygaśnie: 30-03-2027 | Wyświetleń: 1

ID ogłoszenia: 95862 | Numer oferty: 354188

Szczegóły

Ogłoszenia: Firmowe
Rynek: Nie
Pow. użytkowa: 366 m²
Piętro: 1 piętro
Liczba pięter: 2
Rok budowy: 2013
Ogrzewanie: miejskie
Stan wykończenia: bardzo dobry
Forma własności: własność
Nr licencji: 22020
Data aktualizacji: 2026-03-20 23:36:29

Opis

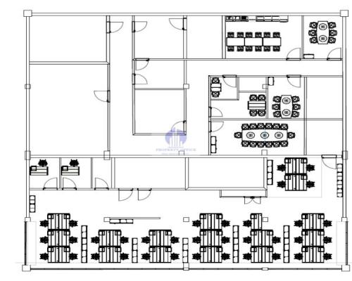
Warszawa - Do podnajmu: lokal biurowy o pow.366 m2 na 1 piętrz biurowca na warszawskich Włochach, w okolicach AL. Jerozolimskich.

poleca agencja nieruchomości Property Office (tel. 731-321-117, mail: katarzyna@propertyoffice.pl)

------------Bez prowizji od Najemcy-------------

Umeblowany lokal biurowy: 5 salek konferencyjnych, 2 gabinety biurowe, open space.

Możliwa zmiana aranżacji zgodnie z potrzebami Najemcy.

Lokal z optymalnym dostępem naturalnego światła.

Klimatyzacja z kontrolą temperatury.

Uchylne okna.

Podwieszane sufity

Podnoszone podłogi.

Wykładzina na podłodze.

Na miesięczne koszty najmu netto składają się:

-czynsz: 4026 EUR,

-koszty eksploatacyjne: 14,60 PLN/m2,

-zużycie mediów,

Opłaty naliczane są od powierzchni brutto, czyli z wliczonym współczynnikiem powierzchni wspólnych (4,20%).

Spersonalizowaną ofertę najmu, klient otrzymuje po prezentacji lokalu.

Internet:

-opcjonalnie,

-Najemca indywidualnie podpisuje umowę z operatorem telekomunikacyjnym.

Parking:

Liczba stanowisk do ustalenia.

Abonament: od 40 EUR/ stanowisko/ miesiąc,

Współczynnik miejsc parkingowych: 1/81 m2,

Miejsca parkingowe dla rowerów.

Ładowarki elektryczne.

Umowa:

-czas określony: minimum 5 lat,

-kaucja 3 miesiące,

Opis kompleksu:

Nowoczesny kompleks biurowy liczący 6 kondygnacji, składający się z dwóch oddzielnych budynków.

Budynek posiada ochronę, recepcję, kontrolę dostępu oraz system zarządzania budynkiem.

Wewnetrzne patio.

Lokalizacja:

Położenie zapewnia sprawny dojazd do innych części miasta, zarówno transportem publicznym jak i prywatnym.

W pobliżu liczne przystanki autobusowe oraz stacja WKD Warszawa Raków.

Lokal gastronomiczne w sąsiedztwie obiektu.

Do podanych cen należy doliczyć podatek VAT w wysokości 23 %

Zdjęcia pokazują ogólny standard budynku.

Zapraszam na spotkanie w celu obejrzenia lokalu

Zachęcam do kontaktu telefonicznego pod numerem: 731-321-117

Po więcej ofert warszawskich biur, magazynów czy lokali usługowych do wynajęcia, zapraszam na stronę:

https://www.propertyoffice.pl/

Treść niniejszego ogłoszenia nie stanowi oferty handlowej w rozumieniu art.66 1 kodeksu cywilnego oraz innych właściwych przepisów prawnych.

Treść niniejszego ogłoszenia nie stanowi oferty handlowej w rozumieniu art.66 1 kodeksu cywilnego oraz innych właściwych przepisów prawnych.

Oferta wysłana z programu IMO dla biur nieruchomości

Mapa

Formularz kontaktowy

This site is protected by reCAPTCHA and the Google Privacy Policy and Terms of Service apply.

Promuj

Ogłoszenie nie jest promowane

Promowanie ogłoszenia: 0,00 zł / 1 dni


Podobne ogłoszenia




Ta strona używa ciasteczek (cookies), dzięki którym nasz serwis może działać lepiej. Akceptuję
Facebook
Facebook
Sprzedawanko.pl – serwis ogłoszeń Firmowanko.pl – katalog firm i usług Pracowanko.pl – serwis pracy Ugościmy.pl – serwis noclegów Nporta.pl – katalog firm i usług