📢
🔥 Już jest WIOSNA 2026 w NPORTA.PL 🔔 NA START WSZYSTKO ZA FREE 🔥

Śródmieście :lokal biurowy na podnajem

[Wynajem] Lokale

Śródmieście :lokal biurowy na podnajem
Śródmieście :lokal biurowy na podnajem Śródmieście :lokal biurowy na podnajem Śródmieście :lokal biurowy na podnajem Śródmieście :lokal biurowy na podnajem Śródmieście :lokal biurowy na podnajem

Cena: 45.325 zł

Dodane przez: PropertyOffice
Region: Mazowieckie Warszawa
Adres:Sowińskiego
Agent: Property Office Sp. o.o.
E-mail: katarzyna@propertyoffice.pl

pokaż numer telefonu...

pokaż adres email...

Opublikowano: 30-03-2026 | Wygaśnie: 30-03-2027 | Wyświetleń: 1

ID ogłoszenia: 95961 | Numer oferty: 354992

Szczegóły

Ogłoszenia: Firmowe
Rynek: Nie
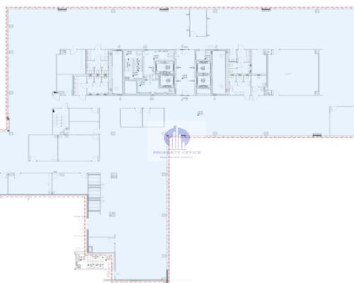
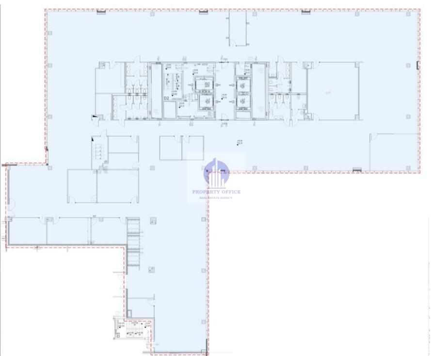
Pow. użytkowa: 2064 m²
Piętro: 3 piętro
Liczba pięter: 9
Rok budowy: 2016
Ogrzewanie: miejskie
Stan wykończenia: bardzo dobry
Forma własności: własność
Nr licencji: 22020
Data aktualizacji: 2026-03-20 23:27:34

Opis

Warszawa - Do podnajmu: lokal biurowy o powierzchni 2064 m2 Śródmieściu, na3 piętrze w nowoczesnym biurowcu w okolicach Dworca Gdańskiego, na warszawskim Śródmieściu,

poleca Agencja Nieruchomości Property Office (tel. 731-321-117, mail: katarzyna@propertyoffice.pl)

------------Bez prowizji od Najemcy-------------

Lokal biurowy (open space) znajdujący się w eleganckim biurowcu w warszawskim Śródmieściu, w okolicach ul. Sowińskiego.

Biuro do rearanżacji zgodnie z potrzebami nowego Najemcy bądź do odświeżenia lub do wprowadzenia od zaraz.

Powierzchnia z własną kuchnią oraz toaletami.

Lokal z optymalnym dostępem naturalnego światła.

Obecnie biuro jest umeblowane, ale wynajem mebli nie jest wliczony w cenę podnajmu.

Standard powierzchni biurowej:

-Podłoga podniesiona,

-Wykładzina dywanowa w płytkach,

-Podział ściankami gipsowo-kartonowymi

-Podwieszany sufit,

-Klimatyzacja i wentylacja,

-W pełni wykończone kuchenki (bez mebli i wyposażenia)

-W pełni wykończone toalety,

-Otwierane okna,

-Rolety przeciwsłoneczne

Na miesięczne koszty najmu netto składają się:

-czynsz: 45325,44 EUR,

-koszty eksploatacyjne: 25,10 PLN/m2,

-zużycie mediów,

Opłaty naliczane są od powierzchni brutto, czyli z wliczonym współczynnikiem powierzchni wspólnych (do ustalenia).

Wynajmujący przewiduje wakacje czynszowe i budżet na aranżację.

Spersonalizowaną ofertę finansową, klient otrzymuje po prezentacji lokalu.

Internet:

-Najemca indywidualnie podpisuje umowę operatorem telekomunikacyjnym.

Parking:

-miejsca postojowe na parkingu podziemnym,

-160 EUR/stanowisko/miesiąc,

20 miejsc parkingowych,

Parking naziemny dla gości.

Prysznice dla rowerzystów.

Stojaki na rowery.

Umowa:

-czas określony: do 12.02.2028r.

-minimalny okres podnajmu: 1 rok,

-kaucja 3 miesiące,

Biurowiec w nowoczesnym kompleksie biurowy, składającym się z 4 budynków biurowych o łącznej powierzchni najmu ok. 97 900 m2.

Standard budynku:

-recepcja na parterze,

-ochrona i monitoring,

-kontrola dostępu,

-czujniki dymu i tryskacze,

-kontrola dostępu,

-pene okablowanie,

-system zarządzania budynkiem -BMS,

-CCTV,

Doskonała lokalizacja pod względem komunikacyjnym:tramwaje, autobusy, metro Dworzec Gdański, PKP, SKM.

W sąsiedztwie znajduje się wiele punktów handlowych, usługowych i gastronomicznych oraz obiekty sportowe i medyczne.

Przedszkole, centrum medyczne na terenie kompleksu.

Ścieżki rowerowe w okolicy.

Do podanych cen należy doliczyć podatek VAT w wysokości 23 %

Zdjęcia pokazują ogólny standard budynku.

Zapraszam na spotkanie w celu obejrzenia lokalu

Zachęcam do kontaktu telefonicznego pod numerem: 731-321-117

Po więcej ofert warszawskich biur, magazynów czy lokali usługowych do wynajęcia, zapraszam na stronę:

https://www.propertyoffice.pl/

Treść niniejszego ogłoszenia nie stanowi oferty handlowej w rozumieniu art.66 1 kodeksu cywilnego oraz innych właściwych przepisów prawnych.

Treść niniejszego ogłoszenia nie stanowi oferty handlowej w rozumieniu art.66 1 kodeksu cywilnego oraz innych właściwych przepisów prawnych.

Oferta wysłana z programu IMO dla biur nieruchomości

Mapa

Formularz kontaktowy

This site is protected by reCAPTCHA and the Google Privacy Policy and Terms of Service apply.

Promuj

Ogłoszenie nie jest promowane

Promowanie ogłoszenia: 0,00 zł / 1 dni


Podobne ogłoszenia




Ta strona używa ciasteczek (cookies), dzięki którym nasz serwis może działać lepiej. Akceptuję
Facebook
Facebook
Sprzedawanko.pl – serwis ogłoszeń Firmowanko.pl – katalog firm i usług Pracowanko.pl – serwis pracy Ugościmy.pl – serwis noclegów Nporta.pl – katalog firm i usług