📢
🔥 Już jest WIOSNA 2026 w NPORTA.PL 🔔 NA START WSZYSTKO ZA FREE 🔥

Wola: biuro 1448 m2

[Wynajem] Lokale

Wola: biuro 1448 m2
Wola: biuro 1448 m2 Wola: biuro 1448 m2 Wola: biuro 1448 m2 Wola: biuro 1448 m2 Wola: biuro 1448 m2 Wola: biuro 1448 m2

Cena: 79.640 zł

Dodane przez: PropertyOffice
Region: Mazowieckie Warszawa
Adres:Obozowa
Agent: Property Office Sp. o.o.
E-mail: katarzyna@propertyoffice.pl

pokaż numer telefonu...

pokaż adres email...

Opublikowano: 30-03-2026 | Wygaśnie: 30-03-2027 | Wyświetleń: 1

ID ogłoszenia: 96043 | Numer oferty: 355270

Szczegóły

Ogłoszenia: Firmowe
Rynek: Nie
Pow. użytkowa: 1448 m²
Liczba pięter: 4
Rok budowy: 2006
Ogrzewanie: miejskie
Stan wykończenia: bardzo dobry
Forma własności: własność
Nr licencji: 22020
Data aktualizacji: 2026-03-26 18:45:40

Opis

Warszawa - Do wynajęcia: budynek biurowy o pow. 1448 m2 na warszawskiej Woli, w okolicach ul. Obozowej,

poleca Property Office (tel. 731-321-117, mail: katarzyna@propertyoffice.pl)

----------------Bez prowizji od Najemcy------------

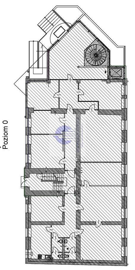
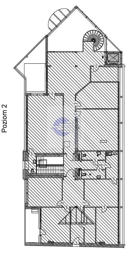
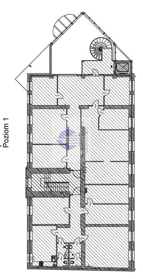
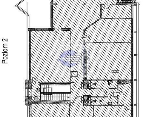
Budynek oferuje Najemcy 3 poziomy powierzchni biurowej:

-parter: 404m2

-1 piętro:363 m2

-2 piętro: 337 m2

oraz poziom -1 o pow. 344m2

Jasne, obszerne wnętrza umożliwiają elastyczną aranżację, dostosowaną pod indywidualne potrzeby najemcy.

Powierzchnia w układzie gabinetowym, z optymalnym dostępem naturalnego światła.

Powierzchnia oferowana jest bez mebli.

Obecnie jest to podział gabinetowy.

Standard powierzchni biurowej:

-klimatyzacja energooszczędna

-podwieszane sufity 30 i 50 cm

-regulacja temperatury-regulacja wilgotności powietrza

-podział powierzchni ściankami (karton-gips)

-wykładzina w modułach

-optymalny dostęp naturalnego światła

Na miesięczne koszty najmu netto składają się:

-czynsz: 79641 PLN

-opłaty eksploatacyjne: 25 PLN/m2 (36200 PLN),

-ogrzewanie,

-zużycie mediów,

-sprzątanie lokalu,

Spersonalizowaną ofertę finansową, klient otrzymuje po prezentacji lokalu.

Internet:

-opcjonalnie,

-Najemca indywidualnie podpisuje umowę z operatorem telekomunikacyjnym.

Możliwość podpisania umowy z 3 operatorami.

Parking (cena netto za miejsce/za miesiąc):

-Parking naziemny: 325,00 zł netto

-Parking podziemny: 575,00 zł netto

-200 naziemnych miejsc parkingowych,

-50 miejsc w garażu podziemnym.

Współczynnik miejsc parkingowych: 1/30.

Miejsca dla gości.

Obiekt oferuje najemcom wypożyczalnię skuterów, dzięki którym w łatwy i szybki sposób można dostać się do pozostałych części miasta.

Umowa:

-czas trwania umowy: do ustalenia.

-kaucja,

Opis budynku:

Klimatyzowany, przeszklony, biurowiec oferujący około 1200 m2 powierzchni biurowej do wynajęcia.

Budynek idealnie nadaje się na siedzibę dla małej czy średniej firmy.

Standard budynku:

-recepcja na parterze,

-Klimatyzacja,

-pełne okablowanie,

-Tryskacze i czujniki dymu,

-Recepcja,

-Ochrona budynku,

-Kable światłowodowe

-dwa źródła zasilania,

-system zarządzania budynkiem-BMS,

Zalety lokalizacji:

-Bliskość nowo otwartej stacji Młynów,

-Przystanek tramwajowy blisko głównego wejścia do kompleksu,

-Dojazd samochodem do centrum miasta możliwy w 10 minut,

-Bliskość kolei: SKM, KM ,

Do podanych cen należy doliczyć podatek VAT w wysokości 23 %

Zdjęcia pokazują ogólny standard budynku.

Zapraszam na spotkanie w celu obejrzenia lokalu

Zachęcam do kontaktu telefonicznego pod numerem: 731-321-117

Po więcej ofert warszawskich biur, magazynów czy lokali usługowych do wynajęcia, zapraszam na stronę:

https://www.propertyoffice.pl/

Treść niniejszego ogłoszenia nie stanowi oferty handlowej w rozumieniu art.66 1 kodeksu cywilnego oraz innych właściwych przepisów prawnych.

Treść niniejszego ogłoszenia nie stanowi oferty handlowej w rozumieniu art.66 1 kodeksu cywilnego oraz innych właściwych przepisów prawnych.

Oferta wysłana z programu IMO dla biur nieruchomości

Mapa

Formularz kontaktowy

This site is protected by reCAPTCHA and the Google Privacy Policy and Terms of Service apply.

Promuj

Ogłoszenie nie jest promowane

Promowanie ogłoszenia: 0,00 zł / 1 dni


Podobne ogłoszenia




Ta strona używa ciasteczek (cookies), dzięki którym nasz serwis może działać lepiej. Akceptuję
Facebook
Facebook
Sprzedawanko.pl – serwis ogłoszeń Firmowanko.pl – katalog firm i usług Pracowanko.pl – serwis pracy Ugościmy.pl – serwis noclegów Nporta.pl – katalog firm i usług