📢
🔥 Już jest WIOSNA 2026 w NPORTA.PL 🔔 NA START WSZYSTKO ZA FREE 🔥

Ursynów : lokal biurowy do podnajmu

[Wynajem] Lokale

Ursynów : lokal biurowy do podnajmu
Ursynów : lokal biurowy do podnajmu Ursynów : lokal biurowy do podnajmu Ursynów : lokal biurowy do podnajmu

Cena: 4.970 zł

Dodane przez: PropertyOffice
Region: Mazowieckie Warszawa
Adres:Kłobucka
Agent: Property Office Sp. o.o.
E-mail: katarzyna@propertyoffice.pl

pokaż numer telefonu...

pokaż adres email...

Opublikowano: 30-03-2026 | Wygaśnie: 30-03-2027 | Wyświetleń: 1

ID ogłoszenia: 96109 | Numer oferty: 355365

Szczegóły

Ogłoszenia: Firmowe
Rynek: Nie
Pow. użytkowa: 710 m²
Piętro: 1 piętro
Liczba pięter: 4
Rok budowy: 2010
Ogrzewanie: miejskie
Stan wykończenia: bardzo dobry
Forma własności: własność
Nr licencji: 22020
Data aktualizacji: 2026-03-16 13:57:20

Opis

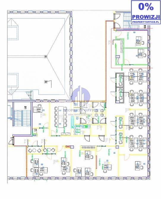
Warszawa - Do podnajmu: lokal biurowy o pow.710 m2 na 1 piętrze w biurowcu na warszawskim Ursynowie w okolicach ul. Kłobuckiej,

poleca Agencja Nieruchomości Property Office (tel. 731-321-117, mail: katarzyna@propertyoffice.pl)

--------------Bez prowizji od Najemcy--------------

Umowa do 29.02.2028 r.

Minimalny okres najmu: 2 lata

Powierzchnia z optymalnym dostępem światła dziennego.

Powierzchnia gotowa do wejścia, w układzie gabinetowym.

Standard powierzchni biurowej:

-uchylne okna

-klimatyzacja

-wysokość pomieszczeń: 3 m

-sufity podwieszane

-podnoszone podłogi

-wykładzina,

Najemca ma możliwość skorzystania również z lokali magazynowych, jeżeli są dostępne.

Na miesięczne koszty najmu netto składają się:

-czynsz: 4970 EUR,

-koszty eksploatacyjne: 23 PLN /m2 (16330 PLN),

-zużycie mediów,

Opłaty naliczane są od powierzchni brutto, tzn. z wliczonym współczynnikiem powierzchni wspólnych.

Spersonalizowaną ofertę finansową, klient otrzymuje po prezentacji lokalu.

Internet:

-opcjonalnie,

-Najemca indywidualnie podpisuje umowę z operatorem telekomunikacyjnym.

Parking:

-miejsce podziemne: 75 EUR/stanowisko,

-miejsce naziemne: 45 EUR/stanowisko,

-garaż wielopoziomowy: 60 EUR/stanowisko,

Miejsca parkingowe według współczynnika 1:40 m2.

Stacja rowerów miejskich-w sąsiedztwie.

Budynek biurowy klasy A z 2010 roku, oferujący około 24 000 m2 powierzchni użytkowej, rozmieszczonej na 4 kondygnacjach w kompleksie biurowym na warszawskim Ursynowie.

Recepcja na parterze.

Ochrona budynku.

Dwustronne zasilanie.

Okablowanie komputerowe, elektryczne, telefoniczne.

Kable światłowodowe

Tryskacze i czujniki dymu.

Kontrola dostępu do budynku.

Dwustronne zasilanie.

System BMS oszczędnie zarządzający budynkiem.

Udogodnienia dla Najemców:

-punkty handlowe, gastronomiczne,

-hotel,

Dogodne połączenie z innymi dzielnicami Warszawy oraz z lotniskiem Okęcie.

W sąsiedztwie: stacja metra Imielin (10 min), stacja PKP/SKM.

Tylko pól kilometra od obwodnic S79 i S2.4 linie autobusowe bezpośrednio przy kompleksie.

2 prywatne linie shuttle bus.Prywatna stacja Veturilo.

Do podanych cen należy doliczyć podatek VAT w wysokości 23 %

Zdjęcia pokazują ogólny standard budynku.

Zapraszam na spotkanie w celu obejrzenia lokalu

Zachęcam do kontaktu telefonicznego pod numerem: 731-321-117

Po więcej ofert warszawskich biur, magazynów czy lokali usługowych do wynajęcia, zapraszam na stronę:

https://www.propertyoffice.pl/

Treść niniejszego ogłoszenia nie stanowi oferty handlowej w rozumieniu art.66 1 kodeksu cywilnego oraz innych właściwych przepisów prawnych.

Treść niniejszego ogłoszenia nie stanowi oferty handlowej w rozumieniu art.66 1 kodeksu cywilnego oraz innych właściwych przepisów prawnych.

Oferta wysłana z programu IMO dla biur nieruchomości

Mapa

Formularz kontaktowy

This site is protected by reCAPTCHA and the Google Privacy Policy and Terms of Service apply.

Promuj

Ogłoszenie nie jest promowane

Promowanie ogłoszenia: 0,00 zł / 1 dni


Podobne ogłoszenia




Ta strona używa ciasteczek (cookies), dzięki którym nasz serwis może działać lepiej. Akceptuję
Facebook
Facebook
Sprzedawanko.pl – serwis ogłoszeń Firmowanko.pl – katalog firm i usług Pracowanko.pl – serwis pracy Ugościmy.pl – serwis noclegów Nporta.pl – katalog firm i usług