📢
🔥 Już jest WIOSNA 2026 w NPORTA.PL 🔔 NA START WSZYSTKO ZA FREE 🔥

Wola : lokal biurowy na wynajem

[Wynajem] Lokale

Wola : lokal biurowy na wynajem
Wola : lokal biurowy na wynajem Wola : lokal biurowy na wynajem Wola : lokal biurowy na wynajem Wola : lokal biurowy na wynajem Wola : lokal biurowy na wynajem Wola : lokal biurowy na wynajem

Cena: 18.290 zł

Dodane przez: PropertyOffice
Region: Mazowieckie Warszawa
Adres:Okopowa
Agent: Property Office Sp. o.o.
E-mail: katarzyna@propertyoffice.pl

pokaż numer telefonu...

pokaż adres email...

Opublikowano: 30-03-2026 | Wygaśnie: 30-03-2027 | Wyświetleń: 1

ID ogłoszenia: 96815 | Numer oferty: 359015

Szczegóły

Ogłoszenia: Firmowe
Rynek: Nie
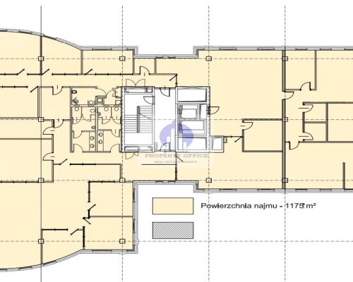
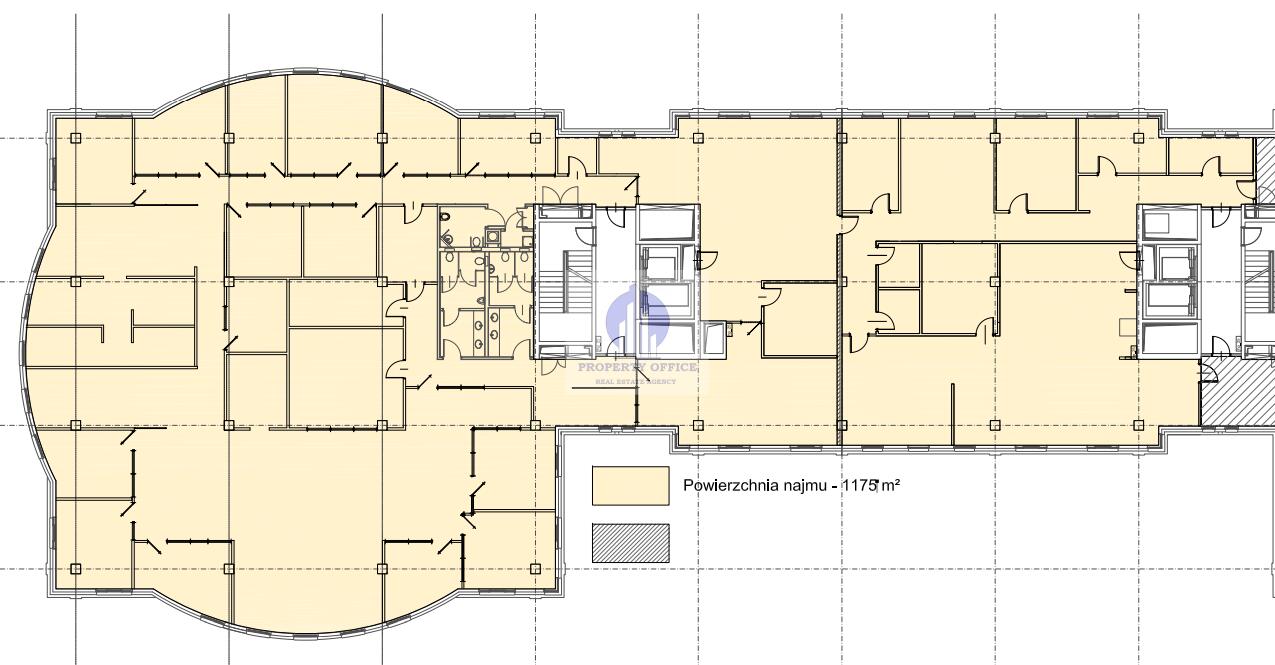
Pow. użytkowa: 1180 m²
Piętro: 1 piętro
Liczba pięter: 8
Rok budowy: 2003
Ogrzewanie: miejskie
Stan wykończenia: bardzo dobry
Forma własności: własność
Nr licencji: 22020
Data aktualizacji: 2026-03-20 13:15:12

Opis

Warszawa - Do wynajęcia: lokal biurowy o pow. 1180 m2 na 1 piętrze budynku biurowego w okolicach ul. Okopowej, na warszawskiej Woli,

poleca Agencja Nieruchomości Property Office (tel. 731-321-117, mail: katarzyna@propertyoffice.pl)

---------Bez prowizji od Najemcy---------

Powierzchnia może być zaaranżowana albo w układzie open space albo gabinetowym.

Do lokalu przynależy taras wielkości 25 m2.

Lokal z dobrym dostępem naturalnego światła.

Lokal w podziale na:

-open space,

-pokoje biurowe,

-salka konferencyjna,

-recepcja,

-magazynek,

-aneks kuchenny,

-łazienki,

Mozliwość zmiany aranżacji powierzchni.

Be pośredni dostep dp klatki schodowej i do wind.

Podniesione podłogi.

Klimatyzacja.

Kontrola dostępu.

Recepcja i ochrona 24h/7.

Duża wysokość pomieszczeń.

Powierzchnia magazynowa dostępna na poziomie parkingu.

Otwierane okna.

Parametry techniczne powierzchni nie pozwalają na prowadzenie w lokalu działalności o profilu typowo medczynym.

Na miesięczne koszty najmu netto składają się:

-czynsz: 18290 EUR,

-opłaty eksploatacyjne: 25,50 PLN/m2 (30090 PLN),

-zużycie mediów,

Opłaty naliczane są od powierzchni brutto, tzn. z wliczonym współczynnikiem powierzchni wspólnych (4%).

Spersonalizowaną ofertę finansową, klient otrzymuje po prezentacji lokalu.

Internet:

-opcjonalnie,

-Najemca indywidualnie podpisuje umowę z operatorem telekomunikacyjnym.

Parking:

Do dyspozycji najemców oddano również ponad 200 podziemnych oraz 14 naziemnych miejsc parkingowych.

Czynsz za miejsce parkingowe: 110 EUR za miejsce.

Budynek posiada dedykowane miejsca dla rowerzystów, motocyklistów jak również stacje dokowania samochodów elektrycznych.

Umowa:

-okres do ustalenia

-kaucja 3 miesiące,

Opis budynku:

8-kondygnacyjny budynek oferujący biura do wynajęcia o łącznej powierzchni ponad 10 600 m2.

Cztery windy i dwie klatki schodowe umożliwiają dogodne dotarcie do każdego piętra. Budynek posiada recepcję oraz ochronę, a także obszerny hol na parterze budynku.

W niedalekiej odległości od budynku znajduje się CH Arkadia z szeroką ofertą punktów handlowych, usługowych, gastronomicznych oraz miejscami rozrywki.

Udogodnienia dla Najemców: stacja benzynowa, myjnia samochodowa,

Lokalizacja budynku gwarantuje doskonały dostęp prywatnym i publicznym transportem.

W sąsiedztwie budynku znajduje się stacja benzynowa z myjnią samochodową.

Do podanych cen należy doliczyć podatek VAT w wysokości 23 %

Zdjęcia pokazują ogólny standard budynku.

Zapraszam na spotkanie w celu obejrzenia lokalu

Zachęcam do kontaktu telefonicznego pod numerem: 731-321-117

Po więcej ofert warszawskich biur, magazynów czy lokali usługowych do wynajęcia, zapraszam na stronę:

https://www.propertyoffice.pl/

Treść niniejszego ogłoszenia nie stanowi oferty handlowej w rozumieniu art.66 1 kodeksu cywilnego oraz innych właściwych przepisów prawnych.

Treść niniejszego ogłoszenia nie stanowi oferty handlowej w rozumieniu art.66 1 kodeksu cywilnego oraz innych właściwych przepisów prawnych.

Oferta wysłana z programu IMO dla biur nieruchomości

Mapa

Formularz kontaktowy

This site is protected by reCAPTCHA and the Google Privacy Policy and Terms of Service apply.

Promuj

Ogłoszenie nie jest promowane

Promowanie ogłoszenia: 0,00 zł / 1 dni


Podobne ogłoszenia




Ta strona używa ciasteczek (cookies), dzięki którym nasz serwis może działać lepiej. Akceptuję
Facebook
Facebook
Sprzedawanko.pl – serwis ogłoszeń Firmowanko.pl – katalog firm i usług Pracowanko.pl – serwis pracy Ugościmy.pl – serwis noclegów Nporta.pl – katalog firm i usług