📢
🔥 Już jest WIOSNA 2026 w NPORTA.PL 🔔 NA START WSZYSTKO ZA FREE 🔥

Śródmieście: lokal biurowy na wynajem

[Wynajem] Lokale

Śródmieście: lokal biurowy na wynajem
Śródmieście: lokal biurowy na wynajem Śródmieście: lokal biurowy na wynajem Śródmieście: lokal biurowy na wynajem Śródmieście: lokal biurowy na wynajem Śródmieście: lokal biurowy na wynajem Śródmieście: lokal biurowy na wynajem Śródmieście: lokal biurowy na wynajem

Cena: 8.055 zł

Dodane przez: PropertyOffice
Region: Mazowieckie Warszawa
Adres:Świętokrzyska
Agent: Property Office Sp. o.o.
E-mail: katarzyna@propertyoffice.pl

pokaż numer telefonu...

pokaż adres email...

Opublikowano: 30-03-2026 | Wygaśnie: 30-03-2027 | Wyświetleń: 2

ID ogłoszenia: 97142 | Numer oferty: 359486

Szczegóły

Ogłoszenia: Firmowe
Rynek: Nie
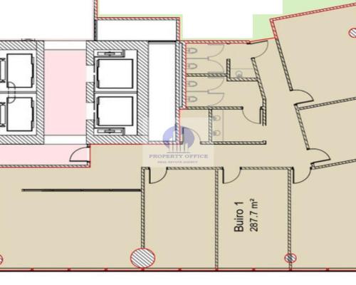
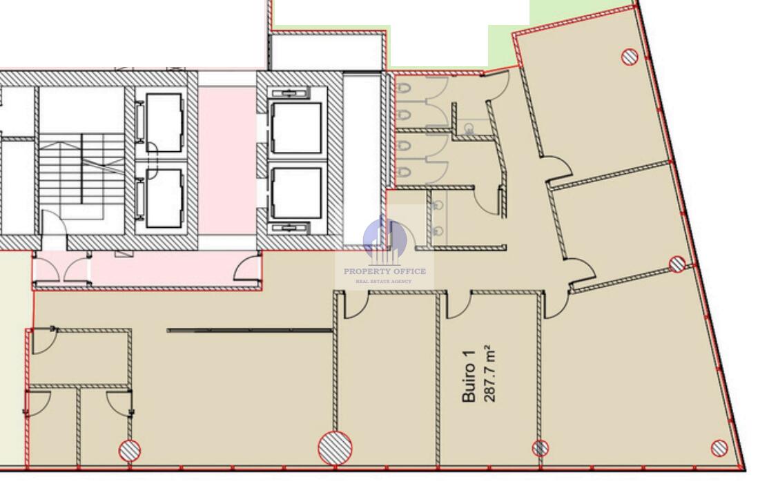
Pow. użytkowa: 287.7 m²
Piętro: 2 piętro
Rok budowy: 2013
Ogrzewanie: miejskie
Stan wykończenia: bardzo dobry
Forma własności: własność
Nr licencji: 22020
Data aktualizacji: 2026-03-25 21:00:41

Opis

Warszawa - Do wynajęcia: biuro o pow. 287,70 m2 na 2 piętrze biurowca klasy A w centrum Warszawy, w okolicach ul. Świętokrzyskiej ,

poleca Property Office (tel. 731-321-117, mail: katarzyna@propertyoffice.pl)

------------Bez prowizji od Najemcy-----------

Oferowany lokal to biuro do aranżacji zgodnie z potrzebami najemcy.

Obecnie jest to przestrzeń otwarta.

Proponowana aranżacja powierzchni:

-8 pokoi biurowych,

-1 salka spotkań

-aneks kuchenny,

-łazienki,

Powierzchnia dostępna jest ,,od zaraz''

Światłowód.

Okablowanie elektryczne.

Okablowanie komputerowe.

Podwieszane sufity.

Wykładzina dywanowa na podłodze.

System BMS.

Kontrola dostępu.

Na miesięczne koszty najmu składają się:

-czynsz:8055,60 EUR,

-opłaty eksploatacyjne: 27 PLN/m2 (7768 PLN),

-media,

Opłaty naliczane są od powierzchni brutto, tzn. z wliczonym współczynnikiem powierzchni wspólnych (8%).

Spersonalizowaną ofertę najmu, klient otrzymuje po obejrzeniu lokalu.

Internet:

-opcjonalnie,

-Najemca indywidualnie podpisuje umowę z operatorem telekomunikacyjnym.

-światłowód w budynku,

Parking:

Obiekt zapewnia dostęp do około 300 podziemnych miejsc parkingowych.

Cena miejsca postojowego: 270 EUR /stanowisko/miesiąc,

Współczynnik miejsc parkingowych:1/100 m

Miejsca dla rowerzystów.

Umowa:

-czas określony: min. 5 lat

-kaucja 3 miesiące,

Opis budynku:

Budynek zlokalizowany w ścisłym centrum Warszawy, oferuje wysoki standard oraz prestiżowy adres idealny dla firm poszukujących reprezentacyjnej siedziby.

Budynek wyposażony jest we wszystkie udogodnienia niezbędne innowacyjnym przedsiębiorstwom.

-recepcja na parterze,

-Klimatyzacja,

-pełne okablowanie,

-Tryskacze i czujniki dymu,

-Recepcja,

-Ochrona budynku,

-Kable światłowodowe

-system zarządzania budynkiem-BMS,

Lokalizacja umożliwia sprawny dojazd do innych części miasta, zarówno komunikacją miejską, jak i własnym środkiem transportu. W pobliżu liczne przystanki autobusowe i tramwajowe oraz stacja Świętokrzyska, na której krzyżują się dwie linie metra.

Do podanych cen należy doliczyć podatek VAT w wysokości 23 %

Zdjęcia pokazują ogólny standard budynku.

Zapraszam na spotkanie w celu obejrzenia lokalu

Zachęcam do kontaktu telefonicznego pod numerem: 731-321-117

Po więcej ofert warszawskich biur, magazynów czy lokali usługowych do wynajęcia, zapraszam na stronę:

https://www.propertyoffice.pl/

Treść niniejszego ogłoszenia nie stanowi oferty handlowej w rozumieniu art.66 1 kodeksu cywilnego oraz innych właściwych przepisów prawnych.

Treść niniejszego ogłoszenia nie stanowi oferty handlowej w rozumieniu art.66 1 kodeksu cywilnego oraz innych właściwych przepisów prawnych.

Oferta wysłana z programu IMO dla biur nieruchomości

Mapa

Formularz kontaktowy

This site is protected by reCAPTCHA and the Google Privacy Policy and Terms of Service apply.

Promuj

Ogłoszenie nie jest promowane

Promowanie ogłoszenia: 0,00 zł / 1 dni


Podobne ogłoszenia




Ta strona używa ciasteczek (cookies), dzięki którym nasz serwis może działać lepiej. Akceptuję
Facebook
Facebook
Sprzedawanko.pl – serwis ogłoszeń Firmowanko.pl – katalog firm i usług Pracowanko.pl – serwis pracy Ugościmy.pl – serwis noclegów Nporta.pl – katalog firm i usług