📢
🔥 Już jest WIOSNA 2026 w NPORTA.PL 🔔 NA START WSZYSTKO ZA FREE 🔥

Bielany: lokal magazynowo-produkcyjny na wynajem

[Wynajem] Lokale

Bielany: lokal magazynowo-produkcyjny na wynajem
Bielany: lokal magazynowo-produkcyjny na wynajem Bielany: lokal magazynowo-produkcyjny na wynajem

Cena: 13.574 zł

Dodane przez: PropertyOffice
Region: Mazowieckie Warszawa
Adres:Sokratesa
Agent: Property Office Sp. o.o.
E-mail: katarzyna@propertyoffice.pl

pokaż numer telefonu...

pokaż adres email...

Opublikowano: 30-03-2026 | Wygaśnie: 30-03-2027 | Wyświetleń: 2

ID ogłoszenia: 97197 | Numer oferty: 359561

Szczegóły

Ogłoszenia: Firmowe
Rynek: Nie
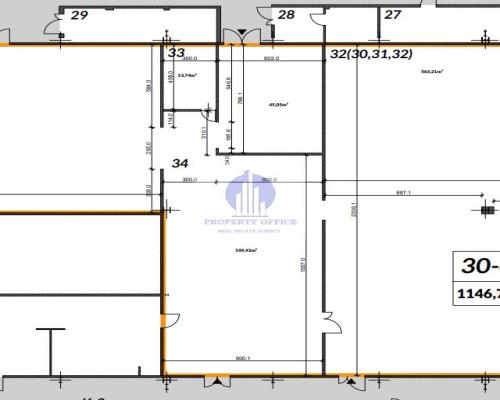
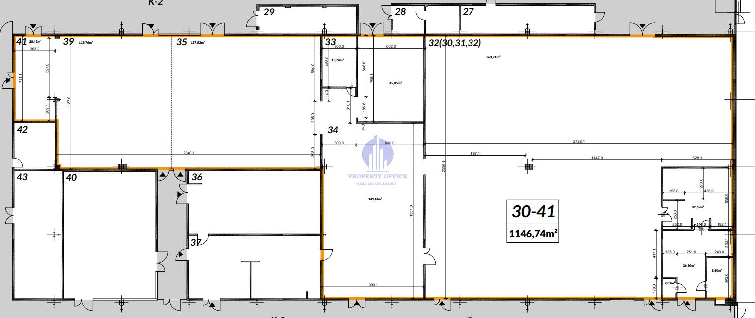
Pow. użytkowa: 424.21 m²
Liczba pięter: 2
Rok budowy: 1980
Ogrzewanie: miejskie
Stan wykończenia: dobry
Forma własności: własność
Nr licencji: 22020
Data aktualizacji: 2026-03-26 20:36:19

Opis

Warszawa - Do wynajęcia: lokal magazynowo- produkcyjny o pow.424,21 m2 na warszawskich Bielanach, parter, na terenie kompleksu magazynowo- biurowego w okolicach ul. Sokratesa,

poleca Agencja Nieruchomości Property Office (tel. 731-321-117, mail: katarzyna@propertyoffice.pl)

--------Bez prowizji od Najemcy----------------

Powierzchnia magazynowo- produkcyjna (w tym socjalna- 104,16 m)

Podłoga betonowa.

Powierzchnia magazynowa podzielona na kilka pomieszczeń magazynowych i pomocniczych.

Wysokość: około 8 m.

Powierzchnia z dostępem naturalnego światła.

Magazyn ogrzewany.

Dostęp z rampy.

Bezpośredni dostęp z zewnątrz.

Powierzchnia może być wykorzystywana zarówno na potrzeby magazynowe, jak i produkcyjne.

Toalety dla Najemców w korytarzu, w sąsiedztwie magazynu.

Istnieje możliwość wynajęcia lokali biurowych (już od kilkunastu metrów) na terenie obiektu.

Na miesięczne koszty najmu składają się:

-czynsz: 13574,72 PLN,

-koszty operacyjne: 17,09 PLN/m2

-ogrzewanie:3,47 PLN/m2

Razem netto:22296,48 PLN,

-energia elektryczna: licznik

-Woda: licznik

Internet: Odrębna umowa z operatorem telekomunikacyjnym.

Światłowód UPC na obiekcie.

Parking: naziemne miejsca postojowe,

-Samochód osobowy: 180 PLN/mies.

-bus: 410 PLN/mies.

-samochód ciężarowy: 525 PLN/mies.

Możliwość parkowania na godziny: pierwsza godzina bezpłatnie.

Umowa:

-umowa na czas nieokreślony lub określony (do ustalenia),

-Kaucja: 3 miesiące,

-akt notarialny odnośnie zwrotu lokalu po zakończeniu umowy najmu,

Opis kompleksu:

Ogrodzony i monitorowany kompleks biurowo-magazynowy.

Możliwość najmu lokali biurowych (już od kilkunastu m2) oraz powierzchni magazynowych i produkcyjnych różnej wielkości.

Obiekty handlowo-usługowe, inwestycje mieszkaniowe w sąsiedztwie.

Dogodny transport miejski: przystanki autobusowe i tramwajowe w sąsiedztwie obiektu.

W niedalekiej odległości: stacja metra Młociny oraz Galeria Handlowa Młociny, trasa szybkiego ruchu - S7 i Trasa Mostu Północnego.

Do podanych cen należy doliczyć podatek VAT w wysokości 23 %

Zdjęcia pokazują ogólny standard budynku.

Zapraszam na spotkanie w celu obejrzenia lokalu

Zachęcam do kontaktu telefonicznego pod numerem: 731-321-117

Po więcej ofert warszawskich biur, magazynów czy lokali usługowych do wynajęcia, zapraszam na stronę:

https://www.propertyoffice.pl/

Treść niniejszego ogłoszenia nie stanowi oferty handlowej w rozumieniu art.66 1 kodeksu cywilnego oraz innych właściwych przepisów prawnych.

Treść niniejszego ogłoszenia nie stanowi oferty handlowej w rozumieniu art.66 1 kodeksu cywilnego oraz innych właściwych przepisów prawnych.

Oferta wysłana z programu IMO dla biur nieruchomości

Mapa

Formularz kontaktowy

This site is protected by reCAPTCHA and the Google Privacy Policy and Terms of Service apply.

Promuj

Ogłoszenie nie jest promowane

Promowanie ogłoszenia: 0,00 zł / 1 dni


Podobne ogłoszenia




Ta strona używa ciasteczek (cookies), dzięki którym nasz serwis może działać lepiej. Akceptuję
Facebook
Facebook
Sprzedawanko.pl – serwis ogłoszeń Firmowanko.pl – katalog firm i usług Pracowanko.pl – serwis pracy Ugościmy.pl – serwis noclegów Nporta.pl – katalog firm i usług