📢
🔥 Już jest WIOSNA 2026 w NPORTA.PL 🔔 NA START WSZYSTKO ZA FREE 🔥

Wola: lokal biurowy na podnajem

[Wynajem] Lokale

Wola: lokal biurowy na podnajem
Wola: lokal biurowy na podnajem Wola: lokal biurowy na podnajem Wola: lokal biurowy na podnajem Wola: lokal biurowy na podnajem Wola: lokal biurowy na podnajem Wola: lokal biurowy na podnajem

Cena: 16.772 zł

Dodane przez: PropertyOffice
Region: Mazowieckie Warszawa
Adres:Przyokopowa
Agent: Property Office Sp. o.o.
E-mail: katarzyna@propertyoffice.pl

pokaż numer telefonu...

pokaż adres email...

Opublikowano: 30-03-2026 | Wygaśnie: 30-03-2027 | Wyświetleń: 2

ID ogłoszenia: 97218 | Numer oferty: 359584

Szczegóły

Ogłoszenia: Firmowe
Rynek: Nie
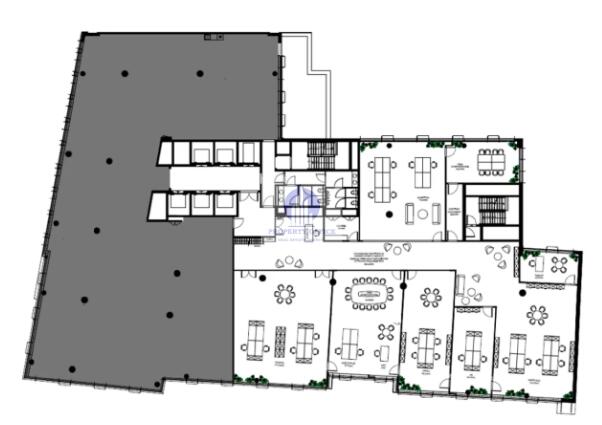
Pow. użytkowa: 838.6 m²
Piętro: 6 piętro
Liczba pięter: 13
Rok budowy: 2010
Ogrzewanie: miejskie
Stan wykończenia: bardzo dobry
Forma własności: własność
Nr licencji: 22020
Data aktualizacji: 2026-03-26 23:08:42

Opis

Warszawa - Do podnajmu: lokal biurowy o pow.838,60 m2 na 6 piętrze nowoczesnego budynku biurowego na warszawskiej Woli.

poleca Agencja Nieruchomości Property Office(tel. 731-321-117, mail: katarzyna@propertyoffice.pl)

--------------Bez prowizji od Najemcy-----------

Lokal dostępny od 01.01.2027r.

Powierzchnia biurowa dająca możliwość aranżacji według własnych potrzeb i preferencji.

Dzięki temu najemca może stworzyć przestrzeń idealnie dopasowaną do swojego stylu pracy.

Wysokość: 2,80m.

Powierzchnia z optymalnym dostępem naturalnego światła.

Klimatyzacja z kontrolą temperatury.

Podwieszane sufity.

Podnoszone podłogi.

Uchylne okna.

Wykładzina dywanowa na podłodze.

Na miesięczne koszty najmu netto składają się:

-czynsz: 20-22,50 EUR/m2,

-koszty eksploatacyjne: 25,50 PLN/m2

-media,

Niski współczynnik powierzchni wspólnej - tylko 4,75%

Spersonalizowaną ofertę finansową, klient otrzymuje po prezentacji lokalu.

Internet:odrębna umowa z operatorem telekomunikacyjnym.

Światłowód w budynku.

Parking:

Kompleks oferuje ponad 220 miejsc parkingowych na trzech poziomach.

-180 EUR/stanowisko/miesiąc,

Współczynnik miejsc parkingowych : 1/69m2.

Ładowarki dla aut elektrycznych.

Infrastruktura dla rowerzystów.

Pod budynkiem umiejscowiona jest stacja rowerowa Veturilo.

Umowa:

-czas określony- min. 5 lat

-kaucja 3 miesiące,

Umowa:

-minimalny okres najmu: 3 lata,

-kaucja 3 miesiące,

Opis budynku:

Kameralny biurowiec klasy A, oferujący blisko 16 000 m powierzchni biurowej do wynajęcia, rozmieszczonej na 12 piętrach.

Dobrze zaprojektowana przestrzeń z doskonałym doświetleniem, dzięki przeszklonej fasadzie budynku, zapewnia komfortowe i przyjazne warunki pracy.

Wyposażony został w nowoczesną i zaawansowaną infrastrukturę.

Na parterze budynku znajdują się punkty handlowo usługowe.

Eleganckie, odnowione lobby recepcyjne.

Całodobowa recepcja.

Monitory LED w recepcji.

Udogodnienia dla najemców:

-praktyczne pralniomaty,

-restauracja kuchni włoskiej,

-fitness klub w pobliżu,

-Kawiarnie, resturacje, placówki medyczne i bankowe w okolicy

Dogodna lokalizacja w sąsiedztwie Ronda Daszyńskiego.

Lokalizacja umożliwia sprawny dojazd do innych części miasta, zarówno komunikacją miejską, jak i własnym środkiem transportu.

W pobliżu liczne przystanki autobusowe i tramwajowe, stacja II linii metra Rondo Daszyńskiego, nieco dalej stacje kolejowe.

Ścieżki rowerowe w okolicy.

Do podanych cen należy doliczyć podatek VAT w wysokości 23 %

Zdjęcia pokazują ogólny standard budynku.

Zapraszam na spotkanie w celu obejrzenia lokalu

Zachęcam do kontaktu telefonicznego pod numerem: 731-321-117

Po więcej ofert warszawskich biur, magazynów czy lokali usługowych do wynajęcia, zapraszam na stronę:

https://www.propertyoffice.pl/

Treść niniejszego ogłoszenia nie stanowi oferty handlowej w rozumieniu art.66 1 kodeksu cywilnego oraz innych właściwych przepisów prawnych.

Treść niniejszego ogłoszenia nie stanowi oferty handlowej w rozumieniu art.66 1 kodeksu cywilnego oraz innych właściwych przepisów prawnych.

Oferta wysłana z programu IMO dla biur nieruchomości

Mapa

Formularz kontaktowy

This site is protected by reCAPTCHA and the Google Privacy Policy and Terms of Service apply.

Promuj

Ogłoszenie nie jest promowane

Promowanie ogłoszenia: 0,00 zł / 1 dni


Podobne ogłoszenia




Ta strona używa ciasteczek (cookies), dzięki którym nasz serwis może działać lepiej. Akceptuję
Facebook
Facebook
Sprzedawanko.pl – serwis ogłoszeń Firmowanko.pl – katalog firm i usług Pracowanko.pl – serwis pracy Ugościmy.pl – serwis noclegów Nporta.pl – katalog firm i usług