📢
🔥 Bezpłatny Portal Ogłoszeniowy Nieruchomości 🔔 Dodaj Ogłoszenie Za Darmo Na WWW.NPORTA.PL 🔥

Twój dom marzeń – 5 pokoi, standard PREMIUM

[Sprzedaż] Domy

Twój dom marzeń – 5 pokoi, standard PREMIUM
Twój dom marzeń – 5 pokoi, standard PREMIUM Twój dom marzeń – 5 pokoi, standard PREMIUM Twój dom marzeń – 5 pokoi, standard PREMIUM Twój dom marzeń – 5 pokoi, standard PREMIUM Twój dom marzeń – 5 pokoi, standard PREMIUM Twój dom marzeń – 5 pokoi, standard PREMIUM Twój dom marzeń – 5 pokoi, standard PREMIUM Twój dom marzeń – 5 pokoi, standard PREMIUM Twój dom marzeń – 5 pokoi, standard PREMIUM

Cena: 982.125 zł

Dodane przez: HomePartner
Region: Dolnośląskie Kąty Wrocławskie
Adres:Lipowa
Agent: Monika Łabęska - Cioch
E-mail: biuro@home-partner.com.pl
Telefon komórkowy: 536 496 163

pokaż adres email...

Opublikowano: 20-04-2026 | Wygaśnie: 20-04-2027 | Wyświetleń: 3

ID ogłoszenia: 159847 | Numer oferty: 20880

Szczegóły

Ogłoszenia: Firmowe
Rynek: Tak
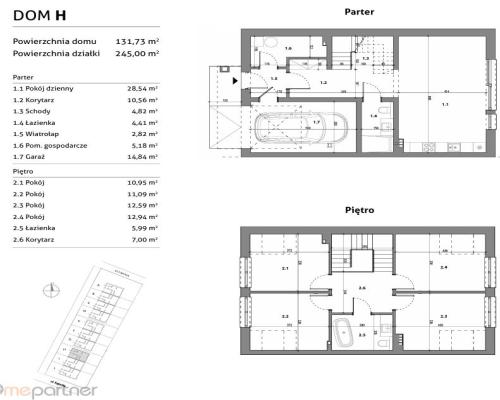
Pow. użytkowa: 131.73 m²
Pow. działki: 245 m2
Pow. całkowita: 131.73 m²
Liczba pokoi: 5 pokoje
Liczba sypialni: 4
Liczba pięter: 1
Rodzaj zabudowy: szeregowy
Materiał budynku: ceramiczny Porotherm
Okna: PCV
Podłogi: beton
Rok budowy: 2025
Ogrzewanie: pompa ciepła
Forma własności: własność
Dach: dachówka ceramiczna
Nr licencji: 23243
Data aktualizacji: 2026-04-20 11:45:49

Opis

<b>Na sprzedaż energooszczędny dom w zabudowie szeregowej o powierzchni użytkowej 131,73 m, wyróżniający się wykończeniem w standardzie PREMIUM.</b>

Nieruchomość usytuowana jest na wydzielonej działce.

<b>Budynki w klasie PREMIUM charakteryzują się najwyższą jakością wykonania oraz zastosowaniem najlepszych materiałów.</b>

<b>Rynek pierwotny kupujący nie płaci prowizji oraz podatku PCC.</b>

<b>I ETAP INWESTYCJI DEWELOPERSKIEJ W GNIECHOWICACH</b>. Docelowo zaprojektowano 10 domów w zabudowie szeregowej na działkach o wielkościach od 210 do 470 m2.

Zakończenie budowy GRUDZIEŃ 2025 r

Przekazanie domów: I Q 2026 r.

Przeniesienie własności: II Q 2026 r.

Rynek pierwotny. Kupujący nie płaci prowizji i podatku PCC.

Dom H, z ogrodem, usytuowany na działce 245 m2, pięć pokoi, kuchnia w aneksie, dwie łazienki, garaż. W cenie pełna pompa ciepła, rolety zewnętrzne na parterze, kabel do fotowoltaiki.

<b>UKŁAD POMIESZCZEŃ</b>

<b>Parter</b>: obszerny salon z aneksem kuchennym (28,54 m2) i z wyjściem na taras/ogród o wschodnio-południowej ekspozycji, łazienka (4,41 m2), pomieszczenie gospodarcze (5,18m2), garaż w bryle budynku (14,84)

<b>I piętro</b>: cztery ustawne sypialnie (10,95 m2, 11,09 m2, 12,59 m2, 12,94 m2, łazienka (5,99m2)

<b>STANDARD</b>

Podwyższony standard wykończenia:

- oszczędna pompa ciepła z możliwością chłodzenia w upalne dni

- kabel do instalacji fotowoltaicznej

- komfortowe i funkcjonalne ogrzewanie podłogowe w całym domu

- rolety zewnętrzne sterowane automatycznie na parterze budynku

- światłowód

- drzwi antywłamaniowe klasy C renomowanej firmy

- powierzchnie tarasów z płyt betonowych lub deski kompozytowej

- ściany z porothermu, dachówka ceramiczna

-okna pcv pięciokomorowe trzyszybowe

- ogrzewanie podłogowe , również w garażu

zbiornik na deszczówkę 4 tys litrów wkopany w ziemię

- dachówka ceramiczna z powłoką antyglonową

<b>MEDIA</b>

prąd, woda, zbiornik bezodpływowy

CENA: 982 125 zł

<b>LOKALIZACJA I KOMUNIKACJA</b>

Dom położony jest w miejscowości Gniechowice, w gminie Kąty Wrocławskie.

Spokojna i zielona okolica. Położenie na skraju Parku Krajobrazowego Doliny Bystrzycy daje możliwość kontaktu z pięknem natury i prowadzenia aktywnego trybu życia.

Dobry dojazd :

- do centrum Wrocławia - ok.25 min.

- do Centrum Handlowego Bielany Wrocławskie ok. 14 min

- do Kątów Wrocławskich 8 min.

- do Sobótki - 13 min.

- do Kobierzyc - 11 min.

- do autostrady A4 - 10 min.

- do portu lotniczego Wrocław- 20 min.

- do pałacu Krobielowice - 4km

Kursują także gminne autobusy, autobusy międzymiastowe oraz prywatne busy.

TEREN NIEZALEWOWY

Dom zlokalizowany z dala od zgiełku aglomeracji. Jednocześnie bliskość Wrocławia powoduje, że można łączyć pracę zawodową w mieście ze spokojem i ciszą wsi. W miejscowości sklep, kościół, restauracja, sklep Lewiatan, cukiernia i piekarnia, a także szkołą podstawowa, przedszkole w pobliskim Pustkowie Żurawskim oddalonym o ok. 6 km.

<b>ZALETY OFERTY:</b>

- doskonała lokalizacja

- funkcjonalny układ domu

- 5 pokoi

- spokojna okolica

- podwyższony standard wykończenia

Zapraszam do rozmów i obejrzenia domu. www.home-partner.com.pl Tel. 536 496 163

Feel free to contact us, talk and see the apartment. For more information please call us Tel +48 889 759 863.

Por favor contáctenos para conocer más sobre la oferta y ver el apartamento. Podemos ayudar con todos los trámites. Para más información por favor llámanos +48 889 759 863.

Treść niniejszego ogłoszenia nie stanowi oferty handlowej w rozumieniu Kodeksu Cywilnego.

Oferta wysłana z programu IMO dla biur nieruchomości

Mapa

Formularz kontaktowy

This site is protected by reCAPTCHA and the Google Privacy Policy and Terms of Service apply.

Promuj

Ogłoszenie nie jest promowane

Promowanie ogłoszenia: 0,00 zł / 1 dni


Podobne ogłoszenia




Ta strona używa ciasteczek (cookies), dzięki którym nasz serwis może działać lepiej. Akceptuję
Facebook
Facebook
Sprzedawanko.pl – serwis ogłoszeń Firmowanko.pl – katalog firm i usług Pracowanko.pl – serwis pracy Ugościmy.pl – serwis noclegów Nporta.pl – katalog firm i usług