Nowa inwestycja / kameralna lokalizacja

[Sprzedaż] Domy

Nowa inwestycja / kameralna lokalizacja
Nowa inwestycja / kameralna lokalizacja Nowa inwestycja / kameralna lokalizacja Nowa inwestycja / kameralna lokalizacja Nowa inwestycja / kameralna lokalizacja Nowa inwestycja / kameralna lokalizacja Nowa inwestycja / kameralna lokalizacja Nowa inwestycja / kameralna lokalizacja Nowa inwestycja / kameralna lokalizacja Nowa inwestycja / kameralna lokalizacja

Cena: 999.000 zł (do negocjacji)

Dodane przez: Awatar Crystal_Home
Region: Dolnośląskie Świdnica

pokaż adres email...

Opublikowano: 03-11-2025 | Wygaśnie: 04-11-2025

ID ogłoszenia: 29140

Szczegóły

Rynek: Tak
Pow. użytkowa (m2): 108.8
Pow. działki (m2): 111.24
Liczba pokoi: 5
Rodzaj zabudowy: bliźniak
Materiał budynku: Ytong
Okna: PCV
Rok budowy: 2024
Ogrzewanie: gazowe
Forma własności: własność
Agent: Patryk Furmanek
E-mail: patryk@crystal-home.pl
Telefon komórkowy: +48 534939081
Nr licencji: 22737
Data aktualizacji: 2025-11-03 11:26:07

Opis

Na sprzedaż segment w zabudowie bliźniaczej w Świdnicy.

Okolice Zalewu Witoszówka

Brak opłaty 2% PCC

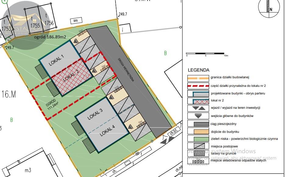
- <b>Lokal nr 2</b> - powierzchnia użytkowa: parter 42,39 m2 + piętro 39,72m2 + poddasze o powierzchni 26,69) - do tego lokalu będzie przynależał ogródek o powierzchni 111,24m2

- <b>Lokal nr 1</b> - powierzchnia użytkowa: parter 42,43 m2 + piętro 39,88m2 + poddasze o powierzchni 26,49) - do tego lokalu będzie przynależał ogródek o powierzchni 186,89m2

Spokojna, kameralna lokalizacja

ogrzewanie podłogowe

rolety w standardzie

Każda transakcja dokonywana za naszym pośrednictwem objęta jest ochroną ubezpieczeniową w PZU S.A. zgodnie z wymogami ustawy o gospodarce nieruchomościami.

Strona Dewelopera

https://www.silver-city.pl/swidnicaul-swietojanska/

Zapraszam na bezpłatną prezentację. Szczegóły oferty:

CRYSTAL HOME Nieruchomości

Świdnica, ul. Licznikowa 5/8 -

tel. 534 939 081

Informacje dotyczące opisu nieruchomości podane są przez właścicieli, mają charakter wyłącznie informacyjny i mogą podlegać aktualizacji. Oferta dotycząca nieruchomości stanowi zaproszenie do rokowań zgodnie z art. 71 Kodeksu Cywilnego i nie stanowi oferty określonej w art. 66 i art. 69 i następnych KC.

Oferta wysłana z programu IMO dla biur nieruchomości

Mapa

Formularz kontaktowy

This site is protected by reCAPTCHA and the Google Privacy Policy and Terms of Service apply.

Promuj

Ogłoszenie nie jest promowane

Promowanie ogłoszenia: 0,00 zł / 1 dni


Podobne ogłoszenia




Ta strona używa ciasteczek (cookies), dzięki którym nasz serwis może działać lepiej. Akceptuję
Facebook
Facebook
Sprzedawanko.pl – serwis ogłoszeń Firmowanko.pl – katalog firm i usług Pracowanko.pl – serwis pracy Ugościmy.pl – serwis noclegów Nporta.pl – katalog firm i usług